Upplýsingar
Byggt 2026
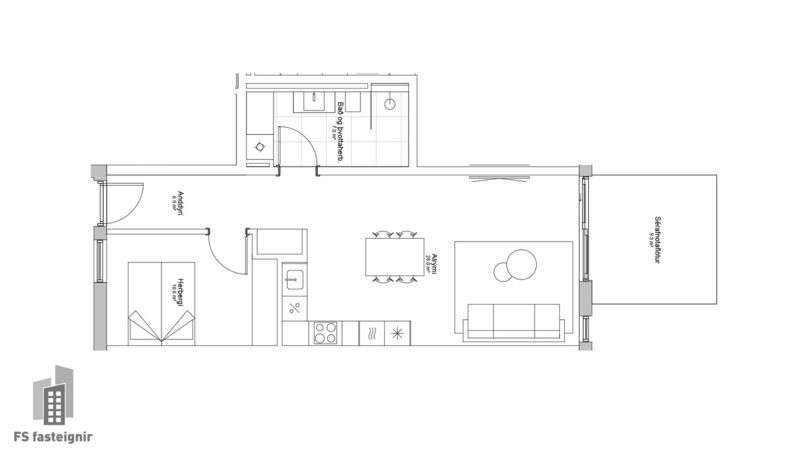
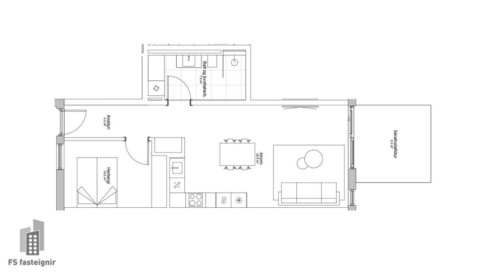
71,4 m²
2 herb.
1 baðherb.
1 svefnh.
Lyfta
Lýsing
Lækjarmói 8 - íbúð 203 - Nýbygging
Mjög skemmtileg tveggja herbergja fullfrágengin 71,4m2 íbúð á 2. hæð í nýju fallegu fjölbýlishúsi sem er staðsett í nýju íbúðarhverfi, Móahverfi á Akureyri. Áhersla hefur verið lögð á efnisval og fallegt útlit, lyfta.
* Loftskiptibúnaður * Hljóðplötur í lofti, betri hljóðvist * Gólfsíðir gluggar * Rennihurð á svölum * Gólfhiti
Eignin skiptist í forstofu, eldhús, borðstofu og stofu, í opnu rými, svefnherbergi, baðherbergi ásamt sér geymslu.
Forstofa með vínilparketi á gólfi, fataskápur.
Eldhús, borðstofa og stofa eru í opnu rými, falleg sérsmíðuð innrétting frá TAK innréttinum, eldhústæki eru frá AEG. Rennihurð út á svalir.
Herbergi er með Vínilparketi á gólfi og fataskáp.
Baðherbergi með góðri innréttingu, fallegur spegill með lýsingu, sturta með glerskilrúmi. Flísar á gólfi og á veggjum í sturtu. Gert er ráð fyrir þvottavél og þurrkara.
Byggingaraðilinn, SS Byggir. Sjá heimasíðu SS - www.ssbyggir.is
- Íbúðin afhendist með sérsmíðuðum innréttingum frá TAK innréttingum.
- Hljódempandi vínilparket á alrými og herbergjum. Flísar á baðherbergi og þvottahúsi.
- Sérgeymsla í kjallara sem er 10,9m2 að stærð.
- Íbúðin afhendist fullfrágengin.
Til afhendingar vorið 2026
Kaupandi greiðir skipulagsgjald.
Smelltu hér fyrir nánari skilalýsingu
Nánari upplýsingar veita:
Friðrik Sigþórsson sími 694-4220 [email protected]
Svala Jónsdóttir sími 663-5260 [email protected]
Mjög skemmtileg tveggja herbergja fullfrágengin 71,4m2 íbúð á 2. hæð í nýju fallegu fjölbýlishúsi sem er staðsett í nýju íbúðarhverfi, Móahverfi á Akureyri. Áhersla hefur verið lögð á efnisval og fallegt útlit, lyfta.
* Loftskiptibúnaður * Hljóðplötur í lofti, betri hljóðvist * Gólfsíðir gluggar * Rennihurð á svölum * Gólfhiti
Eignin skiptist í forstofu, eldhús, borðstofu og stofu, í opnu rými, svefnherbergi, baðherbergi ásamt sér geymslu.
Forstofa með vínilparketi á gólfi, fataskápur.
Eldhús, borðstofa og stofa eru í opnu rými, falleg sérsmíðuð innrétting frá TAK innréttinum, eldhústæki eru frá AEG. Rennihurð út á svalir.
Herbergi er með Vínilparketi á gólfi og fataskáp.
Baðherbergi með góðri innréttingu, fallegur spegill með lýsingu, sturta með glerskilrúmi. Flísar á gólfi og á veggjum í sturtu. Gert er ráð fyrir þvottavél og þurrkara.
Byggingaraðilinn, SS Byggir. Sjá heimasíðu SS - www.ssbyggir.is
- Íbúðin afhendist með sérsmíðuðum innréttingum frá TAK innréttingum.
- Hljódempandi vínilparket á alrými og herbergjum. Flísar á baðherbergi og þvottahúsi.
- Sérgeymsla í kjallara sem er 10,9m2 að stærð.
- Íbúðin afhendist fullfrágengin.
Til afhendingar vorið 2026
Kaupandi greiðir skipulagsgjald.
Smelltu hér fyrir nánari skilalýsingu
Nánari upplýsingar veita:
Friðrik Sigþórsson sími 694-4220 [email protected]
Svala Jónsdóttir sími 663-5260 [email protected]