Upplýsingar
Verðsaga
Byggt 1870
247,7 m²
10 herb.
3 baðherb.
5 svefnh.
Þvottahús
Laus strax
Lýsing
Betri Stofan fasteignasala kynnir: Lækjargata 4 Akureyri sem er skráð 247,7 m2 einbýlishús - Bjart og fallegt 10 herbergja í Innbænum á 600 Akureyri.
Húsið skiptist í tvær hæðir, ris og kjallara. Húsið hefur verið mikið endurnýjað s.s. raf- og vatnslagnir, gluggar, gler, þak, klæðning og einangrun, innréttingar og fleira.
Eignin er vel búin húsbúnaði og sjálfsagt er að láta eitthvað af því fylgja með við sölu ef það hentar kaupanda. Húsið fékk viðurkenningu Húsverndunarsjóðs Akureyrar árið 2021 og í rökstuðningi kom eftirfarandi fram: Eigendur hússins, bæði þáverandi og núverandi, eiga heiður skilinn að hafa staðið vel að verki við viðgerðir og tryggt varðveislu hússins svo að sómi er að.
Bókið skoðun: Jason Kristinn Ólafsson, sími 7751515 - [email protected]
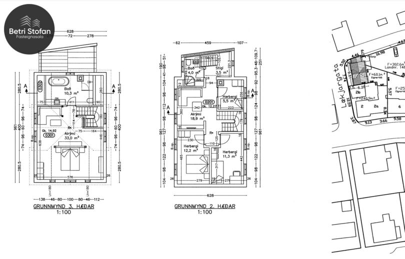
Nánari lýsing: Kjallari: Þvottahús og gott geymslupláss. 1. hæð: Forstofa, eldhús, stofa, borðstofa og salerni. 2. hæð: Baðherbergi, þrjú svefnherbergi og stofa. Ris: Stórt herbergi og baðherbergi. Baðherbergi í risi er með baðkari og sturtu og flísum á veggjum. Í risinu er stórt svefnherbergi hvar loftin eru tekin upp og gömlu bitarnir fá að njóta sín.
Baðherbergi á 2. hæð er flísalagt og með sturtu. Á jarðhæð er salerni. Flísarnar eru fallegar með munstri og öll eru rýmin haganlega frágengin.
Eldhúsið er opið og bjart. Þar er ljós innrétting og stór gluggi til norðurs og opið yfir í borðstofu.
Borðstofan tengist svo yfir í stofuna.
Inngangur er til suðurs en mest er gengið inn um bakdyrainngang frá Spítalavegi.
Á gólfum hússins er að stærstum hluta hvíttaðar gólffjalir að votrýmum undanskildum en þar eru flísar.
Á 1. og 2. hæð eru gólfjalir nýjar en í risi eru gömlu gólffjalirnar málaðar. Í kjallara eru máluð gólf.
Gluggi til austur er úr herberginu með fallegu útsýni út á pollinn.
Norðan við húsið er endurnýjuð verönd, og bílaplan með möl.
Seinni tíma viðbætur eða breytingar á húsinu, sem staðist hafa tímans tönn, eru í góðum hlutföllum og hluti af langri þróunarsögu hússins, og geta áunnið sér sess til að litið sé til þeirra við endurgerð hússins.
Lækjargata 4 er mjög gott dæmi um hús sem hefur gengið í gegnum ýmis þróunarskeið frá því að það var byggt fyrir rúmum 150 árum síðan. Allt frá því að vera einfalt útihús á einni hæð, yfir í krambúð með geymslurisi og síðast að íbúðarhúsi á tveimur hæðum með risi og inngönguskúr.
Falleg eign sem vert er að skoða fljótlega.
Allar nánari upplýsingar gefur: Jason Kristinn Ólafsson s. 775 1515 - [email protected] löggiltur fasteignasali
Húsið skiptist í tvær hæðir, ris og kjallara. Húsið hefur verið mikið endurnýjað s.s. raf- og vatnslagnir, gluggar, gler, þak, klæðning og einangrun, innréttingar og fleira.
Eignin er vel búin húsbúnaði og sjálfsagt er að láta eitthvað af því fylgja með við sölu ef það hentar kaupanda. Húsið fékk viðurkenningu Húsverndunarsjóðs Akureyrar árið 2021 og í rökstuðningi kom eftirfarandi fram: Eigendur hússins, bæði þáverandi og núverandi, eiga heiður skilinn að hafa staðið vel að verki við viðgerðir og tryggt varðveislu hússins svo að sómi er að.
Bókið skoðun: Jason Kristinn Ólafsson, sími 7751515 - [email protected]
Nánari lýsing: Kjallari: Þvottahús og gott geymslupláss. 1. hæð: Forstofa, eldhús, stofa, borðstofa og salerni. 2. hæð: Baðherbergi, þrjú svefnherbergi og stofa. Ris: Stórt herbergi og baðherbergi. Baðherbergi í risi er með baðkari og sturtu og flísum á veggjum. Í risinu er stórt svefnherbergi hvar loftin eru tekin upp og gömlu bitarnir fá að njóta sín.
Baðherbergi á 2. hæð er flísalagt og með sturtu. Á jarðhæð er salerni. Flísarnar eru fallegar með munstri og öll eru rýmin haganlega frágengin.
Eldhúsið er opið og bjart. Þar er ljós innrétting og stór gluggi til norðurs og opið yfir í borðstofu.
Borðstofan tengist svo yfir í stofuna.
Inngangur er til suðurs en mest er gengið inn um bakdyrainngang frá Spítalavegi.
Á gólfum hússins er að stærstum hluta hvíttaðar gólffjalir að votrýmum undanskildum en þar eru flísar.
Á 1. og 2. hæð eru gólfjalir nýjar en í risi eru gömlu gólffjalirnar málaðar. Í kjallara eru máluð gólf.
Gluggi til austur er úr herberginu með fallegu útsýni út á pollinn.
Norðan við húsið er endurnýjuð verönd, og bílaplan með möl.
Seinni tíma viðbætur eða breytingar á húsinu, sem staðist hafa tímans tönn, eru í góðum hlutföllum og hluti af langri þróunarsögu hússins, og geta áunnið sér sess til að litið sé til þeirra við endurgerð hússins.
Lækjargata 4 er mjög gott dæmi um hús sem hefur gengið í gegnum ýmis þróunarskeið frá því að það var byggt fyrir rúmum 150 árum síðan. Allt frá því að vera einfalt útihús á einni hæð, yfir í krambúð með geymslurisi og síðast að íbúðarhúsi á tveimur hæðum með risi og inngönguskúr.
Falleg eign sem vert er að skoða fljótlega.
Allar nánari upplýsingar gefur: Jason Kristinn Ólafsson s. 775 1515 - [email protected] löggiltur fasteignasali
Gjöld sem kaupandi þarf að standa straum af ef að kaupum verður:
1. Stimpilgjald af fasteignamati fasteignar er 0.8%, en 0,4% fyrir fyrstu kaup og 1,6% fyrir lögaðila.
2. Þinglýsingargjald: kaupsamningi, skuldabréfi, veðleyfi, afsali o.s.frv. er kr. 3.800 af hverju skjali.
3. Lántökukostnaður samkvæmt verðskrá viðkomandi lánastofnunar.
4. Umsýslugjald til fasteignasölu skv. gjaldskrá.
Skoðunarskylda kaupanda:
Í lögum um fasteignakaup nr. 40/2002 er kveðið á um ríka skoðunarskyldu kaupenda á fasteignum. Betri Stofan fasteignasala bendir væntanlegum kaupendum á að kynna sér vel ástand fasteigna við skoðun og fyrir tilboðsgerð og ef þurfa þykir að leita til sérfræðinga um nánari ástandsskoðun.
Ár
Fasteignamat
Kaupverð
Stærð
Fermetraverð
24. okt. 2017
29.000.000 kr.
69.500.000 kr.
247.7 m²
280.581 kr.
22. ágú. 2011
20.250.000 kr.
24.000.000 kr.
247.7 m²
96.891 kr.
Byggt á upplýsingum úr Þjóðskrá Íslands frá 2006-2026