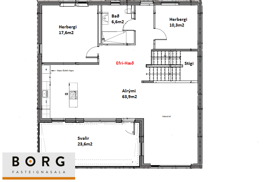
Úugata, 270 Mosfellsbær