Löggiltir fasteignasalar innan Félags fasteignasala:
Hannes Steindórsson
Bogi Molby Pétursson
Guðrún Antonsdóttir
Heimir Hallgrímsson
Hrafnkell P. H. Pálmason
Viðar Marinósson
Elías Haraldsson
Kristján Þórir Hauksson
Albert Bjarni Úlfarsson
Ragnar Þorsteinsson
Þórey Ólafsdóttir
Andri Freyr Halldórsson
Upplýsingar
Verðsaga
Byggt 2023
80,1 m²
3 herb.
1 baðherb.
2 svefnh.
Sameiginl. inngangur
Lyfta
Laus strax
Lýsing
Helga Pálsdóttir Löggiltur fasteignasali og Lind fasteignasala kynna einstaklega fallega og bjarta þriggja herbergja íbúð á þriðju hæð í góðu fjölbýlishúsi með lyftu við Áshamar 52, Hafnarfirði. Eignin er skráð samkvæmt FMR 80,1 fm þar af er geymsla 2,6 fm. Íbúðin er laus fljótlega eftir kaupsamning. Bjalla 311
Byggingaraðili: GG verk
Hönnuður hússins: Guðni Pálsson - GP Arkitektar ehf.
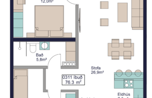
Íbúð 311: 80,1 fm, þriggja herbergja íbúð á 3. hæð. Eignin skiptist í forstofu,eldhús, borðstofu, stofu, tvö svefnherbergi og baðherbergi með þvottaaðstöðu.
*Viðarparket á alrými.
*Gólfhiti.
*Sérsmíðaðar innréttingar frá Axis.
* Allar gardinurnar eru sérsniðnar frá Casalísa
Nánari lýsing:
Forstofa: Fallegar flísar, fataskápur.
Eldhús: Viðarparket á gólfi, hvít eldhúsinnrétting, innbyggður ísskápur, frystir og uppþvottavél. Bakaraofn í vinnuhæð, spanhelluborð og háfur.
Borðstofa/stofa: í opnu rými, viðarparket á gólfi, útgengi út á svalir.
Hjónaherbergi: Viðarparket á gólfi, fataskápur, skrifborðsplata.
Herbergi: Viðarparket á gólfi, innbyggður fataskápur.
Baðherbergi: Flísar á gólfi og veggjum að hluta, upphengt salerni, walk-in sturta, stór spegill með fallegum ljóskúplumfrá Lumex í spegli . Þvotta aðstaða og tengi fyrir þvottavél og þurrkara.
Svalir: 7,8 fm, svalir sem snúa til vesturs.
Geymsla: í sameign, 2,6 fm.
Hleðslustöðvar eru á bílaplani.
Nánari upplýsingar veita:
Helga Pálsdóttir Löggiltur fasteignasali, í síma 822-2123, tölvupóstur [email protected].
Auður Magnúsdóttir, Löggiltur fasteignasali, í síma 848-2666, tölvupóstur [email protected].
-----------------------------------------------------------------------
Gjöld sem kaupandi þarf að standa straum af vegna kaupanna:
1. Stimpilgjald af kaupsamningi - 0.8% af heildarfasteignamati / 1.6% fyrir lögaðila
Fyrstu kaup - 0,4% af heildarfasteignamati
2. Þinglýsingagjald af kaupsamningi, veðskuldabréfi, veðleyfi o.fl.- kr. 2.700 af hverju skjali.
3. Lántökugjald lánastofnunar
4. Umsýsluþóknun til fasteignasölu, sbr.kauptilboð.
Byggingaraðili: GG verk
Hönnuður hússins: Guðni Pálsson - GP Arkitektar ehf.
Íbúð 311: 80,1 fm, þriggja herbergja íbúð á 3. hæð. Eignin skiptist í forstofu,eldhús, borðstofu, stofu, tvö svefnherbergi og baðherbergi með þvottaaðstöðu.
*Viðarparket á alrými.
*Gólfhiti.
*Sérsmíðaðar innréttingar frá Axis.
* Allar gardinurnar eru sérsniðnar frá Casalísa
Nánari lýsing:
Forstofa: Fallegar flísar, fataskápur.
Eldhús: Viðarparket á gólfi, hvít eldhúsinnrétting, innbyggður ísskápur, frystir og uppþvottavél. Bakaraofn í vinnuhæð, spanhelluborð og háfur.
Borðstofa/stofa: í opnu rými, viðarparket á gólfi, útgengi út á svalir.
Hjónaherbergi: Viðarparket á gólfi, fataskápur, skrifborðsplata.
Herbergi: Viðarparket á gólfi, innbyggður fataskápur.
Baðherbergi: Flísar á gólfi og veggjum að hluta, upphengt salerni, walk-in sturta, stór spegill með fallegum ljóskúplumfrá Lumex í spegli . Þvotta aðstaða og tengi fyrir þvottavél og þurrkara.
Svalir: 7,8 fm, svalir sem snúa til vesturs.
Geymsla: í sameign, 2,6 fm.
Hleðslustöðvar eru á bílaplani.
Nánari upplýsingar veita:
Helga Pálsdóttir Löggiltur fasteignasali, í síma 822-2123, tölvupóstur [email protected].
Auður Magnúsdóttir, Löggiltur fasteignasali, í síma 848-2666, tölvupóstur [email protected].
-----------------------------------------------------------------------
Gjöld sem kaupandi þarf að standa straum af vegna kaupanna:
1. Stimpilgjald af kaupsamningi - 0.8% af heildarfasteignamati / 1.6% fyrir lögaðila
Fyrstu kaup - 0,4% af heildarfasteignamati
2. Þinglýsingagjald af kaupsamningi, veðskuldabréfi, veðleyfi o.fl.- kr. 2.700 af hverju skjali.
3. Lántökugjald lánastofnunar
4. Umsýsluþóknun til fasteignasölu, sbr.kauptilboð.
Ár
Fasteignamat
Kaupverð
Stærð
Fermetraverð
16. okt. 2023
40.500.000 kr.
51.000.000 kr.
80.1 m²
636.704 kr.
Byggt á upplýsingum úr Þjóðskrá Íslands frá 2006-2026