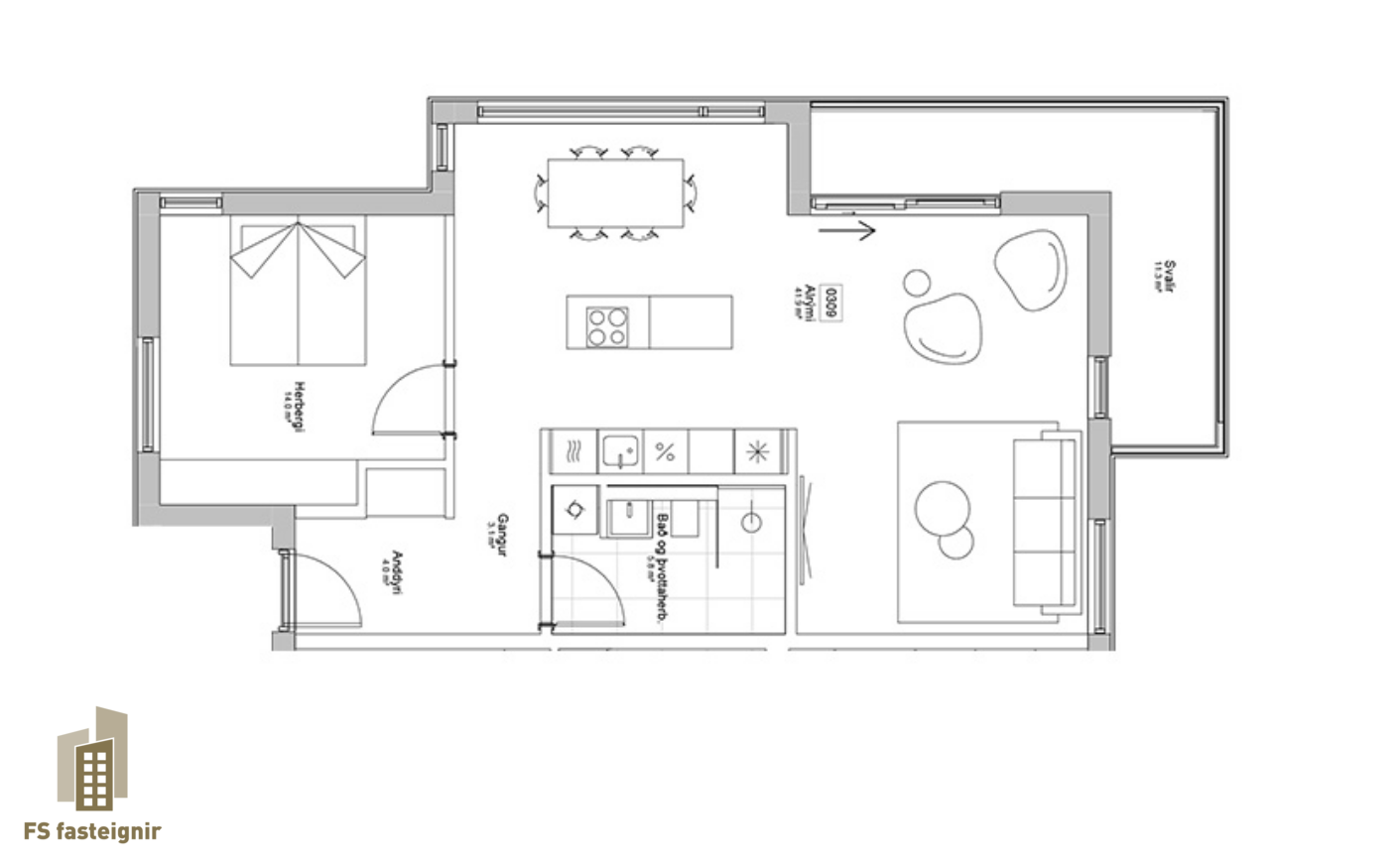
Lækjarmói 6, 603 Akureyri