Upplýsingar
Verðsaga
Byggt 1994
91,8 m²
3 herb.
1 baðherb.
2 svefnh.
Þvottahús
Lýsing
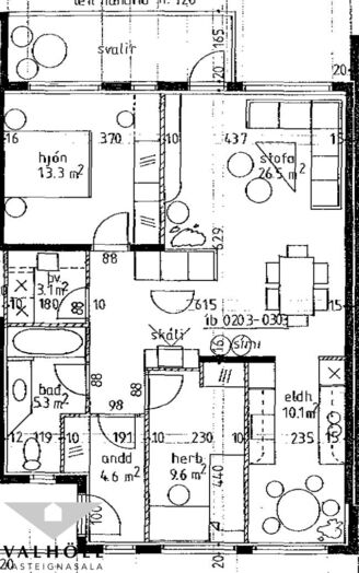
***NÝTT Í SÖLU*** Arnarsmári 22, 201 Kópavogur er vel skipulögð 3ja herbergja íbúð á 2. hæð með sérinngangi í góðu 8 íbúða fjölbýlishúsi.
Um er að ræða 91,8 fermetra eign sem skiptist í 91,8 fermetra íbúðarrými og 5,7 fermetra geymslu í sameign sem ekki er hluti af fermetrum íbúðar.
Íbúðin samanstendur af forstofu, tveimur góðum svefnherbergjum, eldhúsi, stofu, borðstofu, baðherbergi og þvottahúsi. Góðar svalir í suður.
Pantið skoðun, sínum samdægurs, Heiðar s. 693-3356, [email protected]
Eignin er skráð skv. fasteignaskrá HMS alls 91,8 fm.
Nánari lýsing
Forstofa: Gengið er inn í góða forstofu með góðum fataskáp og flísum á gólfi.
Eldhús: Snyrtileg eldhúsinnrétting og gott skápapláss. Tengi fyrir uppþvottavél. Ofn í vinnuhæð og góður borðkrókur við glugga. Parket á gólfi.
Stofa / borðstofa: Rúmgóð með útgengi á suður-svalir. Parket á gólfi.
Svefnherbergi I: Rúmgott og bjart með góðum fataskápum. Parket á gólfi.
Svefnherbergi II: Gott herbergi með fataskáp. Parket á gólfi.
Baðherbergi: Flísalagt í hólf og gólf. Baðkar með sturtuaðstöðu.
Þvottahús: Innan íbúðar með tengi fyrir þvottavél og þurrkara og ræstivaskur
Svalir: Góðar suðursvalir beint út frá stofu.
Geymsla: 5,7 fm sér geymsla í sameign. (Telur ekki í fermetrum íbúðar)
Lóðin: Snyrtileg og vel hirt lóð í sameign.
Hjóla- og vagnageymsla í sameign.
Eignin er mjög björt og staðsett á góðum og fjölskylduvænum stað í Smárahverfinu í Kópavogi þar sem stutt er í leik- og grunnskóla, útivist og alla helstu þjónustu og verslanir.
Allar frekari uppl. um eignina veitir Heiðar Friðjónsson Lögg. fast. í s.693-3356 eða á [email protected]
Um skoðunar- og aðgæsluskyldu:
Í lögum um fasteignakaup nr. 40/2002 er kveðið á um ríka skoðunarskyldu kaupenda á fasteignum. Valhöll fasteignasala bendir væntanlegum kaupendum á að kynna sér vel ástand fasteigna við skoðun og fyrir tilboðsgerð og ef þurfa þykir að leita til sérfræðinga um nánari ástandsskoðun.
Forsendur söluyfirlits:
Söluyfirlit er samið af fasteignasala í samræmi við ákvæði laga nr. 70/2015. Þær upplýsingar sem fram koma í söluyfirliti þessu eru sóttar í opinberar skrár, til seljanda sjálfs og eftir atvikum til húsfélags. Seljandi veitir upplýsingar um eign í samræmi við upplýsingaskyldu laga um fasteignakaup nr. 40/2002. Fasteignasali sannreynir að þær upplýsingar séu réttar með sjónskoðun á eigninni. Fasteignasali getur ekki fullyrt um ástand og eiginleika þeirra hluta fasteigna sem ekki eru aðgengilegir og sjást ekki berum augum, t.d. lagnir, dren, skólp og þak.
Gjöld sem kaupandi þarf að standa straum af vegna kaupanna:
Stimpilgjald af kaupsamningi sem er hlutfall af fasteignamati. Stimpilgjald er 0,8% fyrir einstaklinga og 1,6% fyrir lögaðila.
Þinglýsingargjald af kaupsamningi, veðskuldabréfum, veðleyfum o.fl. Þinglýsingargjald er kr. 2.700,- fyrir hvert skjal.
Lántökugjald lánastofnunar. Um lántökugjald vísast í gjaldskrá viðkomandi lánveitanda.
Umsýsluþóknun fasteignasölu skv. gjaldskrá.
Ef um nýbyggingu er að ræða greiðir kaupandi skipulagsgjald, 0,3% af brunabótamáti, þegar það er lagt á.
Um er að ræða 91,8 fermetra eign sem skiptist í 91,8 fermetra íbúðarrými og 5,7 fermetra geymslu í sameign sem ekki er hluti af fermetrum íbúðar.
Íbúðin samanstendur af forstofu, tveimur góðum svefnherbergjum, eldhúsi, stofu, borðstofu, baðherbergi og þvottahúsi. Góðar svalir í suður.
Pantið skoðun, sínum samdægurs, Heiðar s. 693-3356, [email protected]
Eignin er skráð skv. fasteignaskrá HMS alls 91,8 fm.
Nánari lýsing
Forstofa: Gengið er inn í góða forstofu með góðum fataskáp og flísum á gólfi.
Eldhús: Snyrtileg eldhúsinnrétting og gott skápapláss. Tengi fyrir uppþvottavél. Ofn í vinnuhæð og góður borðkrókur við glugga. Parket á gólfi.
Stofa / borðstofa: Rúmgóð með útgengi á suður-svalir. Parket á gólfi.
Svefnherbergi I: Rúmgott og bjart með góðum fataskápum. Parket á gólfi.
Svefnherbergi II: Gott herbergi með fataskáp. Parket á gólfi.
Baðherbergi: Flísalagt í hólf og gólf. Baðkar með sturtuaðstöðu.
Þvottahús: Innan íbúðar með tengi fyrir þvottavél og þurrkara og ræstivaskur
Svalir: Góðar suðursvalir beint út frá stofu.
Geymsla: 5,7 fm sér geymsla í sameign. (Telur ekki í fermetrum íbúðar)
Lóðin: Snyrtileg og vel hirt lóð í sameign.
Hjóla- og vagnageymsla í sameign.
Eignin er mjög björt og staðsett á góðum og fjölskylduvænum stað í Smárahverfinu í Kópavogi þar sem stutt er í leik- og grunnskóla, útivist og alla helstu þjónustu og verslanir.
Allar frekari uppl. um eignina veitir Heiðar Friðjónsson Lögg. fast. í s.693-3356 eða á [email protected]
Um skoðunar- og aðgæsluskyldu:
Í lögum um fasteignakaup nr. 40/2002 er kveðið á um ríka skoðunarskyldu kaupenda á fasteignum. Valhöll fasteignasala bendir væntanlegum kaupendum á að kynna sér vel ástand fasteigna við skoðun og fyrir tilboðsgerð og ef þurfa þykir að leita til sérfræðinga um nánari ástandsskoðun.
Forsendur söluyfirlits:
Söluyfirlit er samið af fasteignasala í samræmi við ákvæði laga nr. 70/2015. Þær upplýsingar sem fram koma í söluyfirliti þessu eru sóttar í opinberar skrár, til seljanda sjálfs og eftir atvikum til húsfélags. Seljandi veitir upplýsingar um eign í samræmi við upplýsingaskyldu laga um fasteignakaup nr. 40/2002. Fasteignasali sannreynir að þær upplýsingar séu réttar með sjónskoðun á eigninni. Fasteignasali getur ekki fullyrt um ástand og eiginleika þeirra hluta fasteigna sem ekki eru aðgengilegir og sjást ekki berum augum, t.d. lagnir, dren, skólp og þak.
Gjöld sem kaupandi þarf að standa straum af vegna kaupanna:
Stimpilgjald af kaupsamningi sem er hlutfall af fasteignamati. Stimpilgjald er 0,8% fyrir einstaklinga og 1,6% fyrir lögaðila.
Þinglýsingargjald af kaupsamningi, veðskuldabréfum, veðleyfum o.fl. Þinglýsingargjald er kr. 2.700,- fyrir hvert skjal.
Lántökugjald lánastofnunar. Um lántökugjald vísast í gjaldskrá viðkomandi lánveitanda.
Umsýsluþóknun fasteignasölu skv. gjaldskrá.
Ef um nýbyggingu er að ræða greiðir kaupandi skipulagsgjald, 0,3% af brunabótamáti, þegar það er lagt á.
Ár
Fasteignamat
Kaupverð
Stærð
Fermetraverð
23. jan. 2024
65.600.000 kr.
65.500.000 kr.
91.8 m²
713.508 kr.
20. feb. 2018
36.600.000 kr.
43.000.000 kr.
91.8 m²
468.410 kr.
27. mar. 2015
26.450.000 kr.
29.000.000 kr.
91.8 m²
315.904 kr.
Byggt á upplýsingum úr Þjóðskrá Íslands frá 2006-2026