Löggiltir fasteignasalar innan Félags fasteignasala:
Ástþór Reynir Guðmundsson
Vigdís R. S. Helgadóttir
Guðbjörg Helga Jóhannesdóttir
Gylfi Jens Gylfason
Sigrún Matthea Sigvaldadóttir
Sveinn Gíslason
Páll Guðmundsson
Þórarinn Arnar Sævarsson
Berglind Hólm Birgisdóttir
Þorsteinn Gíslason
Guðrún Lilja Tryggvadóttir
Brynjar Ingólfsson
Guðný Þorsteinsdóttir
Bjarni Blöndal
Þorsteinn Ólafs
Þórdís Björk Davíðsdóttir
Jóhann Kristinn Jóhannesson
Bjarný Björg Arnórsdóttir
Salvör Þóra Davíðsdóttir
Magga Sigríður Gísladóttir
Upplýsingar
Byggt 1988
142,8 m²
3 herb.
1 baðherb.
2 svefnh.
Bílskúr
Sameiginl. inngangur
Lýsing
Dagbjartur Willardsson löggiltur fasteignasali og RE/MAX kynna, Frostafold 25, Reykjavík íbúð 0202 fnr. 236-5602 - Fasteignamat er kr. 87.050.000
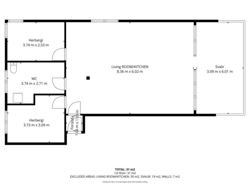
Húsið er byggt árið 1988 og eru bílskúrar og geymslur á jarðhæð og svo tvær hæðir með íbúðum og eru alls 6 íbúðir í húsinu. Lóðin í kringum húsið er skráð 1170 fm. Taka þarf íbúðina í gegn s.s. gólfefni og innréttingar og hentar íbúðin vel þeim sem vilja gera upp íbúðir en skipulag íbúðarinnar er mjög gott.
Birt stærð er 142,8 fm og þar af er geymsla 8,1 fm og bílskúr 23,6 fm. íbúðarhluti er skráður 111,1 fm.
FÁÐU SENT SÖLUYIRLIT YFIR EIGNINA HÉR.
Nánari lýsing:
Íbúðin: Er í raun tilbúin til innréttinga býður upp á mikla möguleika fyrir laghenta. Tvö rúmgóð svefnherbergi og baðherbergi og svo stórt sameignlegt rými. Stærð á hverju rými sést á gólfteikningu sem er staðsett þar sem ljósmyndir af eigninni eru.
Geymsla: Er skráð 8,1 fermetrar og er með góðum hillum og vinnuborði.
Bílskúr: Bílskúrinn er skráðr 23,6 fm og er með innkeyrsluhurð. Innangengt er úr geymslu íbúðarinnar í bílskúrinn.
Allar nánari upplýsingar veitir:
Dagbjartur Willardsson lgf hjá RE/MAX í s: 861-7507 eða á [email protected]
- Ég býð upp á frítt söluverðmat á þinni eign og veiti góða og lipra þjónustu. -
Gjöld sem kaupandi þarf að greiða vegna kaupanna:
1. Stimpilgjald af kaupsamningi - 0,8% af heildarfasteignamati hjá einstaklingum. Sé um fyrstu kaup að ræða er stimpilgjald af kaupsamningi 0,4% af heildarfasteignamati.
2. Stimpilgjald af kaupsamningi - 1,6% af heildarfasteignamati hjá lögaðilum.
3. Þinglýsingargjald af kaupsamningi, veðskuldabréfi, veðleyfi og fl. 2.700 kr. af hverju skjali.
4. Lántökugjald lánastofnunar - breytilegt, sjá gjaldskrá á heimasíðum lánastofnana.
5. Umsýslugjald til fasteignasölu 69.900 kr. m.vsk.
Í lögum um fasteignakaup nr. 40/2002 er kveðið á um ríka skoðunarskyldu kaupenda á fasteignum. Vill RE/MAX því skora á væntanlega kaupendur að kynna sér vel ástand fasteigna fyrir kauptilboðsgerð og leita til þar til bærra sérfræðinga um nánari skoðun.
Húsið er byggt árið 1988 og eru bílskúrar og geymslur á jarðhæð og svo tvær hæðir með íbúðum og eru alls 6 íbúðir í húsinu. Lóðin í kringum húsið er skráð 1170 fm. Taka þarf íbúðina í gegn s.s. gólfefni og innréttingar og hentar íbúðin vel þeim sem vilja gera upp íbúðir en skipulag íbúðarinnar er mjög gott.
Birt stærð er 142,8 fm og þar af er geymsla 8,1 fm og bílskúr 23,6 fm. íbúðarhluti er skráður 111,1 fm.
FÁÐU SENT SÖLUYIRLIT YFIR EIGNINA HÉR.
Nánari lýsing:
Íbúðin: Er í raun tilbúin til innréttinga býður upp á mikla möguleika fyrir laghenta. Tvö rúmgóð svefnherbergi og baðherbergi og svo stórt sameignlegt rými. Stærð á hverju rými sést á gólfteikningu sem er staðsett þar sem ljósmyndir af eigninni eru.
Geymsla: Er skráð 8,1 fermetrar og er með góðum hillum og vinnuborði.
Bílskúr: Bílskúrinn er skráðr 23,6 fm og er með innkeyrsluhurð. Innangengt er úr geymslu íbúðarinnar í bílskúrinn.
Allar nánari upplýsingar veitir:
Dagbjartur Willardsson lgf hjá RE/MAX í s: 861-7507 eða á [email protected]
- Ég býð upp á frítt söluverðmat á þinni eign og veiti góða og lipra þjónustu. -
Gjöld sem kaupandi þarf að greiða vegna kaupanna:
1. Stimpilgjald af kaupsamningi - 0,8% af heildarfasteignamati hjá einstaklingum. Sé um fyrstu kaup að ræða er stimpilgjald af kaupsamningi 0,4% af heildarfasteignamati.
2. Stimpilgjald af kaupsamningi - 1,6% af heildarfasteignamati hjá lögaðilum.
3. Þinglýsingargjald af kaupsamningi, veðskuldabréfi, veðleyfi og fl. 2.700 kr. af hverju skjali.
4. Lántökugjald lánastofnunar - breytilegt, sjá gjaldskrá á heimasíðum lánastofnana.
5. Umsýslugjald til fasteignasölu 69.900 kr. m.vsk.
Í lögum um fasteignakaup nr. 40/2002 er kveðið á um ríka skoðunarskyldu kaupenda á fasteignum. Vill RE/MAX því skora á væntanlega kaupendur að kynna sér vel ástand fasteigna fyrir kauptilboðsgerð og leita til þar til bærra sérfræðinga um nánari skoðun.