Löggiltir fasteignasalar innan Félags fasteignasala:
Sverrir Kristinsson
Kjartan Hallgeirsson
Guðlaugur Ingi Guðlaugsson
Daði Hafþórsson
Gunnar Helgi Einarsson
Gunnar Bergmann Jónsson
Jenný Sandra Gunnarsdóttir
Vista
fjölbýlishús

Garðastræti 6

101 Reykjavík

76.900.000 kr.

998.701 þ.kr./m2
Fasteignanúmer

F2001665

Fasteignamat

69.550.000 kr.

Brunabótamat

37.800.000 kr.

Áhvílandi

0 kr.

Arion banki – Reikna lán
Upplýsingar
Verðsaga
svg
Byggt 1945
svg
77 m²
svg
3 herb.
svg
1 baðherb.
svg
2 svefnh.
svg
Þvottahús
svg
Sameiginl. inngangur

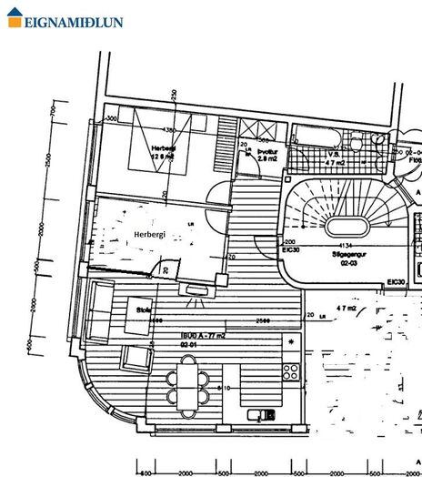
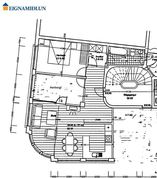
Lýsing

Eignamiðlun kynnir:

Afar björt og rúmgóð, þriggja herbergja íbúð á 2. hæð í fallegu, steinsteyptu fjölbýlishúsi í gamla Vesturbænum. Húsið hefur fengið gott viðhald. Skipt var um alla glugga og gler í september 2025 og skipt var um þak 2024.

**Sækja söluyfirlit**

Lýsing eignar:
Inngangur: Sameiginlegur inngangur að mjög snyrtilegri sameign.
Forstofa/hol: Rúmgott hol, flisalagt með náttúruflísum og góðu skápaplássi.
Eldhús: Opið með fallegri viðarinnréttingu og parketi á gólfum.
Stofa/borðstofa: Rúmgóð og björt, parketlögð stofa og borðstofa í opnu rými. Einstaklega falleg gluggasetning setur sterkan svip á rýmið.
Baðherbergi: Flísalagt í hólf og gólf með steyptri, stórri sturtu, upphengdu salerni og innréttingu auk ágætis skápapláss. Góður gluggi.
Svefnherbergi: Bjart og rúmgott með parketi og skápum.
Herbergi: Gott herbergi með parketi.
Þvottahús: Staðsett inn af baðherbergi. 
Við hlið hússins er læst port/húsasund þar sem hægt er að geyma t.d. reiðhjól

Framkvæmdir og viðhald:
Skipt var um alla glugga og gler í september 2025. (ATH myndir voru teknar áður en skipt var um glugga).
Þak (járn, pappi og fleira) var endurnýjað 2024.
Hús var endursteinað að utan 2008.
Frárennslislagnir út í götu voru fóðraðar 2005.
Aðalrafmagnstafla var endurnýjuð árið 2005 þegar húsi var breytt úr skrifstofuhúsnæði í íbúðarhúsnæði.
Gólfefni, eldhúsinnrétting og baðherbergi voru standsett á sama tíma.
Veggir íbúðar eru flestir léttir og því auðvelt að breyta skipulagi að vild.

Bílastæðahús er staðsett steinsnar frá húsinu með aðkomu frá Mjóstræti. Íbúapassar í boði til notkunar í almenn stæði. 

Nánari upplýsingar veitir:
Lilja Guðmundsdóttir löggiltur fasteignasali - s. 649-3868 eða [email protected]
 

***
Ábyrg þjónusta í áratugi. Eignamiðlun var stofnuð 1957 og er elsta starfandi fasteignasala á Íslandi. Reynsla, heiðarleiki og þekking á fasteignamarkaðnum eru grunnur að farsælum viðskiptum. 

Eignamiðlun Grensásvegi 11, 108 Reykjavík - Opið frá kl. 9-17 mánudaga til fimmtudaga og 9-16 á föstudögum.

Heimasíða Eignamiðlunar

Eignamiðlun á Facebook

Eignamiðlun

Eignamiðlun

Grensásvegi 11, 108 Reykjavík
Ár
Fasteignamat
Kaupverð
Stærð
Fermetraverð
6. sep. 2022
46.000.000 kr.
61.900.000 kr.
77 m²
803.896 kr.
9. mar. 2007
15.900.000 kr.
23.450.000 kr.
77 m²
304.545 kr.
Byggt á upplýsingum úr Þjóðskrá Íslands frá 2006-2026
Eignamiðlun

Eignamiðlun

Grensásvegi 11, 108 Reykjavík