Upplýsingar
315,9 m²
9 herb.
3 baðherb.
6 svefnh.
Þvottahús
Bílskúr
Útsýni
Sérinngangur
Laus strax
Lýsing
Afar fallegt einbýlishús á tveimur hæðum með rúmgóðri auka íbúð við Virkisás 22 í Áslandi 4, Hafnarfirði. Húsið er skráð 315,9 fm að stærð samkvæmt fmr og stendur vel í götunni, skipting eignarinnar er eftirfarandi: Íbúðarhlutinn er 280,8 fm og bílskúrinn er 35,1 fm, um er að ræða nýtt hverfis vel skipulagt með fallegum sérbýlum.
Samkvæmt eiganda hússins skilast það á byggingarstigi 3 (tilbúið til innréttingar), einangrað og klætt að utan með fallegri klæðningu frá Áltak og steyptir veggir að utan (Bollaslípaðir). Lóðin skilast grófjöfnuð, dregið verður í rafmagn fyrir úti ljós, klæðning undir anddyri er frá Byko og gluggar frá Radioned frá Húsasmiðjunni. Skilast með uppsettri rafmagnstöflu, dregið hefur verið í mest allt rafmagn (þó ekki full frágengið), veggir loft innan húss hafa verið bollaslípuð, þrír uppsettir klósettkassar af fjórum en fjórði fylgir með og frárennsli tengt, gólfhiti er tengdur að frátalinni auka íbúðinni. Nánari upplýsingar má finna hjá sölumanni eignarinnar.
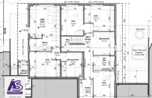
Skipting eignar (sjá nánar á teikningum):
Efri hæð: Rúmgóð forstofa, gestasalerni, stórt bjart alrými sem saman stendur af borðstofu, stofu og eldhúsi, hjónasvítu með fata- og baðherbergi,
innangengt inn í bílskúrinn úr forstofunni, hann er bjartur með stórum glugga, afar fallegur setu gluggi í alrýminu, útgengt úr eldhúsinu út á verönd. Köld úti geymsla undir stiganum.
Neðri hæð: Komið er niður stiga inn á gang, fjögur rúmgóð svefnherbergi, baðherbergi og þvottahús, útgengt er úr neðri hæðinni út á rúmgóða verönd þar er teiknaður heitur og kaldur pottur.
Auka íbúð: Forstofa, stofa, eldhús, svefnherbergi, baðherbergi og þvottaaðstaða, auka íbúðin er alveg sér og því ætti maður að finna litið fyrir henni.
Um er að ræða glæsilegt hús á þessum fallega stað þar sem stutt er í falleg útivistarsvæði og alla helstu þjónustu, eign sem bíður upp á mikla möguleika og vert er að skoða.
Nánari upplýsingar veitir:
Stefán Rafn Sigurmannsson s.655-7000 eða [email protected]
Ás fasteignasala er rótgróið fyrirtæki sem hefur veitt alla almenna þjónustu í fasteignaviðskiptum frá árinu 1988.
www.facebook.com/asfasteignasala
www.instagram.com/as_fasteignasala
www.as.is
Samkvæmt eiganda hússins skilast það á byggingarstigi 3 (tilbúið til innréttingar), einangrað og klætt að utan með fallegri klæðningu frá Áltak og steyptir veggir að utan (Bollaslípaðir). Lóðin skilast grófjöfnuð, dregið verður í rafmagn fyrir úti ljós, klæðning undir anddyri er frá Byko og gluggar frá Radioned frá Húsasmiðjunni. Skilast með uppsettri rafmagnstöflu, dregið hefur verið í mest allt rafmagn (þó ekki full frágengið), veggir loft innan húss hafa verið bollaslípuð, þrír uppsettir klósettkassar af fjórum en fjórði fylgir með og frárennsli tengt, gólfhiti er tengdur að frátalinni auka íbúðinni. Nánari upplýsingar má finna hjá sölumanni eignarinnar.
Skipting eignar (sjá nánar á teikningum):
Efri hæð: Rúmgóð forstofa, gestasalerni, stórt bjart alrými sem saman stendur af borðstofu, stofu og eldhúsi, hjónasvítu með fata- og baðherbergi,
innangengt inn í bílskúrinn úr forstofunni, hann er bjartur með stórum glugga, afar fallegur setu gluggi í alrýminu, útgengt úr eldhúsinu út á verönd. Köld úti geymsla undir stiganum.
Neðri hæð: Komið er niður stiga inn á gang, fjögur rúmgóð svefnherbergi, baðherbergi og þvottahús, útgengt er úr neðri hæðinni út á rúmgóða verönd þar er teiknaður heitur og kaldur pottur.
Auka íbúð: Forstofa, stofa, eldhús, svefnherbergi, baðherbergi og þvottaaðstaða, auka íbúðin er alveg sér og því ætti maður að finna litið fyrir henni.
Um er að ræða glæsilegt hús á þessum fallega stað þar sem stutt er í falleg útivistarsvæði og alla helstu þjónustu, eign sem bíður upp á mikla möguleika og vert er að skoða.
Nánari upplýsingar veitir:
Stefán Rafn Sigurmannsson s.655-7000 eða [email protected]
Ás fasteignasala er rótgróið fyrirtæki sem hefur veitt alla almenna þjónustu í fasteignaviðskiptum frá árinu 1988.
www.facebook.com/asfasteignasala
www.instagram.com/as_fasteignasala
www.as.is