Löggiltir fasteignasalar innan Félags fasteignasala:
Björn Guðmundsson
Berglind Jónasardóttir
Greta Huld Mellado
Vista
svg

103

svg

97  Skoðendur

svg

Skráð  6. mar. 2026

atvinnuhúsnæði

Týsnes 4 - 106

603 Akureyri

30.000.000 kr.

482.315 þ.kr./m2
Fasteignanúmer

F2534222

Fasteignamat

23.050.000 kr.

Brunabótamat

25.050.000 kr.

Áhvílandi

0 kr.

Arion banki – Reikna lán
Upplýsingar
Verðsaga
svg
Byggt 2025
svg
62,2 m²
svg
0 herb.
svg
Sérinngangur
svg
Laus strax

Lýsing

    

Fasteignasalan Byggð 464-9955 - Einkasala 

Týsnes 4 - 106

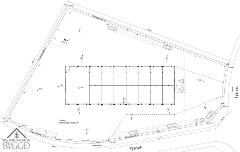
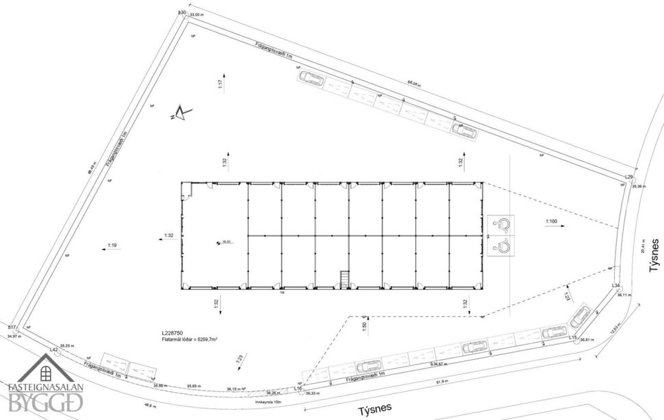
Um er að ræða geymsluhúsnæði á einni hæð við Týsnes á Akureyri. Húsið er staðsett á 5259 fm. lóð og í húsinu eru 15 einingar auk sameiginlegs inntaks/tæknirými. 

Rými 106 er á austurhlið hússins, rýmið er skráð samtals 62,2 fm. að stærð. Innkeyrsluhurð 4 m. á breidd og  4,5 m. á hæð. Tæpir 7 m upp í hæðstu lofthæð, hæð frá gólfi og upp í loft við útihurð um 4,8 m. Rúmir 6 m vegg í vegg og um 9,7 m frá innkeyrsluhurð að innan og að vegg (dýpt).


Í malbikuðu bílaplani er snjóbræðsla að lágmarki 2 metra út frá útveggjum.
Að innan eru bilin með gólfhita og vélslípuðum steyptum gólfum. Niðurföll í gólfum þar og gert er ráð fyrir að hægt sé að útbúa snyrtingu í bilinu. Greinatafla er í hverju bili tengi fyrir þriggja fasa rafmagn, 220 W tengill við greinatöflu og útilýsing. 

Á eigninni hvílir vsk-kvöð.

Eignin getur verið laus til afhendingar við kaupsamning. 

Gjöld sem kaupandi þarf að standa straum af vegna kaupanna:  
1. Stimpilgjald af kaupsamningi - 0.8% af heildarfasteignamati / 1.6% fyrir lögaðila.    (0.4% við fyrstu kaup einstaklinga m.v. að lágmarki 50% eignarhlut).
2. Þinglýsingagjald af kaupsamningi, veðskuldabréfi, veðleyfi o.fl.- kr. 2.700 af hverju skjali.
3. Lántökugjald lánastofnunar -almennt 0,5-1,0% af höfuðstól skuldabréfs (nánari upplýsingar m.a. á heimasíðum lánastofnanna).
4. Umsýsluþóknun til fasteignasölu, sbr.kauptilboð. 

Frekari upplýsingar:
[email protected]
[email protected]
[email protected]

Skipagötu 16 á 2. hæð.
S:464 9955 


 

Byggð fasteignasala

Byggð fasteignasala

Skipagata 16, 600 Akureyri
phone
Ár
Fasteignamat
Kaupverð
Stærð
Fermetraverð
18. ágú. 2025
21.750.000 kr.
25.700.000 kr.
10106 m²
2.543 kr.
Byggt á upplýsingum úr Þjóðskrá Íslands frá 2006-2026
Byggð fasteignasala

Byggð fasteignasala

Skipagata 16, 600 Akureyri
phone