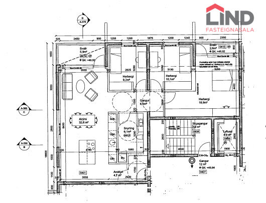
Álalind, 201 Kópavogur