Upplýsingar
Byggt 1986
148,5 m²
5 herb.
Sérinngangur
Lýsing
Hraunhamar Fasteignasala og Helgi Jón Harðarson sölustjóri s.893-2233, [email protected], kynna glæsilegt atvinnuhúsnæði til Sölu en mögulega væri hægt að fá húsnæðið leigt, sem er 148,5fm á jarðhæð á frábærum stað við Bæjarhraun 6 Hafnarfirði. Húsnæðið er sérstaklega vel staðsett á eftirsóttum stað og mjög vel sýnilegt skammt frá Fjarðarhrauni/Reykjanesbraut umferðargötu með gott auglýsingagildi. Tvímælalaust ein besta staðsetningin í bænum, beint á móti versluninni Bónus, hinu megin við Reykjanesbrautina. Laust strax.
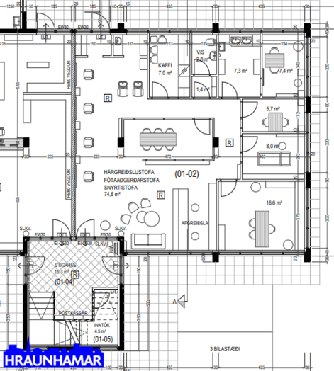
Vel skipulagt húsnæði með 6 vinnurýmum auk stórt miðjurýmis, setustofa, kaffistofa, salerni, rúmgott andyri og góð aðkoma. Allir innveggir, milliveggir eru léttir veggir og er mjög einfalt að breyta innra skipulagi húsnæðisins fyrir hvaða starfsemi sem er.
Húsnæðið hefur verið endurnýjað nýlega að innan.
Húsnæðið hentar vel fyrir, þjónustustarfsemi, skriftstofustarfsemi, tölvustarfsemi, verslun, hárgreiðslustofu, snyrtistofu, sjúkraþjálfun og margt fleira.
Húsinu hefur verið mjög vel haldið við, allt húsið, hús, gluggar og hurðar nýlega málað að utan. Gluggar eru á þrjá vegu, endabil t.h.
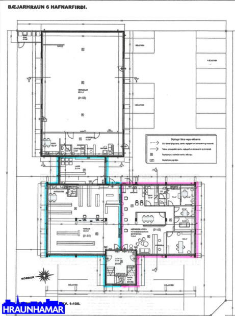
Grunnmynd merkt rauðu á teikningu. Ath: bilið við hliðina er líka til sölu og eða leigu merkt með bláu á grunnmynd. Einning er möguleiki að kaupa bakhúsið líka 294 fm (lager ofl með sex innk.dyrum.)
Húsnæðið er ekki með virðisaukakvöð. Húsnæðið er laust fljótlega. Fasteignamat hússins fyrir 2026 verður kr. 71.050.000.-
Þetta er mjög áhugaverð og glæsileg eign á þessum frábærum stað, sem vert er að skoða.
Nánari upplýsingar veitir Helgi Jón Harðarson Sölustjóri, í síma 893-2233, tölvupóstur [email protected] og
Glódís Helgadóttir lgf s. 659-0510 [email protected]
Skoðunarskylda:
Í lögum um fasteignakaup nr. 40/2002 er kveðið á um ríka skoðunarskyldu kaupenda á fasteignum. Hraunhamar fasteignasala vill benda væntanlegum kaupendum á að kynna sér vel ástand fasteigna fyrir kauptilboðsgerð og ef þurfa þykir að leita til sérfræðinga fyrir nánari ástandsskoðun.
Gjöld sem kaupandi þarf að standa straum af vegna kaupanna:
1. Stimpilgjald af kaupsamningi, fyrstu kaup (0,4%), almenn kaup (0,8%), lögaðilar (1,6%) af heildarfasteignamati.
2. Þinglýsingargjald af kaupsamningi, veðskuldabréfi, mögulegu veðleyfi o.fl. – kr. 3.800 kr. af hverju skjali.
3. Lántökugjald lánastofnunar er skv. verðskrá viðkomandi lánastofnunar.
4. Umsýslugjald til fasteignasölu skv. þjónustusamningi
Hraunhamar er elsta fasteignasala Hafnarfjarðar, stofnuð 1983.
Hraunhamar, í fararbroddi í rúm 41 ár. – Hraunhamar.is
Smelltu hér til að fá frítt söluverðmat.
Smelltu hér til að fá söluyfirlit sent strax.
Vel skipulagt húsnæði með 6 vinnurýmum auk stórt miðjurýmis, setustofa, kaffistofa, salerni, rúmgott andyri og góð aðkoma. Allir innveggir, milliveggir eru léttir veggir og er mjög einfalt að breyta innra skipulagi húsnæðisins fyrir hvaða starfsemi sem er.
Húsnæðið hefur verið endurnýjað nýlega að innan.
Húsnæðið hentar vel fyrir, þjónustustarfsemi, skriftstofustarfsemi, tölvustarfsemi, verslun, hárgreiðslustofu, snyrtistofu, sjúkraþjálfun og margt fleira.
Húsinu hefur verið mjög vel haldið við, allt húsið, hús, gluggar og hurðar nýlega málað að utan. Gluggar eru á þrjá vegu, endabil t.h.
Grunnmynd merkt rauðu á teikningu. Ath: bilið við hliðina er líka til sölu og eða leigu merkt með bláu á grunnmynd. Einning er möguleiki að kaupa bakhúsið líka 294 fm (lager ofl með sex innk.dyrum.)
Húsnæðið er ekki með virðisaukakvöð. Húsnæðið er laust fljótlega. Fasteignamat hússins fyrir 2026 verður kr. 71.050.000.-
Þetta er mjög áhugaverð og glæsileg eign á þessum frábærum stað, sem vert er að skoða.
Nánari upplýsingar veitir Helgi Jón Harðarson Sölustjóri, í síma 893-2233, tölvupóstur [email protected] og
Glódís Helgadóttir lgf s. 659-0510 [email protected]
Skoðunarskylda:
Í lögum um fasteignakaup nr. 40/2002 er kveðið á um ríka skoðunarskyldu kaupenda á fasteignum. Hraunhamar fasteignasala vill benda væntanlegum kaupendum á að kynna sér vel ástand fasteigna fyrir kauptilboðsgerð og ef þurfa þykir að leita til sérfræðinga fyrir nánari ástandsskoðun.
Gjöld sem kaupandi þarf að standa straum af vegna kaupanna:
1. Stimpilgjald af kaupsamningi, fyrstu kaup (0,4%), almenn kaup (0,8%), lögaðilar (1,6%) af heildarfasteignamati.
2. Þinglýsingargjald af kaupsamningi, veðskuldabréfi, mögulegu veðleyfi o.fl. – kr. 3.800 kr. af hverju skjali.
3. Lántökugjald lánastofnunar er skv. verðskrá viðkomandi lánastofnunar.
4. Umsýslugjald til fasteignasölu skv. þjónustusamningi
Hraunhamar er elsta fasteignasala Hafnarfjarðar, stofnuð 1983.
Hraunhamar, í fararbroddi í rúm 41 ár. – Hraunhamar.is
Smelltu hér til að fá frítt söluverðmat.
Smelltu hér til að fá söluyfirlit sent strax.