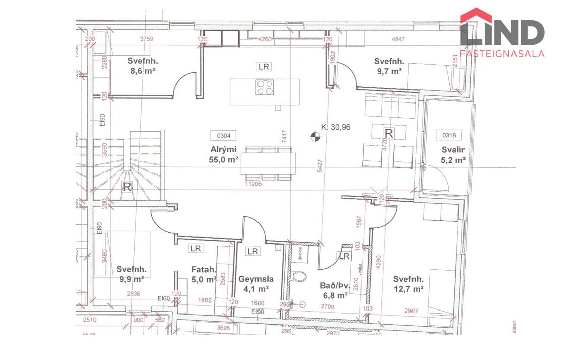
Eskiás, 210 Garðabær