Upplýsingar
Verðsaga
Byggt 2001
232,6 m²
5 herb.
2 baðherb.
4 svefnh.
Þvottahús
Bílskúr
Útsýni
Sérinngangur
Lýsing
Pálsson fasteignasala og Inga Reynis kynna fallegt, rúmgott fjölskylduvænt einbýlishús með 4 svefnherbergjum og tveim baðherbergjum ásamt gufu.
á glæsilegum útsýnisstað í Grafarholti. Húsið er glæsilegt og vel skipulegt, möguleikar að bæta við svefnherbergjum ásamt auka eru 45 fm sem eru óskráðir.
Stór garður með pöllum, heitum pott og yfirbyggðri verönd, tvöfaldur innbyggður bílskúr ásamt stóru upphituðu bílplani.
Sjón er sögu ríkari. HÆGT ER AÐ BÓKA EINKASKOÐUN.
Myndband af eigninni má sjá hér með að smella á linkinn.
Nánari upplýsingar veitir: Inga Reynis löggiltur fasteignasali í síma 820-1903 eða ánetfanginu [email protected]
Eignin er skráð samkvæmt Þjóðskrá Íslands 232,6 fm þar af er bílskúrinn 49,7 fm. Óskráðir fermetrar eru 45.
Fasteignamat 2026 er 162.050.000 mkr. Húsið er byggt 2001.
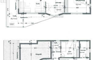
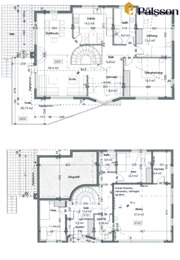
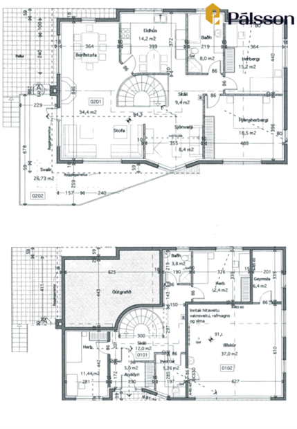
Eignin skiptist í anddyri, rúmgóða stofu, opið sjónvarpsrými og eldhúsi, 4 svefnherbergi, 2 baðherbergi, þvottahús og geymslu. Auk þess eru 45 óskráðir fm, þar sem búið er að koma fyrir geymslu, búri, vinnuherbergi, gufu og sturtu og tvöfaldur innbyggður bílskúr.
NÁNARI LÝSING:
Efri hæð:
Stofa er rúmgóð og björt í sameiginlegu rými með borðstofu. Marmari á gólfi. Útgengt úr stofu út á yfirbyggða verönd.
Eldhús er opið með stofunni. Innrétting með góðu skápaplássi, eldhústækjum, granít á borðum. Marmari á gólfi.
Hjónaherbergi er rúmgott með góðum fataskápum. Parket á gólfi.
Barnaherbergi er rúmgott með fataskáp og parket á gólfi.
Baðherbergi er með fallegri innréttingu, sturtu og baðkari, gluggi er á baðherberginu og er það flísalagt í hólf og gólf.
Neðri hæð:
Forstofa er rúmgóð með góðum skápum og marmari á gólfi.
Svefnherbergi rúmgott með fataskáp og parket á gólfi.
Svefnherbergi mjög rúmgott með parket á gólfi.
Baðherbergi er með glugga, handlaug, salerni og sturtuklefa. Flísar á gólfi og veggjum.
Þvottahúsið er snyrtilegt með vaski og borði. Tengi fyrir þvottavél og þurrkara, flísar á gólfi og veggjum.
Einnig er 45 fm rými með gufu, vinnuherbergi, búri, geymslu og svefnherbergi.
Fallegur stigi á efri hæðina með marmara á gólfi og fallegu handriði.
Garðurinn er gróinn og hellulagður með yfirbyggðri verönd. Glæsileg aðkoma að húsinu og næg bílastæði.
Bílskúr er innangengur frá þvottahúsinu í snyrtilegan bílskúr, hellulagt plan er fyrir framan hann sem er upphitað.
Mjög eftirsótt staðsetning í göngufæri við Golfvöllinn í Grafarholti, Ingunnarskóla, leikskóla og á frisbí golfvöll.
Fallegar gönguleiðir og ósnortin náttúra allt um kring.
Nánari upplýsingar veitir: Inga Reynis löggiltur fasteignasali í síma 820-1903 eða á [email protected]
á glæsilegum útsýnisstað í Grafarholti. Húsið er glæsilegt og vel skipulegt, möguleikar að bæta við svefnherbergjum ásamt auka eru 45 fm sem eru óskráðir.
Stór garður með pöllum, heitum pott og yfirbyggðri verönd, tvöfaldur innbyggður bílskúr ásamt stóru upphituðu bílplani.
Sjón er sögu ríkari. HÆGT ER AÐ BÓKA EINKASKOÐUN.
Myndband af eigninni má sjá hér með að smella á linkinn.
Nánari upplýsingar veitir: Inga Reynis löggiltur fasteignasali í síma 820-1903 eða ánetfanginu [email protected]
Eignin er skráð samkvæmt Þjóðskrá Íslands 232,6 fm þar af er bílskúrinn 49,7 fm. Óskráðir fermetrar eru 45.
Fasteignamat 2026 er 162.050.000 mkr. Húsið er byggt 2001.
Eignin skiptist í anddyri, rúmgóða stofu, opið sjónvarpsrými og eldhúsi, 4 svefnherbergi, 2 baðherbergi, þvottahús og geymslu. Auk þess eru 45 óskráðir fm, þar sem búið er að koma fyrir geymslu, búri, vinnuherbergi, gufu og sturtu og tvöfaldur innbyggður bílskúr.
NÁNARI LÝSING:
Efri hæð:
Stofa er rúmgóð og björt í sameiginlegu rými með borðstofu. Marmari á gólfi. Útgengt úr stofu út á yfirbyggða verönd.
Eldhús er opið með stofunni. Innrétting með góðu skápaplássi, eldhústækjum, granít á borðum. Marmari á gólfi.
Hjónaherbergi er rúmgott með góðum fataskápum. Parket á gólfi.
Barnaherbergi er rúmgott með fataskáp og parket á gólfi.
Baðherbergi er með fallegri innréttingu, sturtu og baðkari, gluggi er á baðherberginu og er það flísalagt í hólf og gólf.
Neðri hæð:
Forstofa er rúmgóð með góðum skápum og marmari á gólfi.
Svefnherbergi rúmgott með fataskáp og parket á gólfi.
Svefnherbergi mjög rúmgott með parket á gólfi.
Baðherbergi er með glugga, handlaug, salerni og sturtuklefa. Flísar á gólfi og veggjum.
Þvottahúsið er snyrtilegt með vaski og borði. Tengi fyrir þvottavél og þurrkara, flísar á gólfi og veggjum.
Einnig er 45 fm rými með gufu, vinnuherbergi, búri, geymslu og svefnherbergi.
Fallegur stigi á efri hæðina með marmara á gólfi og fallegu handriði.
Garðurinn er gróinn og hellulagður með yfirbyggðri verönd. Glæsileg aðkoma að húsinu og næg bílastæði.
Bílskúr er innangengur frá þvottahúsinu í snyrtilegan bílskúr, hellulagt plan er fyrir framan hann sem er upphitað.
Mjög eftirsótt staðsetning í göngufæri við Golfvöllinn í Grafarholti, Ingunnarskóla, leikskóla og á frisbí golfvöll.
Fallegar gönguleiðir og ósnortin náttúra allt um kring.
Nánari upplýsingar veitir: Inga Reynis löggiltur fasteignasali í síma 820-1903 eða á [email protected]
Ár
Fasteignamat
Kaupverð
Stærð
Fermetraverð
28. nóv. 2014
58.500.000 kr.
62.000.000 kr.
232.6 m²
266.552 kr.
23. mar. 2007
46.730.000 kr.
66.000.000 kr.
232.6 m²
283.749 kr.
Byggt á upplýsingum úr Þjóðskrá Íslands frá 2006-2026