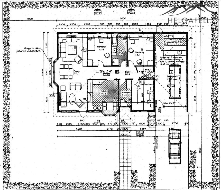
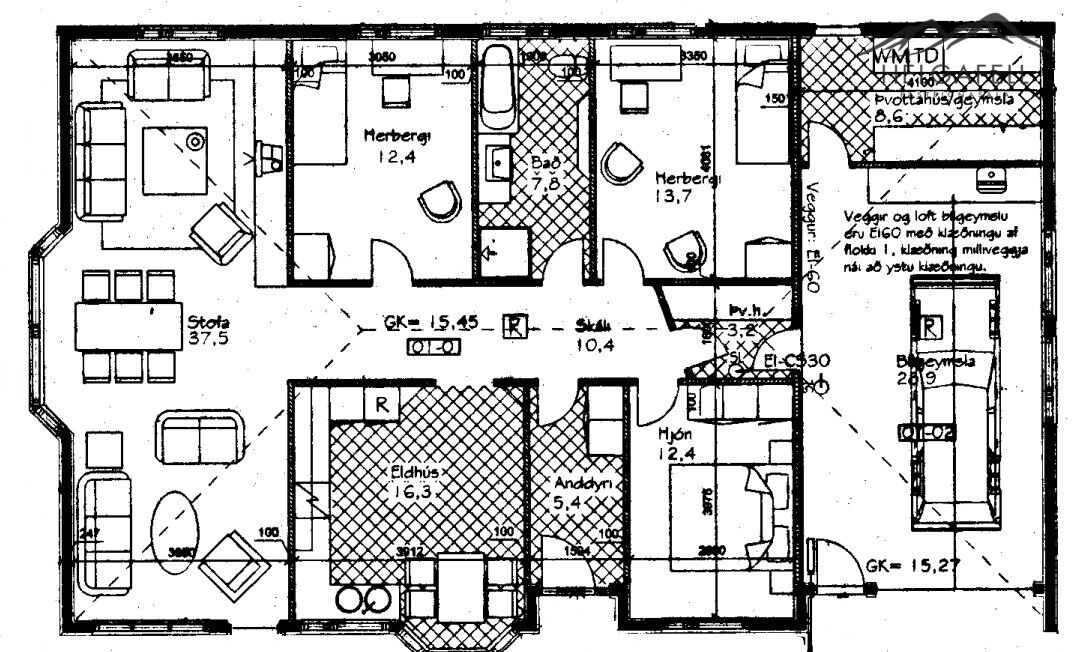
Fosstún, 800 Selfoss