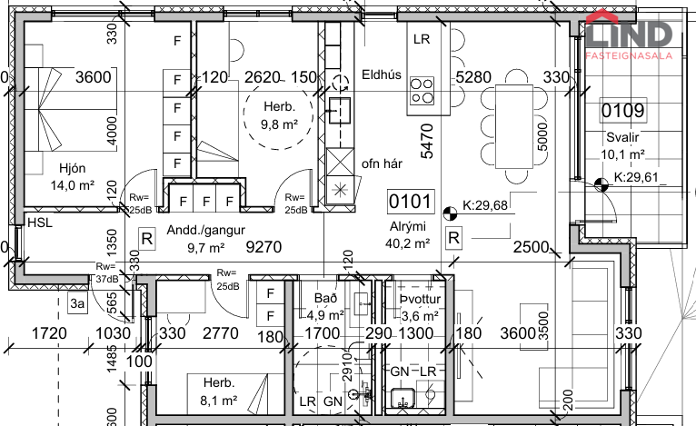
Baughamar, 221 Hafnarfjörður