Upplýsingar
Byggt 2023
137,5 m²
4 herb.
1 baðherb.
3 svefnh.
Sérinngangur
Lýsing
Hraunhamar kynnir: Glæsilega nýbyggingu á frábærum stað við Hádegisskarð 24 (7 íbúðaklasi) í Skarðshlíðarhverfinu í Hafnarfirði í göngufæri við skóla, leikskóla, útivist ofl.
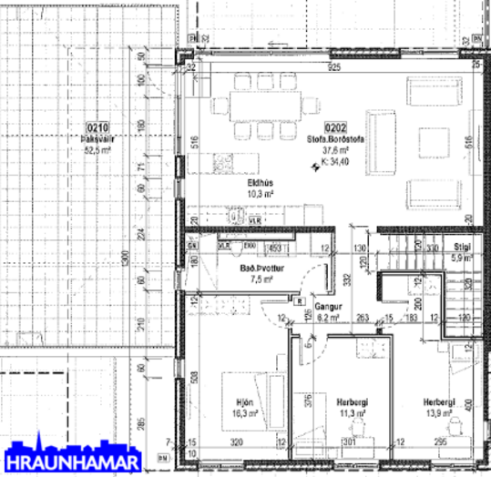
Íbúð 202 er glæsileg fögurra herbergja íbúð með sérinngangi, skráð 137,5 fermetrar með geymslu. Aukin lofthæð er í íbúðinni og fylgir henni um 50 fm þaksvalir. Frábært útsýni.
Afhending við kaupsamning.
Íbúðirnar afhendast fullbúnar með gólfefnum. Innréttingar eru frá HTH og eldhústæki frá AEG. Ísskápur og uppþvottavél fylgir.
Nánari lýsing skv. teikningu:
Sérinngangur. Anddyri með fataskáp á neðri hæð.
Geymsla á neðri hæð.
Góður teppalagður stigi upp á efri hæðina.
Gott opið rými, þar sem eldhús og stofa eru samliggjandi.
Eldhús með smekklegri innréttingu frá HTH og vönduðum eldunartækjum.
Björt stofa og borðstofa og þaðan er útgengt rúmgóðar ca 50 fm þaksvalir sem snúa til suðurs.
Þrjú góð svefnherbergi með fataskápum.
Flísalagt baðherbergi með innréttingu, upphengdu salerni og sturtu. Tengi fyrir þvottavél og þurrkara.
Stæði merkt B3 tilheyrir íbúðinni.
Sérinngangur er fyrir hverja íbúð og sorpgerði er staðsett við sitthvoran endann á húsinu og er sameign allra.
Megin burðarkerfi hússins er steinsteypa. Veggir eru forsteyptar einingar frá BM-Vallá. Plötur eru steinsteyptar, uppbyggðar úr forsteyptum filigranplötum og ásteypulagi.
Bókið skoðun hjá sölumönnum Hraunhamars:
Hlynur Halldórsson, löggiltur fasteignasali, s. 698-2603, [email protected]
Glódís Helgadóttir, löggiltur fasteignasali, s. 659- 0510 [email protected]
Helgi Jón Harðarson, sölust. s. 893-2233, [email protected]
Skoðunarskylda:
Í lögum um fasteignakaup nr. 40/2002 er kveðið á um ríka skoðunarskyldu kaupenda á fasteignum. Hraunhamar fasteignasala vill benda væntanlegum kaupendum á að kynna sér vel ástand fasteigna fyrir kauptilboðsgerð og ef þurfa þykir að leita til sérfræðinga fyrir nánari ástandsskoðun.
Gjöld sem kaupandi þarf að standa straum af vegna kaupanna:
1. Stimpilgjald af kaupsamningi, fyrstu kaup (0,4%), almenn kaup (0,8%), lögaðilar (1,6%) af heildarfasteignamati.
2. Þinglýsingargjald af kaupsamningi, veðskuldabréfi, mögulegu veðleyfi o.fl. – kr. 3,800 kr. af hverju skjali.
3. Lántökugjald lánastofnunar er skv. verðskrá viðkomandi lánastofnunar.
4. Umsýslugjald til fasteignasölu skv. þjónustusamningi
Hraunhamar er elsta fasteignasala Hafnarfjarðar, stofnuð 1983.
Hraunhamar, í farabroddi í rúm 40 ár ! – Hraunhamar.is
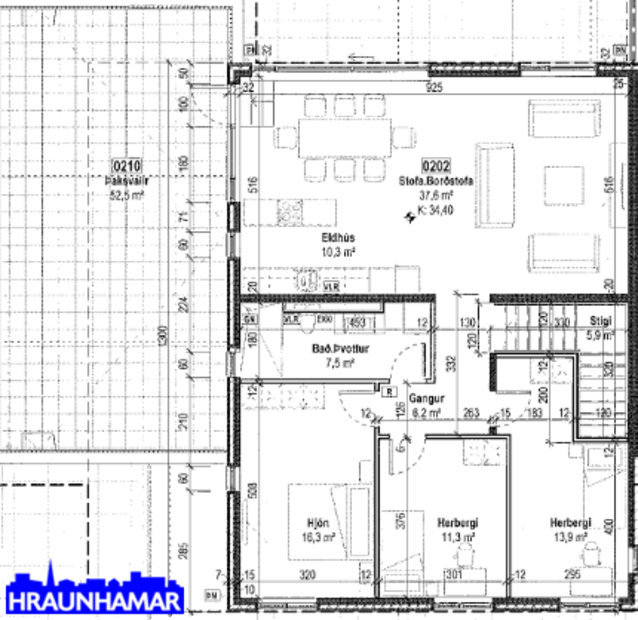
Íbúð 202 er glæsileg fögurra herbergja íbúð með sérinngangi, skráð 137,5 fermetrar með geymslu. Aukin lofthæð er í íbúðinni og fylgir henni um 50 fm þaksvalir. Frábært útsýni.
Afhending við kaupsamning.
Íbúðirnar afhendast fullbúnar með gólfefnum. Innréttingar eru frá HTH og eldhústæki frá AEG. Ísskápur og uppþvottavél fylgir.
Nánari lýsing skv. teikningu:
Sérinngangur. Anddyri með fataskáp á neðri hæð.
Geymsla á neðri hæð.
Góður teppalagður stigi upp á efri hæðina.
Gott opið rými, þar sem eldhús og stofa eru samliggjandi.
Eldhús með smekklegri innréttingu frá HTH og vönduðum eldunartækjum.
Björt stofa og borðstofa og þaðan er útgengt rúmgóðar ca 50 fm þaksvalir sem snúa til suðurs.
Þrjú góð svefnherbergi með fataskápum.
Flísalagt baðherbergi með innréttingu, upphengdu salerni og sturtu. Tengi fyrir þvottavél og þurrkara.
Stæði merkt B3 tilheyrir íbúðinni.
Sérinngangur er fyrir hverja íbúð og sorpgerði er staðsett við sitthvoran endann á húsinu og er sameign allra.
Megin burðarkerfi hússins er steinsteypa. Veggir eru forsteyptar einingar frá BM-Vallá. Plötur eru steinsteyptar, uppbyggðar úr forsteyptum filigranplötum og ásteypulagi.
Bókið skoðun hjá sölumönnum Hraunhamars:
Hlynur Halldórsson, löggiltur fasteignasali, s. 698-2603, [email protected]
Glódís Helgadóttir, löggiltur fasteignasali, s. 659- 0510 [email protected]
Helgi Jón Harðarson, sölust. s. 893-2233, [email protected]
Skoðunarskylda:
Í lögum um fasteignakaup nr. 40/2002 er kveðið á um ríka skoðunarskyldu kaupenda á fasteignum. Hraunhamar fasteignasala vill benda væntanlegum kaupendum á að kynna sér vel ástand fasteigna fyrir kauptilboðsgerð og ef þurfa þykir að leita til sérfræðinga fyrir nánari ástandsskoðun.
Gjöld sem kaupandi þarf að standa straum af vegna kaupanna:
1. Stimpilgjald af kaupsamningi, fyrstu kaup (0,4%), almenn kaup (0,8%), lögaðilar (1,6%) af heildarfasteignamati.
2. Þinglýsingargjald af kaupsamningi, veðskuldabréfi, mögulegu veðleyfi o.fl. – kr. 3,800 kr. af hverju skjali.
3. Lántökugjald lánastofnunar er skv. verðskrá viðkomandi lánastofnunar.
4. Umsýslugjald til fasteignasölu skv. þjónustusamningi
Hraunhamar er elsta fasteignasala Hafnarfjarðar, stofnuð 1983.
Hraunhamar, í farabroddi í rúm 40 ár ! – Hraunhamar.is