Upplýsingar
Byggt 2025
120,9 m²
5 herb.
1 baðherb.
4 svefnh.
Þvottahús
Sérinngangur
Lýsing
Sýni samdægurs
Bókið einkaskoðun í síma 7704040 / Geggjuð sérhæð frábært verð.
Valhöll fasteignasala og Gylfi Þór löggiltur fasteignasali kynna 10 sérhæðir við Dvergadal 12-20. Um er að ræða tvær týpur A og B.
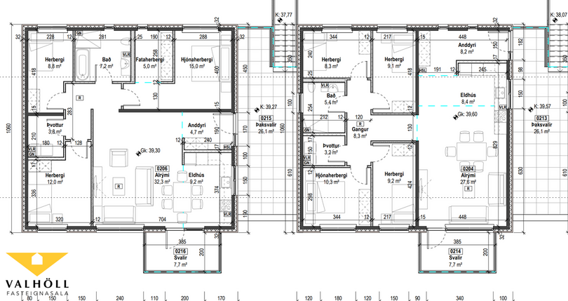
Dvergadalur 18A neðri hæð týpa B– Falleg og rúmgóð 4-5ra herbergja skráð stærð samkvæmt fasteignaskrá 120,9 m2 :Íbúð: 114,5m²Geymsla: 6,4m"
Íbúðin er vel skipulögð 4-5ra herbergja íbúð með fjórum svefnherbergjum. Íbúðin er með stórt og bjart opið rými eldhúss, stofu og útgegnt út á pall úr stofu. Hentar því bæði stórum sem smærri fjölskyldum.
Lýsing eignar
Forstofa. Með skápum.
Eldhús og stofa. Opið, bjart og rúmgott rými útgengt á hellulagðan pall.
Eldhúsið er með Quartz stein á borðplötum. AEG tæki frá Ormsson: helluborð, blástursofn, innbyggð uppþvottavél og ísskápur.
Baðherbergi. Dökk innrétting upphengt salerni og walk in sturta. Hitastýrð blöndunartæki og handklæðaofn. Blöndunartæki frá GROHE
Svefnherbergi. Herbergjum er skilað tilbúnum fyrir ljósatengingar, án gólfefna.
Þvottahús er innan íbúðar með vandaðri innréttingu fyrir þvottavél og þurrkara ásamt vaski.
Geymsla. 6,4 m² sérgeymsla með aðgengi utanfrá.
Allar innréttingar eru vandaðar sérsmíðaðar. Hurðir eru frá Birgisson ehf.
Gólfefni eru ekki lögð á íbúðina að undanskildum votrýmum. Möguleiki á að fá eignina með ásettum öllum gólfefnum og yrði verðið þá 84.900.000 kr. Lóð skilast fullkláruð með þökum og hellulögn.
Smellið á link til að sjá teikningar
Húsnæði og umhverfi
Dvergadalur 12–20 samanstendur af fimm vönduðum keðjuhúsum, alls 10 íbúðum á tveimur hæðum. Íbúðirnar eru á bilinu 120,5–123,9 m²:
4 íbúðir – 3-4 herbergja (týpa A)
6 íbúðir – 4-5 herbergja (týpa B)
Hver íbúð hefur sérinngang, mikil lítil sameign og um 6-7 m² geymslu.
Húsin standa á jaðarlóð með fallegri náttúrulegri baklóð sem snýr í suður.
Neðri hæðir hafa sérafnotareiti.
Efri hæðir hafa svalir.
Tvö bílastæði fylgja hverri íbúð.
Hiti í gönguleiðum, tröppum og stigapöllum.
Skilalýsing – Helstu atriði
Burðarvirki og frágangur utanhúss
Forsteyptar einingar frá BM Vallá í sökkli, út- og innveggjum, stigum og svalagólfi.
Filigran milliplötur með ásteypu.
Þak einangrað með XPS og tvöföldu þakpappi, steyptur halli.
Gluggar úr timbri/áli með tvöföldu K-gleri frá Byko.
Gler frá gólfi og allt að 60 cm eða hærra er með öryggisgleri.
Lagnir og hiti
Húsið hitað með ofnalögn.
Neyslu- og frárennslislagnir úr plasti.
Varmaskiptir fyrir heitt vatn við inntak.
Möguleiki fyrir hleðslustöðvar rafbíla samkvæmt byggingarreglugerð.
Innréttingar og frágangur innanhúss
Allar innréttingar eru sérsmíðaðar frá 3AM ehf.
Hurðir og flísar frá Birgisson.
Blöndunartæki frá GROHE.
Léttveggir klddir með krossvið og einangraðir með steinull þar sem við á annars 2 falt gips..
Loft sandspörsluð og máluð í ljósum lit.
Raflagnir
Rofar og tenglar: hvítt standard efni frá Reykjafelli.
Lýsing uppsett í stofu, eldhúsi, baðherbergi og þvottahúsi.
Ljósleiðari í húsinu.
Dyrabjalla uppsett.
Loftræsting
Vélræn loftræsting í eldhúsi, baðherbergi og þvottahúsi.
Að öðru leyti náttúruleg loftræsting um opnanlega glugga.
Nánari upplýsingar veitir:
Gylfi Þór Gylfason s. 7704040 löggiltur fasteignasali eða á [email protected]
Um skoðunar- og aðgæsluskyldu:
Í lögum um fasteignakaup nr. 40/2002 er kveðið á um ríka skoðunarskyldu kaupenda á fasteignum. Valhöll fasteignasala bendir væntanlegum kaupendum á að kynna sér vel ástand fasteigna við skoðun og fyrir tilboðsgerð og ef þurfa þykir að leita til sérfræðinga um nánari ástandsskoðun.
Forsendur söluyfirlits:
Söluyfirlit er samið af fasteignasala í samræmi við ákvæði laga nr. 70/2015. Þær upplýsingar sem fram koma í söluyfirliti þessu eru sóttar í opinberar skrár, til seljanda sjálfs og eftir atvikum til húsfélags. Seljandi veitir upplýsingar um eign í samræmi við upplýsingaskyldu laga um fasteignakaup nr. 40/2002. Fasteignasali sannreynir að þær upplýsingar séu réttar með sjónskoðun á eigninni. Fasteignasali getur ekki fullyrt um ástand og eiginleika þeirra hluta fasteigna sem ekki eru aðgengilegir og sjást ekki berum augum, t.d. lagnir, dren, skólp og þak.
Gjöld sem kaupandi þarf að standa straum af vegna kaupanna:
Stimpilgjald af kaupsamningi sem er hlutfall af fasteignamati. Stimpilgjald er 0,8% fyrir einstaklinga (0,4% við fyrstu kaup m.v. að lágmarki 50% eignarhlut) og 1,6% fyrir lögaðila.
Þinglýsingargjald af kaupsamningi, veðskuldabréfum, veðleyfum o.fl. Þinglýsingargjald er kr. 2.700,- fyrir hvert skjal.
Lántökugjald lánastofnunar. Um lántökugjald vísast í gjaldskrá viðkomandi lánveitanda.
Umsýsluþóknun fasteignasölu skv. gjaldskrá.
Ef um nýbyggingu er að ræða greiðir kaupandi skipulagsgjald, 0,3% af brunabótamáti, þegar það er lagt á.
Bókið einkaskoðun í síma 7704040 / Geggjuð sérhæð frábært verð.
Valhöll fasteignasala og Gylfi Þór löggiltur fasteignasali kynna 10 sérhæðir við Dvergadal 12-20. Um er að ræða tvær týpur A og B.
Dvergadalur 18A neðri hæð týpa B– Falleg og rúmgóð 4-5ra herbergja skráð stærð samkvæmt fasteignaskrá 120,9 m2 :Íbúð: 114,5m²Geymsla: 6,4m"
Íbúðin er vel skipulögð 4-5ra herbergja íbúð með fjórum svefnherbergjum. Íbúðin er með stórt og bjart opið rými eldhúss, stofu og útgegnt út á pall úr stofu. Hentar því bæði stórum sem smærri fjölskyldum.
Lýsing eignar
Forstofa. Með skápum.
Eldhús og stofa. Opið, bjart og rúmgott rými útgengt á hellulagðan pall.
Eldhúsið er með Quartz stein á borðplötum. AEG tæki frá Ormsson: helluborð, blástursofn, innbyggð uppþvottavél og ísskápur.
Baðherbergi. Dökk innrétting upphengt salerni og walk in sturta. Hitastýrð blöndunartæki og handklæðaofn. Blöndunartæki frá GROHE
Svefnherbergi. Herbergjum er skilað tilbúnum fyrir ljósatengingar, án gólfefna.
Þvottahús er innan íbúðar með vandaðri innréttingu fyrir þvottavél og þurrkara ásamt vaski.
Geymsla. 6,4 m² sérgeymsla með aðgengi utanfrá.
Allar innréttingar eru vandaðar sérsmíðaðar. Hurðir eru frá Birgisson ehf.
Gólfefni eru ekki lögð á íbúðina að undanskildum votrýmum. Möguleiki á að fá eignina með ásettum öllum gólfefnum og yrði verðið þá 84.900.000 kr. Lóð skilast fullkláruð með þökum og hellulögn.
Smellið á link til að sjá teikningar
Húsnæði og umhverfi
Dvergadalur 12–20 samanstendur af fimm vönduðum keðjuhúsum, alls 10 íbúðum á tveimur hæðum. Íbúðirnar eru á bilinu 120,5–123,9 m²:
4 íbúðir – 3-4 herbergja (týpa A)
6 íbúðir – 4-5 herbergja (týpa B)
Hver íbúð hefur sérinngang, mikil lítil sameign og um 6-7 m² geymslu.
Húsin standa á jaðarlóð með fallegri náttúrulegri baklóð sem snýr í suður.
Neðri hæðir hafa sérafnotareiti.
Efri hæðir hafa svalir.
Tvö bílastæði fylgja hverri íbúð.
Hiti í gönguleiðum, tröppum og stigapöllum.
Skilalýsing – Helstu atriði
Burðarvirki og frágangur utanhúss
Forsteyptar einingar frá BM Vallá í sökkli, út- og innveggjum, stigum og svalagólfi.
Filigran milliplötur með ásteypu.
Þak einangrað með XPS og tvöföldu þakpappi, steyptur halli.
Gluggar úr timbri/áli með tvöföldu K-gleri frá Byko.
Gler frá gólfi og allt að 60 cm eða hærra er með öryggisgleri.
Lagnir og hiti
Húsið hitað með ofnalögn.
Neyslu- og frárennslislagnir úr plasti.
Varmaskiptir fyrir heitt vatn við inntak.
Möguleiki fyrir hleðslustöðvar rafbíla samkvæmt byggingarreglugerð.
Innréttingar og frágangur innanhúss
Allar innréttingar eru sérsmíðaðar frá 3AM ehf.
Hurðir og flísar frá Birgisson.
Blöndunartæki frá GROHE.
Léttveggir klddir með krossvið og einangraðir með steinull þar sem við á annars 2 falt gips..
Loft sandspörsluð og máluð í ljósum lit.
Raflagnir
Rofar og tenglar: hvítt standard efni frá Reykjafelli.
Lýsing uppsett í stofu, eldhúsi, baðherbergi og þvottahúsi.
Ljósleiðari í húsinu.
Dyrabjalla uppsett.
Loftræsting
Vélræn loftræsting í eldhúsi, baðherbergi og þvottahúsi.
Að öðru leyti náttúruleg loftræsting um opnanlega glugga.
Nánari upplýsingar veitir:
Gylfi Þór Gylfason s. 7704040 löggiltur fasteignasali eða á [email protected]
Um skoðunar- og aðgæsluskyldu:
Í lögum um fasteignakaup nr. 40/2002 er kveðið á um ríka skoðunarskyldu kaupenda á fasteignum. Valhöll fasteignasala bendir væntanlegum kaupendum á að kynna sér vel ástand fasteigna við skoðun og fyrir tilboðsgerð og ef þurfa þykir að leita til sérfræðinga um nánari ástandsskoðun.
Forsendur söluyfirlits:
Söluyfirlit er samið af fasteignasala í samræmi við ákvæði laga nr. 70/2015. Þær upplýsingar sem fram koma í söluyfirliti þessu eru sóttar í opinberar skrár, til seljanda sjálfs og eftir atvikum til húsfélags. Seljandi veitir upplýsingar um eign í samræmi við upplýsingaskyldu laga um fasteignakaup nr. 40/2002. Fasteignasali sannreynir að þær upplýsingar séu réttar með sjónskoðun á eigninni. Fasteignasali getur ekki fullyrt um ástand og eiginleika þeirra hluta fasteigna sem ekki eru aðgengilegir og sjást ekki berum augum, t.d. lagnir, dren, skólp og þak.
Gjöld sem kaupandi þarf að standa straum af vegna kaupanna:
Stimpilgjald af kaupsamningi sem er hlutfall af fasteignamati. Stimpilgjald er 0,8% fyrir einstaklinga (0,4% við fyrstu kaup m.v. að lágmarki 50% eignarhlut) og 1,6% fyrir lögaðila.
Þinglýsingargjald af kaupsamningi, veðskuldabréfum, veðleyfum o.fl. Þinglýsingargjald er kr. 2.700,- fyrir hvert skjal.
Lántökugjald lánastofnunar. Um lántökugjald vísast í gjaldskrá viðkomandi lánveitanda.
Umsýsluþóknun fasteignasölu skv. gjaldskrá.
Ef um nýbyggingu er að ræða greiðir kaupandi skipulagsgjald, 0,3% af brunabótamáti, þegar það er lagt á.