Löggiltir fasteignasalar innan Félags fasteignasala:
Sigurður Samúelsson
Andri Sigurðsson
Sveinn Eyland
Ingibjörg Agnes Jónsdóttir
Guðrún Diljá Lúðvíksdóttir
Monika Hjálmtýsdóttir
Júlíus Jóhannsson
Freyja Rúnarsdóttir
Jón Óskar Karlsson
Davíð Matthíasson
Erla Friðriksdóttir
Upplýsingar
Verðsaga
svg
Byggt 2017
svg
144,3 m²
svg
4 herb.
svg
2 baðherb.
svg
3 svefnh.
svg
Þvottahús
svg
Bílskúr
svg
Sérinngangur

Lýsing

LANDMARK fasteignamiðlun ehf. og Andri Sigurðsson Löggiltur fasteignasali (s: 690 3111 / [email protected]) og félagsmaður í Félagi fasteignasala kynna í einkasölu:

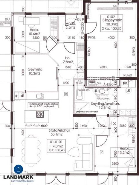
Virkilega fallegt endaraðhús á einni hæð ásamt bílskúr á rólegum og barnvænum stað við Faldarhvarf 8 í Kópavoginum. Frá stofu er gengið út á rúmlega 100 fm timburpall með heitum potti. Steypt upphitað bílaplan. Örstutt er í alla þjónustu, skóla, leikskóla og frábærar gönguleiðir allt í kring. Góð eign á þessum eftirsótta og fallega stað. Birt stærð skv. HMS: Íbúðarrýmið er 114 fm og bílskúrinn er skráður 30,3 fm eða samtals: 144,3 fm. Í lok árs 2025 lauk framkvæmdum í forstofu og gangi. Veggklæðning, innbyggður bekkur og innrétting, sérsmíðaðar hillur og spegill með baklýsingu í forstofu. Alrýmið var málað í okt 25 og settir nýjir gólfflistar - innfelld lýsing í loftum - tvö baðherbergi. Þrjú til fjögur svefnherbergi (kæmi til greina að nýta bílskúrinn sem fjórða svefnherbergið). Hleðslustöð fylgir ekki með í kaupunum. 

Nánari lýsing eignar: Komið er inn í parketlagða forstofu. Á vinstri hönd er innangengt í bílskúrinn sem hefur verið stúkaður af og útbúið herbergi/sjónvarpsrými með parketi, auk baðherbergis. Frá forstofu tekur við parketlagður gangur með nýjum, veglegum sérsmíðuðum fataskáp frá Formus. Rúmgott svefnherbergi I með parketi á gólfi (þetta rými er skráð sem geymsla skv. teikningum). Mjög gott svefnherbergi II með fataskáp. Stofa, borðstofa og eldhús í opnu rými. Falleg hvít innrétting í eldhúsi með eyju og með útgangi út á timburpallinn. Falleg Quartz borðplata á eldhúseyju og í innréttingu. Frá stofu er einnig unnt að ganga út á sólríkan og fallegan timburpall með heitum potti og útisturtu. Flísalagt baðherbergi í hólf og gólf með hvítri innréttingu, baðkar, sturtua með reyklituðu sturtugleri, handklæðaofn. Quartz borðplata og sérsmíðaður vaskur á baðherbergi. Þakgluggi á baðherbergi sem gefur góða birtu inn í rýmið. Veggur á milli þvottahúss og baðherbergis, innrétting í þvottahúsi. Rúmgott hjónaherbergi, fataherbergi innaf herbergi. Frá hjónaherbergi er unnt að ganga út á pallinn. Parket og flísar á gólfum. 

EINSTÖK STAÐSETNING VIÐ RÓLEGA GÖTU Í BOTNLANGA ÞAR SEM STUTT ER Í VATNSENDASKÓLA, LEiKSKÓLA, ÍÞRÓTTAHÚS, VERSLUN, VEITINGASTAÐI O.FL. EINNIG ER STUTT Í FALLEGAR GÖNGULEIÐIR OG ÚTIVISTAPERSLUNA ELLIÐAVATN.

Allar nánari upplýsingar veitir og bókun á skoðunartíma: Andri Sigurðsson Löggiltur fasteignasali í síma 690 3111 eða [email protected]

Umsagnir viðskiptavina HÉR
Fylgdu mér á Facebook
Fylgdu mér á Instagram

Pantaðu FRÍTT söluverðmat á www.frittsoluverdmat.is
 

Skoðunar- og aðgæsluskylda:
Lög um fasteignakaup nr. 40/2002 kveða á um að kaupendur þurfi að skoða fasteignir vel áður en tilboð er gert. LANDMARK fasteignamiðlun ráðleggur kaupendum að skoða ástand eignar og leita sér aðstoðar sérfræðinga ef þörf er á nánari skoðun.

Söluyfirlit:
Söluyfirlit er gert af fasteignasala samkvæmt lögum nr. 70/2015. Upplýsingar í yfirlitinu eru fengnar úr opinberum skrám, frá seljanda og ef þarf frá húsfélagi. Fasteignasali sannreynir upplýsingar með skoðun á eigninni en getur ekki sannreynt ástand þess sem ekki er aðgengilegt eða sýnilegt, t.d. lagnir, dren, skólp og þak.

Gjöld sem kaupandi þarf að greiða:
1. Stimpilgjald: 0,8% af fasteignamati (0,4% fyrir fyrstu kaup) og 1,6% fyrir lögaðila.
2. Þinglýsingargjald: 2.700 kr. fyrir hvert skjal.
3. Lántökugjald: Fer eftir gjaldskrá lánveitanda.
3. Þjónustusýslugjald: 79.000 kr. m/vsk.
3. Skipulagsgjald: Ef um nýbyggingu er að ræða, 0,3% af brunabótamáti þegar það er lagt á.

Heimasíða LANDMARK
Pantaðu frítt söluverðmat

img
Andri Sigurðsson
Lögg.fasteignasali innan félags fasteignasala
LANDMARK fasteignamiðlun
Hlíðasmári 2, 201 Kópavogur
LANDMARK fasteignamiðlun

LANDMARK fasteignamiðlun

Hlíðasmári 2, 201 Kópavogur
phone
img

Andri Sigurðsson

Hlíðasmári 2, 201 Kópavogur
Ár
Fasteignamat
Kaupverð
Stærð
Fermetraverð
12. jún. 2019
65.150.000 kr.
75.900.000 kr.
144.3 m²
525.988 kr.
Byggt á upplýsingum úr Þjóðskrá Íslands frá 2006-2026
LANDMARK fasteignamiðlun

LANDMARK fasteignamiðlun

Hlíðasmári 2, 201 Kópavogur
phone

Andri Sigurðsson

Hlíðasmári 2, 201 Kópavogur