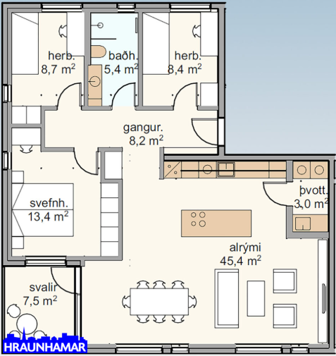
Apalskarð, 221 Hafnarfjörður