Löggiltir fasteignasalar innan Félags fasteignasala:
Sigurður Maack Gunnarsson
Svanþór Einarsson
Theodór Emil Karlsson
Steingrímur Benediktsson
Vista
fjölbýlishús

Háholt 4A

270 Mosfellsbær

65.900.000 kr.

781.732 þ.kr./m2
Fasteignanúmer

F2298899

Fasteignamat

64.350.000 kr.

Brunabótamat

41.200.000 kr.

Áhvílandi

0 kr.

Arion banki – Reikna lán
Upplýsingar
Verðsaga
svg
Byggt 2007
svg
84,3 m²
svg
3 herb.
svg
1 baðherb.
svg
2 svefnh.
svg
Þvottahús
svg
Sérinngangur

Lýsing

** EIGNIN ER SELD MEÐ FYRIRVARA UM FJÁRMÖGNUN - OPIÐ HÚS SEM ÁTTI AÐ HALDA Í DAG, MIÐVIKUDAGINN 18. MARS, FELLUR NIÐUR **  

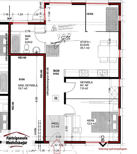
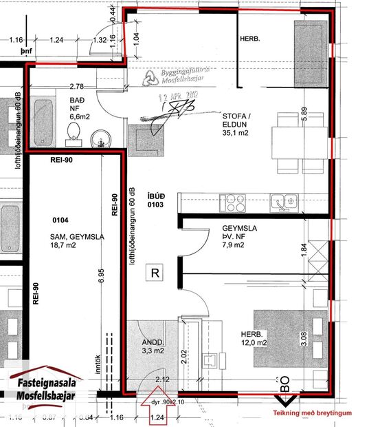
Fasteignasala Mosfellsbæjar kynnir: Falleg og vel skipulögð 84,3 m2, 2-3ja herbergja endaíbúð með sérinngangi á jarðhæð í þriggja hæða fjölbýlishúsi við Háholt 4A í miðbæ Mosfellsbæjar. Íbúðin skiptist í forstofu, gang, stofu, eldhús, tvö svefnherbergi, baðherbergi og þvottahús/geymslu. Gólfhiti og fallegar innréttingar. Góð timburverönd í vesturátt. Íbúðin er staðsett í hjarta Mosfellsbæjar þar sem örstutt er í verslun, þjónustu, almenningssamgöngur og skóla.

** Smelltu hér til að fá söluyfirlit sent strax **


Nánari lýsing:
Forstofa er með flísum á gólfi og góðum fataskáp.
Gangur er með parketflísum á gólfi.
Stofa og eldhús mynda alrými eignarinnar með parketflísum á gólfi. Í eldhúsi er falleg innrétting með stein á borði, bakaraofni í vinnuhæð, span-helluborði og háfi. Gert er ráð fyrir uppþvottavél í innréttingu og ísskápi við hlið innréttingar. Útgengt er á timburverönd til vesturs um tvær svalahurðir. Seljandi lokar sökkli undir eldhúsinnréttingu fyrir afhendingu.
Svefnherbergi 1 (hjónaherbergi) er með parketflísum á gólfi og góðum fataskápum.
Svefnherbergi 2 er með parketflísum á gólfi. Útgengt er á timburverönd til vesturs. Rýmið var áður hluti af alrými en hefur verið breytt í herbergi.
Baðherbergi er flísalagt í hólf og gólf. Góð innrétting með stein á borði og handlaug. Sturtuklefi og vegghengt salerni. Gluggi er á baðherbergi. Seljandi lokar sökkli undir sturtuklefa fyrir afhendingu.
Þvottahús/geymsla er með flísum á gólfi og tengi fyrir þvottavél, þurrkara og skolvask. Gluggi er á þvottahúsi/geymslu.
Íbúðinni fylgir hlutdeild í sameiginlegri geymslu með merkum hillum á jarðhæð. 

Verð kr. 65.900.000,- 



Um skoðunar- og aðgæsluskyldu:
Í lögum um fasteignakaup nr. 40/2002 er kveðið á um ríka skoðunarskyldu kaupenda á fasteignum. Fasteignasala Mosfellsbæjar skorar því á væntanlega kaupendur að kynna sér vel ástand fasteigna fyrir kauptilboðsgerð og leita til þar til bærra sérfræðinga um nánari skoðun ef með þarf.

Forsendur söluyfirlits:
Söluyfirlit er samið af fasteignasala í samræmi við ákvæði laga nr. 70/2015. Þær upplýsingar sem fram koma í söluyfirliti þessu eru sóttar í opinberar skrár, til seljanda sjálfs og eftir atvikum til húsfélags. Seljandi veitir upplýsingar um eign í samræmi við upplýsingaskyldu laga um fasteignakaup nr. 40/2002. Fasteignasali sannreynir að þær upplýsingar séu réttar með sjónskoðun á eigninni.
Fasteignasali getur ekki fullyrt um ástand og eiginleika þeirra hluta fasteigna sem ekki eru aðgengilegir og sjást ekki berum augum, t.d. lagnir, dren, skólp og þak.

Gjöld sem kaupandi þarf að greiða vegna kaupa:
1. Stimpilgjald af kaupsamningi sem er hlutfall af fasteignamati. Stimpilgjald er 0,8% fyrir einstaklinga (0,4% við fyrstu kaup) og 1,6% fyrir lögaðila.
2. Þinglýsingargjald af kaupsamningi, veðskuldabréfum, veðleyfum o.fl. Þinglýsingargjald er kr. 3.800,- fyrir hvert skjal.
3. Lántökugjald lánastofnunar - er skv. gjaldskrá viðkomandi lánastofnunar.
4. Umsýslugjald til fasteignasölu skv. kauptilboði.
5. Þegar um nýbyggingu er að ræða greiðir kaupandi skipulagsgjald, 0,3% af endanlegu brunabótamáti, þegar það er lagt á af viðkomandi sveitarfélagi.

img
Svanþór Einarsson
Lögg.fasteignasali innan félags fasteignasala
Fasteignasala Mosfellsbæjar
Þverholti 2, 270 Mosfellsbæ
Fasteignasala Mosfellsbæjar

Fasteignasala Mosfellsbæjar

Þverholti 2, 270 Mosfellsbæ
phone
img

Svanþór Einarsson

Þverholti 2, 270 Mosfellsbæ
Ár
Fasteignamat
Kaupverð
Stærð
Fermetraverð
3. des. 2020
36.050.000 kr.
41.500.000 kr.
84.3 m²
492.289 kr.
13. feb. 2013
21.150.000 kr.
24.497.000 kr.
84.3 m²
290.593 kr.
9. des. 2011
17.700.000 kr.
23.900.000 kr.
84.3 m²
283.511 kr.
12. nóv. 2007
18.680.000 kr.
23.300.000 kr.
84.3 m²
276.394 kr.
Byggt á upplýsingum úr Þjóðskrá Íslands frá 2006-2026
Fasteignasala Mosfellsbæjar

Fasteignasala Mosfellsbæjar

Þverholti 2, 270 Mosfellsbæ
phone

Svanþór Einarsson

Þverholti 2, 270 Mosfellsbæ