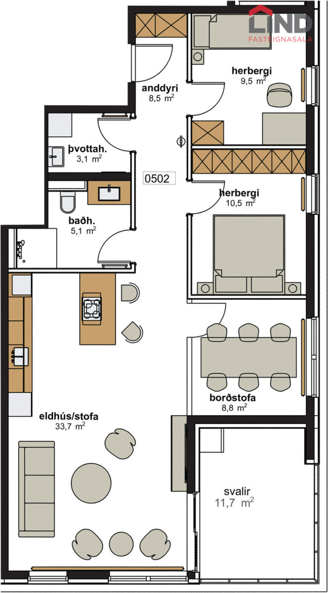
Hringhamar 17 502, 221 Hafnarfjörður