Löggiltir fasteignasalar innan Félags fasteignasala:
Jens Magnús Jakobsson
Sveinbjörn Rosen Guðlaugsson
Vista
svg

103

svg

94  Skoðendur

svg

Skráð  16. mar. 2026

raðhús

Austurmýri 14

800 Selfoss

69.900.000 kr.

635.455 þ.kr./m2
Fasteignanúmer

F2268235

Fasteignamat

61.500.000 kr.

Brunabótamat

52.100.000 kr.

Áhvílandi

0 kr.

Arion banki – Reikna lán
Upplýsingar
svg
Byggt 2003
svg
110 m²
svg
3 herb.
svg
1 baðherb.
svg
2 svefnh.
svg
Þvottahús
svg
Sérinngangur

Lýsing


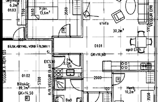
Eignaland og Sigurður Fannar kynna í einkasölu: Um er að ræða  80,4 fm. raðhúsaíbúð ásamt 22,2 fm. sambyggðum bílskúr, samtals 110,0 fm.  Húsið er byggt úr timbri árið 2003 og er klætt að utan með hvítri sléttri klæðningu en bárujárn er á þaki. Gluggar eru úr furu. 

Nánari lýsing:
Eignin telur tvö svefnherbergi, stofu, hol, eldhús, baðherbergi og þvottahús.
Parket er á gólfum í herbergjum,stofu , eldhúsi og holi en flísar á baði, forstofu og geymslu.
Innréttingar og hurðir eru úr eik.
Í eldhúsinu er ágæt innrétting. Á baðinu er rúmgóð innrétting og sturtuklefi.
Fataskápar eru í herbergjunum og forstofu.
Útgengt er á verönd á baklóð úr stofu.
Innangengt er úr þvottahúsi í bílskúrinn.
Í enda bílskúrs er teiknuð geymsla og þaðan er útgengt í bakgarð.

Allar nánari upplýsingar veitir Sigurður Fannar í síma 897-5930 eða [email protected] 



Um skoðunar- og aðgæsluskyldu:
Í lögum um fasteignakaup nr. 40/2002 er kveðið á um ríka skoðunarskyldu kaupenda á fasteignum. Eignaland fasteignasla bendir væntanlegum kaupendum á að kynna sér vel ástand fasteigna við skoðun og fyrir tilboðsgerð og ef þurfa þykir að leita til sérfræðinga um nánari ástandsskoðun.

Forsendur söluyfirlits:
Söluyfirlit er samið af fasteignasala í samræmi við ákvæði laga nr. 70/2015. Þær upplýsingar sem fram koma í söluyfirliti þessu eru sóttar í opinberar skrár, til seljanda sjálfs og eftir atvikum til húsfélags. Seljandi veitir upplýsingar um eign í samræmi við upplýsingaskyldu laga um fasteignakaup nr. 40/2002. Fasteignasali sannreynir að þær upplýsingar séu réttar með sjónskoðun á eigninni.
Fasteignasali getur ekki fullyrt um ástand og eiginleika þeirra hluta fasteigna sem ekki eru aðgengilegir og sjást ekki berum augum, t.d. lagnir, dren, skólp og þak.

Gjöld sem kaupandi þarf að standa straum af vegna kaupanna:
1.Stimpilgjald af kaupsamningi sem er hlutfall af fasteignamati. Stimpilgjald er 0,8% fyrir einstaklinga (0,4% við fyrstu kaup) og 1,6% fyrir lögaðila.
2. Þinglýsingargjald af kaupsamningi, veðskuldabréfum, veðleyfum o.fl. Þinglýsingargjald er kr. 2.700,- fyrir hvert skjal.
3. Lántökugjald lánastofnunar. Um lántökugjald vísast í gjaldskrá viðkomandi lánveitanda.
4. Umsýslugjald kaupanda samkvæmt gjaldskrá.
5. Þegar um nýbyggingu er að ræða greiðir kaupandi skipulagsgjald, 0,3% af endanlegu brunabótamáti, þegar það er lagt á.

Eignaland

Eignaland

Hlíðasmári 2, 201 Kópavogi - Eyrarvegur 37, 800 Selfossi
phone
Eignaland

Eignaland

Hlíðasmári 2, 201 Kópavogi - Eyrarvegur 37, 800 Selfossi
phone