Upplýsingar
Verðsaga
Byggt 1974
85,1 m²
4 herb.
1 baðherb.
3 svefnh.
Þvottahús
Sameiginl. inngangur
Lýsing
MIKIÐ ENDURNÝJUÐ 4RA HERBERGJA 85,1 FM ÍBÚÐ Í FURUGRUND KÓPAVOGI MEÐ ÚTLEIGUHERBERGI Í KJALLARA.
Valhöll fasteignasala Síðumúla 27, Sími: 588-4477 og Snorri Snorrason. Lg.fs. Sími: 895-2115 - [email protected], kynna til sölu, 4 herbergja 85,1 fm mikið endurnýjaða og endurskipulagða íbúð í hjarta Kópavogs.
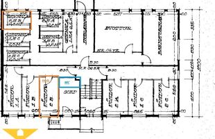
Eignin hefur verið breytt frá upphaflegum teikningum og er þess virði að skoða. Í íbúðinni eru nú 2 mjög rúmgóð herbergi, eldhús opið við stofu og í kjallara er 9,7 m² herbergi, sem er með sameiginlegum aðgangi að salerni og hefur verið nýtt til útleigu.
Eignaskipan:
Forstofa og gangur: Parket á gólfi
Stofa: Mjög rúmgóð með parketi á gólfi og útgengt á stórar suður svalir.
Eldhús: Eldhús er opið við stofu og var endurnýjað í nóvember 2018, með nýrri innréttingu, vaski, eldavél, tengi fyrir uppþvottavél, og parket á gólfi. Uppþvottavél, ísskápur og vínkælir fylgir með en án ábyrgðar um ástand.
Svefnherbergi I: Hjónaherbergi, parket á gólfi
Svefnherbergi II: Herbergi, parket á gólfi og fataskápur
Svefnherbergi III: Herbergi í kjallara, parket á gólfi, aðgengi að sameiginlegu baði í kjallara.
Baðherbergi: Endurnýjað árið 2017, flísalagt í hólf og gólf, með baðkari og sturtu, vaskaskáp og salerni. Rými fyrir þvottavél og þurrkara.
Sameign:
Sérgeymsla í kjallara, sameiginlegt þvottahús, og hjóla/vagnageymsla.
Lýsing á umhverfi:
Íbúðin er staðsett í vinsælu og fjölskylduvænu hverfi, þar sem stutt er í skóla, leikskóla, íþróttir og aðra helstu þjónustu.
Skv eignaskiptasamningi fyrir Furugrund 46 er íbúðin 17,15% af húsinu nr 46 en hvert húsnúmer í húsinu Furugrund 46 til 54 er með sjálfstætt húsfélag.
Lóðar- og bílastæðisfélag Furugrund 40 -54 er starfandi og er þar fjögra manna stjórn. Greitt er kr. 1.000 á mánuði fyrir hverja íbúð á mánuði fyrir viðhald og snjómokstur.
Um skoðunar- og aðgæsluskyldu:
Í lögum um fasteignakaup nr. 40/2002 er kveðið á um ríka skoðunarskyldu kaupenda á fasteignum. Valhöll fasteignasala bendir væntanlegum kaupendum á að kynna sér vel ástand fasteigna við skoðun og fyrir tilboðsgerð og ef þurfa þykir að leita til sérfræðinga um nánari ástandsskoðun. Forsendur söluyfirlits: Söluyfirlit er samið af fasteignasala í samræmi við ákvæði laga nr. 70/2015. Þær upplýsingar sem fram koma í söluyfirliti þessu eru sóttar í opinberar skrár, til seljanda sjálfs og eftir atvikum til húsfélags. Seljandi veitir upplýsingar um eign í samræmi við upplýsingaskyldu laga um fasteignakaup nr. 40/2002, og ábyrgist að þær séu réttar. Fasteignasali sannreynir að þær upplýsingar séu réttar með sjónskoðun á eigninni. Fasteignasali getur ekki fullyrt um ástand og eiginleika þeirra hluta fasteigna sem ekki eru aðgengilegir og sjást ekki berum augum, t.d. lagnir, dren, skólp og þak. Það sama á við um staðhæfingar seljanda eignar um viðhald og einstaka framkvæmdir.
Gjöld sem kaupandi þarf að standa straum af vegna kaupanna:
Stimpilgjald af kaupsamningi sem er hlutfall af fasteignamati. Stimpilgjald er 0,8% fyrir einstaklinga (0,4% við fyrstu kaup) og 1,6% fyrir lögaðila.
Þinglýsingargjald af kaupsamningi, veðskuldabréfum, veðleyfum o.fl. Þinglýsingargjald er kr. 3.800,- fyrir hvert skjal.
Lántökugjald lánastofnunar. Um lántökugjald vísast í gjaldskrá viðkomandi lánveitanda.
Umsýsluþóknun fasteignasölu skv. gjaldskrá.
Ef um nýbyggingu er að ræða greiðir kaupandi skipulagsgjald, 0,3% af brunabótamáti, þegar það er lagt á.
Valhöll fasteignasala Síðumúla 27, Sími: 588-4477 og Snorri Snorrason. Lg.fs. Sími: 895-2115 - [email protected], kynna til sölu, 4 herbergja 85,1 fm mikið endurnýjaða og endurskipulagða íbúð í hjarta Kópavogs.
Eignin hefur verið breytt frá upphaflegum teikningum og er þess virði að skoða. Í íbúðinni eru nú 2 mjög rúmgóð herbergi, eldhús opið við stofu og í kjallara er 9,7 m² herbergi, sem er með sameiginlegum aðgangi að salerni og hefur verið nýtt til útleigu.
Eignaskipan:
Forstofa og gangur: Parket á gólfi
Stofa: Mjög rúmgóð með parketi á gólfi og útgengt á stórar suður svalir.
Eldhús: Eldhús er opið við stofu og var endurnýjað í nóvember 2018, með nýrri innréttingu, vaski, eldavél, tengi fyrir uppþvottavél, og parket á gólfi. Uppþvottavél, ísskápur og vínkælir fylgir með en án ábyrgðar um ástand.
Svefnherbergi I: Hjónaherbergi, parket á gólfi
Svefnherbergi II: Herbergi, parket á gólfi og fataskápur
Svefnherbergi III: Herbergi í kjallara, parket á gólfi, aðgengi að sameiginlegu baði í kjallara.
Baðherbergi: Endurnýjað árið 2017, flísalagt í hólf og gólf, með baðkari og sturtu, vaskaskáp og salerni. Rými fyrir þvottavél og þurrkara.
Sameign:
Sérgeymsla í kjallara, sameiginlegt þvottahús, og hjóla/vagnageymsla.
Lýsing á umhverfi:
Íbúðin er staðsett í vinsælu og fjölskylduvænu hverfi, þar sem stutt er í skóla, leikskóla, íþróttir og aðra helstu þjónustu.
Skv eignaskiptasamningi fyrir Furugrund 46 er íbúðin 17,15% af húsinu nr 46 en hvert húsnúmer í húsinu Furugrund 46 til 54 er með sjálfstætt húsfélag.
Lóðar- og bílastæðisfélag Furugrund 40 -54 er starfandi og er þar fjögra manna stjórn. Greitt er kr. 1.000 á mánuði fyrir hverja íbúð á mánuði fyrir viðhald og snjómokstur.
Um skoðunar- og aðgæsluskyldu:
Í lögum um fasteignakaup nr. 40/2002 er kveðið á um ríka skoðunarskyldu kaupenda á fasteignum. Valhöll fasteignasala bendir væntanlegum kaupendum á að kynna sér vel ástand fasteigna við skoðun og fyrir tilboðsgerð og ef þurfa þykir að leita til sérfræðinga um nánari ástandsskoðun. Forsendur söluyfirlits: Söluyfirlit er samið af fasteignasala í samræmi við ákvæði laga nr. 70/2015. Þær upplýsingar sem fram koma í söluyfirliti þessu eru sóttar í opinberar skrár, til seljanda sjálfs og eftir atvikum til húsfélags. Seljandi veitir upplýsingar um eign í samræmi við upplýsingaskyldu laga um fasteignakaup nr. 40/2002, og ábyrgist að þær séu réttar. Fasteignasali sannreynir að þær upplýsingar séu réttar með sjónskoðun á eigninni. Fasteignasali getur ekki fullyrt um ástand og eiginleika þeirra hluta fasteigna sem ekki eru aðgengilegir og sjást ekki berum augum, t.d. lagnir, dren, skólp og þak. Það sama á við um staðhæfingar seljanda eignar um viðhald og einstaka framkvæmdir.
Gjöld sem kaupandi þarf að standa straum af vegna kaupanna:
Stimpilgjald af kaupsamningi sem er hlutfall af fasteignamati. Stimpilgjald er 0,8% fyrir einstaklinga (0,4% við fyrstu kaup) og 1,6% fyrir lögaðila.
Þinglýsingargjald af kaupsamningi, veðskuldabréfum, veðleyfum o.fl. Þinglýsingargjald er kr. 3.800,- fyrir hvert skjal.
Lántökugjald lánastofnunar. Um lántökugjald vísast í gjaldskrá viðkomandi lánveitanda.
Umsýsluþóknun fasteignasölu skv. gjaldskrá.
Ef um nýbyggingu er að ræða greiðir kaupandi skipulagsgjald, 0,3% af brunabótamáti, þegar það er lagt á.
Ár
Fasteignamat
Kaupverð
Stærð
Fermetraverð
6. feb. 2019
34.350.000 kr.
39.000.000 kr.
85.1 m²
458.284 kr.
29. jún. 2018
31.250.000 kr.
36.000.000 kr.
85.1 m²
423.032 kr.
Byggt á upplýsingum úr Þjóðskrá Íslands frá 2006-2026