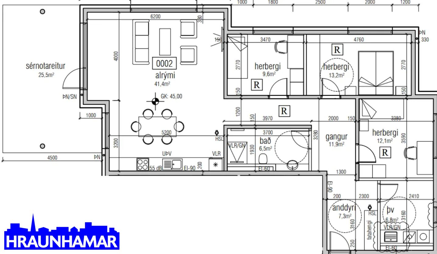
Lautargata, 210 Garðabær