Löggiltir fasteignasalar innan Félags fasteignasala:
Ástþór Reynir Guðmundsson
Vigdís R. S. Helgadóttir
Guðbjörg Helga Jóhannesdóttir
Gylfi Jens Gylfason
Sigrún Matthea Sigvaldadóttir
Sveinn Gíslason
Páll Guðmundsson
Þórarinn Arnar Sævarsson
Berglind Hólm Birgisdóttir
Þorsteinn Gíslason
Guðrún Lilja Tryggvadóttir
Brynjar Ingólfsson
Guðný Þorsteinsdóttir
Bjarni Blöndal
Þorsteinn Ólafs
Þórdís Björk Davíðsdóttir
Jóhann Kristinn Jóhannesson
Bjarný Björg Arnórsdóttir
Salvör Þóra Davíðsdóttir
Magga Sigríður Gísladóttir
Upplýsingar
198,9 m²
0 herb.
Lýsing
RE/MAX, Bjarný Björg Arnórsdóttir Lgf & Sveinn Gíslason Lgf kynna:
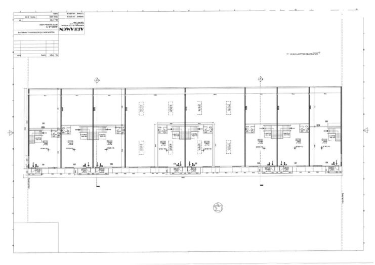
Vandað og fullbúið atvinnuhúsnæði á góðum stað í Hafnafirði. Húsið er steypt og er klætt samlokueiningum á útveggjum og þaki. Húsið skiptist í 10 séreiningabil og eitt sameiginlegt inntaksrými. Bilin eru skráð sem geymsluhús með möguleika á að breyta í atvinnuhúsnæði.
Samkvæmt deiluskipulagi er gert ráð fyrir grófum iðnaði á svæðinu.
Nánari upplýsingar gefur :
Bjarný Björg Arnórsdóttir löggiltur fasteignasali í síma 694-2526 / [email protected]
Sveinn Gíslason lögmaður/löggiltur fasteignasali sími 859-5559 / [email protected]
Bilin eru sértaklega breið með mikilli lofthæð og hönnuð með það í huga að stórar vinnuvélar komist inn. Hver eining hefur skilgreint séreignasvæði auk sameignar á lóð skv. byggingalýsingu í samþykktum teikningum. Bilin eru með mikilli lofthæð, 7,5m í mæni, 18,5 m djúpt og 7,150m breitt (stærri bilin) 9m djúpt og 7,150m breitt (minni bilin). Innkeyrsluhurðar eru 5x5 m á hæð og 4x4m með gönguhurð að framan.
Nánari lýsing:
- Bilið er 198,9 fm. Grunnflötur er 136,0 fm og milliloft 62,9 fm.
- Húsið er uppsteypt klætt með samlokueiningum frá Límtré Vírnet.
- Þak er límtrésþak klætt samlokueiningum frá Límtré/Vírnet.
- Gluggar og gönguhurðir eru timbur/álgluggar frá Gluggatækni. Gluggar eru glerjaðir með tvöföldu verksmiðjugleri.(K-gler)
- Aksturshurðir er samlokuhurðir frá Límtré/Vírnet. Stærð innkeyrsluhurða er 5x5 m og 4x4 m á hæð.
- Svalir eru steyptar með slípuðu yfirborði. Svalahandrið úr galvanhúðuðu stáli verður uppkomið og frágengið.
- Olíugildra verður fullfrágengin og tengd fráveitukerfi bæjarins.
- Lóð verður skilað jafnaðri og malbikaðri, með kantsteini og gróðri. Niðurföll í lóð verða fullfrágengin og tengd fráveitu bæjarins. Athygli er vakin á að lóðin er að hluta til í séreign hvers eignarhluta og að hluta til sameign allra, s.b.r. eignaskiptasamning.
- Rafmagntafla í séreign verður komin en raflagnir að öðru ekki. Þó verður raflögn komin í salerni ásamt ljósakúpli. Lágmarks vinnulýsing í aðalrými. Rafmagnstafla skilast fullfrágengin skv. Teikningu og tenglar við töflu fyrir 32A,16A og tveir 13A.
- Innihurðir eru yfirfeldar eikarhurðir frá Birgisson (eða samb.), uppkomnar og fullfrágengnar.
- Stigi milli hæða er léttur stigi úr límtré og stáli.
- Samkvæmt deiluskipulagi þá má vera með iðnað í flokki B3 í Álhellu 11.
- Sér gámastæði fylgir bilinu.
Sjá nánar skilalýsingu byggingaraðila.
Skipulagsgjald:
Kaupandi greiðir skipulagsgjald þegar það verður lagt á. Skipulagsgjaldið er 0,3% af væntanlegu brunabótamati. ATH. VSK – kvöð er á húsnæðinu.
Gjöld sem kaupandi þarf að standa straum af vegna kaupanna:
1. Stimpilgjald af kaupsamningi - 0,8% af heildarfasteignamati hjá einstaklingum. (Sé um fyrstu kaup að ræða er stimpilgjald af kaupsamningi 0,4%)
2. Stimpilgjald af kaupsamningi - 1,6% af heildarfasteignamati hjá lögaðilum.
3. Þinglýsingargjald af kaupsamningi, veðskuldabréfi, veðleyfi o.fl. 2.700 kr. af hverju skjali.
4. Lántökugjald lánastofnunar - sjá heimasíður lánastofnanna.
5. Umsýslugjald til fasteignasölu 69.900. kr. m.vsk.
Í lögum um fasteignakaup nr. 40/2002 er kveðið á um ríka skoðunarskyldu kaupenda á fasteignum. Vill RE/MAX því skora á væntanlega kaupendur að kynna sér vel ástand fasteigna fyrir kauptilboðsgerð og leita til þar til bærra sérfræðinga um nánari skoðun.
Vandað og fullbúið atvinnuhúsnæði á góðum stað í Hafnafirði. Húsið er steypt og er klætt samlokueiningum á útveggjum og þaki. Húsið skiptist í 10 séreiningabil og eitt sameiginlegt inntaksrými. Bilin eru skráð sem geymsluhús með möguleika á að breyta í atvinnuhúsnæði.
Samkvæmt deiluskipulagi er gert ráð fyrir grófum iðnaði á svæðinu.
Nánari upplýsingar gefur :
Bjarný Björg Arnórsdóttir löggiltur fasteignasali í síma 694-2526 / [email protected]
Sveinn Gíslason lögmaður/löggiltur fasteignasali sími 859-5559 / [email protected]
Bilin eru sértaklega breið með mikilli lofthæð og hönnuð með það í huga að stórar vinnuvélar komist inn. Hver eining hefur skilgreint séreignasvæði auk sameignar á lóð skv. byggingalýsingu í samþykktum teikningum. Bilin eru með mikilli lofthæð, 7,5m í mæni, 18,5 m djúpt og 7,150m breitt (stærri bilin) 9m djúpt og 7,150m breitt (minni bilin). Innkeyrsluhurðar eru 5x5 m á hæð og 4x4m með gönguhurð að framan.
Nánari lýsing:
- Bilið er 198,9 fm. Grunnflötur er 136,0 fm og milliloft 62,9 fm.
- Húsið er uppsteypt klætt með samlokueiningum frá Límtré Vírnet.
- Þak er límtrésþak klætt samlokueiningum frá Límtré/Vírnet.
- Gluggar og gönguhurðir eru timbur/álgluggar frá Gluggatækni. Gluggar eru glerjaðir með tvöföldu verksmiðjugleri.(K-gler)
- Aksturshurðir er samlokuhurðir frá Límtré/Vírnet. Stærð innkeyrsluhurða er 5x5 m og 4x4 m á hæð.
- Svalir eru steyptar með slípuðu yfirborði. Svalahandrið úr galvanhúðuðu stáli verður uppkomið og frágengið.
- Olíugildra verður fullfrágengin og tengd fráveitukerfi bæjarins.
- Lóð verður skilað jafnaðri og malbikaðri, með kantsteini og gróðri. Niðurföll í lóð verða fullfrágengin og tengd fráveitu bæjarins. Athygli er vakin á að lóðin er að hluta til í séreign hvers eignarhluta og að hluta til sameign allra, s.b.r. eignaskiptasamning.
- Rafmagntafla í séreign verður komin en raflagnir að öðru ekki. Þó verður raflögn komin í salerni ásamt ljósakúpli. Lágmarks vinnulýsing í aðalrými. Rafmagnstafla skilast fullfrágengin skv. Teikningu og tenglar við töflu fyrir 32A,16A og tveir 13A.
- Innihurðir eru yfirfeldar eikarhurðir frá Birgisson (eða samb.), uppkomnar og fullfrágengnar.
- Stigi milli hæða er léttur stigi úr límtré og stáli.
- Samkvæmt deiluskipulagi þá má vera með iðnað í flokki B3 í Álhellu 11.
- Sér gámastæði fylgir bilinu.
Sjá nánar skilalýsingu byggingaraðila.
Skipulagsgjald:
Kaupandi greiðir skipulagsgjald þegar það verður lagt á. Skipulagsgjaldið er 0,3% af væntanlegu brunabótamati. ATH. VSK – kvöð er á húsnæðinu.
Gjöld sem kaupandi þarf að standa straum af vegna kaupanna:
1. Stimpilgjald af kaupsamningi - 0,8% af heildarfasteignamati hjá einstaklingum. (Sé um fyrstu kaup að ræða er stimpilgjald af kaupsamningi 0,4%)
2. Stimpilgjald af kaupsamningi - 1,6% af heildarfasteignamati hjá lögaðilum.
3. Þinglýsingargjald af kaupsamningi, veðskuldabréfi, veðleyfi o.fl. 2.700 kr. af hverju skjali.
4. Lántökugjald lánastofnunar - sjá heimasíður lánastofnanna.
5. Umsýslugjald til fasteignasölu 69.900. kr. m.vsk.
Í lögum um fasteignakaup nr. 40/2002 er kveðið á um ríka skoðunarskyldu kaupenda á fasteignum. Vill RE/MAX því skora á væntanlega kaupendur að kynna sér vel ástand fasteigna fyrir kauptilboðsgerð og leita til þar til bærra sérfræðinga um nánari skoðun.