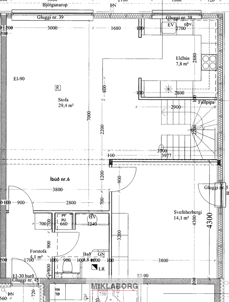
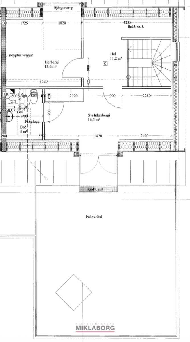
Austurvegur, 800 Selfoss