Upplýsingar
Verðsaga
Byggt 2002
111,5 m²
5 herb.
1 baðherb.
3 svefnh.
Sameiginl. inngangur
Bílastæði
Lyfta
Lýsing
*LAUS VIÐ KAUPSAMNING*
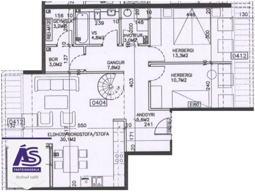
111,5 fm 4ra herbergja íbúð á tveimur efstu hæðum með stæði í bílakjallara við Naustabryggju 13, 110 Reykjavík.
Eignin skiptist í 83,7 fm neðri hæð og 27,8 fm efri hæð, samtals 111,5 fm skv. HMS.
Nánari upplýsingar:
Neðri hæð: Anddyri með skápum. Stofa og eldhús í rúmgóðu alrými með útg. á vestur svalir. Eldhús með ofni, helluborði m/viftu yfir, góðu skápa plássi og stæði fyrir uppþvottavél. Tvö svefnherbergi með skápum. Baðherbergi með walk-in sturtu, handklæðaofni, vegghengdu salerni og stæði fyrir þvottavél og þurrkara. Rúmgóð geymsla.
Efri hæð: Skiptist í hol og vinnurými, auðvelt að breyta í þriðja svefnherbergið.
Sérstæði í bílakjallara.
Rúmgóð geymsla innan íbúðar.
Sameiginleg hjóla- og vagnageymsla á jarðhæð.
Allar nánari upplýsingar veitir Arnór Daði Eiríksson, löggiltur fasteignasali í s. 777-0939 / [email protected]
Ás fasteignasala er rótgróið fyrirtæki sem hefur veitt alla almenna þjónustu í fasteignaviðskiptum frá árinu 1988.
www.facebook.com/asfasteignasala
www.instagram.com/as_fasteignasala
www.as.is
111,5 fm 4ra herbergja íbúð á tveimur efstu hæðum með stæði í bílakjallara við Naustabryggju 13, 110 Reykjavík.
Eignin skiptist í 83,7 fm neðri hæð og 27,8 fm efri hæð, samtals 111,5 fm skv. HMS.
Nánari upplýsingar:
Neðri hæð: Anddyri með skápum. Stofa og eldhús í rúmgóðu alrými með útg. á vestur svalir. Eldhús með ofni, helluborði m/viftu yfir, góðu skápa plássi og stæði fyrir uppþvottavél. Tvö svefnherbergi með skápum. Baðherbergi með walk-in sturtu, handklæðaofni, vegghengdu salerni og stæði fyrir þvottavél og þurrkara. Rúmgóð geymsla.
Efri hæð: Skiptist í hol og vinnurými, auðvelt að breyta í þriðja svefnherbergið.
Sérstæði í bílakjallara.
Rúmgóð geymsla innan íbúðar.
Sameiginleg hjóla- og vagnageymsla á jarðhæð.
Allar nánari upplýsingar veitir Arnór Daði Eiríksson, löggiltur fasteignasali í s. 777-0939 / [email protected]
Ás fasteignasala er rótgróið fyrirtæki sem hefur veitt alla almenna þjónustu í fasteignaviðskiptum frá árinu 1988.
www.facebook.com/asfasteignasala
www.instagram.com/as_fasteignasala
www.as.is
Ár
Fasteignamat
Kaupverð
Stærð
Fermetraverð
1. júl. 2022
52.600.000 kr.
70.500.000 kr.
111.5 m²
632.287 kr.
3. sep. 2021
45.550.000 kr.
55.000.000 kr.
111.5 m²
493.274 kr.
14. nóv. 2016
31.450.000 kr.
36.000.000 kr.
111.5 m²
322.870 kr.
Byggt á upplýsingum úr Þjóðskrá Íslands frá 2006-2026