Upplýsingar
Byggt 2025
96,4 m²
3 herb.
1 baðherb.
2 svefnh.
Útsýni
Sérinngangur
Lýsing
Fasteignasalan Hvammur 466 1600
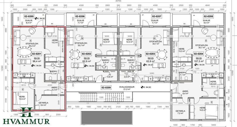
Langimói 7 íbúð 201 - Nýbygging - Vönduð 3ja herbergja íbúð með sér inngangi á efri hæð, endaíbúð í glæsilegu fjölbýli í Móahverfi - stærð 96,4 m²
Eignin skiptist í forstofu, eldhús og stofu í opnu rými, tvö svefnherbergi, baðherbergi með þvottaaðstöðu og geymslu.
* Eignin er timburhús, krosslímdar timbur einingar, clt og klætt að utan með viðhaldsfrírri álklæðningu.
* Vandaðar innréttingar frá Tak innréttingum fyrir utan baðherbergi.
* Ísskápur með frysti og uppþvottavél fylgja með við sölu.
* Hvítar innihurðar.
* Loftskiptikerfi.
* Hljóðdúkur í loftum.
* Áætlaður afhendingartími eignar er júlí 2026
Forstofa er með flísum á gólfi 60*60 og fataskáp.
Eldhús, Vönduð innrétting og eldunareyja. Ísskápur með frysti og uppþvottavél fylgja með við sölu.
Stofa og eldhús eru í opnu rými. Þar eru gluggar til tveggja átta og harðparket á gólfi. Gengið er út úr stofunni til vestur á steyptar svalir.
Svefnherbergin eru tvö, bæði með harðparketi á gólfi og fataskápum. Stærð herbergja er skv. teikningum 13,3 og 13,5 m².
Baðherbergi er flísalagt bæði gólf og veggir með gráum flísum. Vönduð hvít innrétting og speglaskápur, upphengt wc og sturta með glerhurðum. Stæði er í innréttingunni fyrir þvottavél og þurrkara í vinnuhæð.
Geymsla er með harðparketi á gólfi og fataskáp. Stærð geymslu er skv. teikningum 8,4 m². Möguleiki er að nýta geymsluna sem þriðja svefnherbergið.
Annað
- Sameiginlegt inntaksrými og vagnageymsla er fyrir miðju í húsinu á neðri hæðinni.
- Sameiginlegt hjólaskýli er fyrir framan húsið.
- Nánari skilalýsingu má nálgast hjá fasteignasölu.
- Byggingarverktaki: Valsmíði ehf.
Eignin er í einkasölu
Kaupandi greiðir skipulagsgjald eignar, 0,3% af brunabótamati eignar þegar það verður lagt á.
Upplýsingar í skilalýsingu geta breyst á byggingartíma. Leitast verður við að halda sambærilegum gæðum byggingarhluta og íhluta, breytist þeir á byggingartíma.
Allt efni er birt með fyrirvara um hugsanlegar villur.
Um skoðunar- og aðgæsluskyldu:
Í lögum um fasteignakaup nr. 40/2002 er kveðið á um ríka skoðunarskyldu kaupenda á fasteignum. Fasteignasalan Hvammur skorar því á væntanlega kaupendur að kynna sér vel ástand fasteigna fyrir kauptilboðsgerð og leita til þar til bærra sérfræðinga um nánari skoðun ef með þarf.
Forsendur söluyfirlits:
Söluyfirlit er samið af fasteignasala í samræmi við ákvæði laga nr. 70/2015. Þær upplýsingar sem fram koma í söluyfirliti þessu eru sóttar í opinberar skrár, til seljanda sjálfs og eftir atvikum til húsfélags. Seljandi veitir upplýsingar um eign í samræmi við upplýsingaskyldu laga um fasteignakaup nr. 40/2002. Fasteignasali sannreynir að þær upplýsingar séu réttar með sjónskoðun á eigninni. Fasteignasali getur ekki fullyrt um ástand og eiginleika þeirra hluta fasteigna sem ekki eru aðgengilegir og sjást ekki berum augum, t.d. lagnir, dren, skólp og þak.
Langimói 7 íbúð 201 - Nýbygging - Vönduð 3ja herbergja íbúð með sér inngangi á efri hæð, endaíbúð í glæsilegu fjölbýli í Móahverfi - stærð 96,4 m²
Eignin skiptist í forstofu, eldhús og stofu í opnu rými, tvö svefnherbergi, baðherbergi með þvottaaðstöðu og geymslu.
* Eignin er timburhús, krosslímdar timbur einingar, clt og klætt að utan með viðhaldsfrírri álklæðningu.
* Vandaðar innréttingar frá Tak innréttingum fyrir utan baðherbergi.
* Ísskápur með frysti og uppþvottavél fylgja með við sölu.
* Hvítar innihurðar.
* Loftskiptikerfi.
* Hljóðdúkur í loftum.
* Áætlaður afhendingartími eignar er júlí 2026
Forstofa er með flísum á gólfi 60*60 og fataskáp.
Eldhús, Vönduð innrétting og eldunareyja. Ísskápur með frysti og uppþvottavél fylgja með við sölu.
Stofa og eldhús eru í opnu rými. Þar eru gluggar til tveggja átta og harðparket á gólfi. Gengið er út úr stofunni til vestur á steyptar svalir.
Svefnherbergin eru tvö, bæði með harðparketi á gólfi og fataskápum. Stærð herbergja er skv. teikningum 13,3 og 13,5 m².
Baðherbergi er flísalagt bæði gólf og veggir með gráum flísum. Vönduð hvít innrétting og speglaskápur, upphengt wc og sturta með glerhurðum. Stæði er í innréttingunni fyrir þvottavél og þurrkara í vinnuhæð.
Geymsla er með harðparketi á gólfi og fataskáp. Stærð geymslu er skv. teikningum 8,4 m². Möguleiki er að nýta geymsluna sem þriðja svefnherbergið.
Annað
- Sameiginlegt inntaksrými og vagnageymsla er fyrir miðju í húsinu á neðri hæðinni.
- Sameiginlegt hjólaskýli er fyrir framan húsið.
- Nánari skilalýsingu má nálgast hjá fasteignasölu.
- Byggingarverktaki: Valsmíði ehf.
Eignin er í einkasölu
Kaupandi greiðir skipulagsgjald eignar, 0,3% af brunabótamati eignar þegar það verður lagt á.
Upplýsingar í skilalýsingu geta breyst á byggingartíma. Leitast verður við að halda sambærilegum gæðum byggingarhluta og íhluta, breytist þeir á byggingartíma.
Allt efni er birt með fyrirvara um hugsanlegar villur.
Um skoðunar- og aðgæsluskyldu:
Í lögum um fasteignakaup nr. 40/2002 er kveðið á um ríka skoðunarskyldu kaupenda á fasteignum. Fasteignasalan Hvammur skorar því á væntanlega kaupendur að kynna sér vel ástand fasteigna fyrir kauptilboðsgerð og leita til þar til bærra sérfræðinga um nánari skoðun ef með þarf.
Forsendur söluyfirlits:
Söluyfirlit er samið af fasteignasala í samræmi við ákvæði laga nr. 70/2015. Þær upplýsingar sem fram koma í söluyfirliti þessu eru sóttar í opinberar skrár, til seljanda sjálfs og eftir atvikum til húsfélags. Seljandi veitir upplýsingar um eign í samræmi við upplýsingaskyldu laga um fasteignakaup nr. 40/2002. Fasteignasali sannreynir að þær upplýsingar séu réttar með sjónskoðun á eigninni. Fasteignasali getur ekki fullyrt um ástand og eiginleika þeirra hluta fasteigna sem ekki eru aðgengilegir og sjást ekki berum augum, t.d. lagnir, dren, skólp og þak.