Upplýsingar
45,2 m²
0 herb.
1 baðherb.
Sérinngangur
Lýsing
Betri Stofan fasteignasala Borgartúni 30 kynnir nýtt í sölu: Steypt og vandað atvinnuhúsnæði á frábærum stað í Þorlákshöfn. Húsnæðið samanstendur af 33 stökum einingum að grunnfleti 41-69 fm auk möguleika á millilofti. Öll rými skilast fullbúin með snyrtingu, hægt að koma fyrir sturtu og eldhúskrók. Gólfhiti í rýmum. Lóð skilast frágengin með malbikuðu bílaplani. Afhending vor 2026.
Húsnæðið hentar vel undir fjölbreytta starfsemi og þjónustu og er kjörið fyrir verktaka, sem geymsluhúsnæði eða dótakassi svo eitthvað sé nefnt. Á efri hæðum eru mjög flott rými með ótal möguleika varðandi nýtingu, þar eru fínir gluggar og hægt að setja upp gott milliloft.
Allar nánari upplýsingar um eignina veita Atli S. Sigvarðsson löggiltur fasteignasali í síma 899-1178 / [email protected] og Dagrún Davíðsdóttir löggiltur fasteignasali í síma 866-1763 / [email protected]
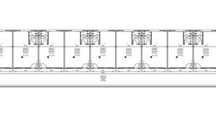
Nánari lýsing - um er að ræða Vesturbakka 10 bil 107.
Skráð stærð 45,2 fm að grunnfleti - möguleiki á stóru millilofti.
Rýmið skilast fullbúið.
Innkeyrsluhurð 3,5m á hæð.
Rýmið skilast með snyrtingu, gert er ráð fyrir sturtu og eldhúskrók.
Öll rými með sér rafmagnsinntaki.
Skipting eignarhluta:
11 iðnaðarbil (merkt 101-111) extra há innkeyrsluhurð (3,5m) með möguleika á stóru millilofti.
11 iðnaðarbil (merkt 112-122) stærri rými en með milli lofthæð, innkeyrsluhurð 2,5m.
11 skrifstofur (merkt 201-211) eru á 2 hæð með ótal möguleika, hægt að setja upp milliloft.
Úr byggingarlýsingu:
Húsið er úr forsteyptum samlokueiningum frá BM Vallá, á steyptum sökkli.
Þak er yleiningar og sperruþak á 2. hæð. Gluggar og hurðir eru Al/tré.
1. hæð verður máluð í hvítum lit, 2. hæð einangruð og klædd með álklæðningu.
Gólfhiti í öllum rýmum á efri 2. hæð, gólf frágengin með niðurföllum og góðum vatnshalla.
Þetta er vandað hús á góðum stað í Þorlákshöfn - áhugaverðar stærðir með mikla nýtingarmöguleika.
Allar nánari upplýsingar veita:
Atli S, Sigvarðsson löggiltur fasteignasali í síma 899-1178, tölvupóstur [email protected]
Dagrún Davíðsdóttir löggiltur fasteignasali, í síma 866 1763, tölvupóstur [email protected].
Húsnæðið hentar vel undir fjölbreytta starfsemi og þjónustu og er kjörið fyrir verktaka, sem geymsluhúsnæði eða dótakassi svo eitthvað sé nefnt. Á efri hæðum eru mjög flott rými með ótal möguleika varðandi nýtingu, þar eru fínir gluggar og hægt að setja upp gott milliloft.
Allar nánari upplýsingar um eignina veita Atli S. Sigvarðsson löggiltur fasteignasali í síma 899-1178 / [email protected] og Dagrún Davíðsdóttir löggiltur fasteignasali í síma 866-1763 / [email protected]
Nánari lýsing - um er að ræða Vesturbakka 10 bil 107.
Skráð stærð 45,2 fm að grunnfleti - möguleiki á stóru millilofti.
Rýmið skilast fullbúið.
Innkeyrsluhurð 3,5m á hæð.
Rýmið skilast með snyrtingu, gert er ráð fyrir sturtu og eldhúskrók.
Öll rými með sér rafmagnsinntaki.
Skipting eignarhluta:
11 iðnaðarbil (merkt 101-111) extra há innkeyrsluhurð (3,5m) með möguleika á stóru millilofti.
11 iðnaðarbil (merkt 112-122) stærri rými en með milli lofthæð, innkeyrsluhurð 2,5m.
11 skrifstofur (merkt 201-211) eru á 2 hæð með ótal möguleika, hægt að setja upp milliloft.
Úr byggingarlýsingu:
Húsið er úr forsteyptum samlokueiningum frá BM Vallá, á steyptum sökkli.
Þak er yleiningar og sperruþak á 2. hæð. Gluggar og hurðir eru Al/tré.
1. hæð verður máluð í hvítum lit, 2. hæð einangruð og klædd með álklæðningu.
Gólfhiti í öllum rýmum á efri 2. hæð, gólf frágengin með niðurföllum og góðum vatnshalla.
Þetta er vandað hús á góðum stað í Þorlákshöfn - áhugaverðar stærðir með mikla nýtingarmöguleika.
Allar nánari upplýsingar veita:
Atli S, Sigvarðsson löggiltur fasteignasali í síma 899-1178, tölvupóstur [email protected]
Dagrún Davíðsdóttir löggiltur fasteignasali, í síma 866 1763, tölvupóstur [email protected].
Gjöld sem kaupandi þarf að standa straum af ef að kaupum verður:
1. Stimpilgjald af fasteignamati fasteignar er 0.8%, en 0,4% fyrir fyrstu kaup og 1,6% fyrir lögaðila.
2. Þinglýsingargjald: kaupsamningi, skuldabréfi, veðleyfi, afsali o.s.frv. er kr. 3.800 af hverju skjali.
3. Lántökukostnaður samkvæmt verðskrá viðkomandi lánastofnunar.
4. Umsýslugjald til fasteignasölu skv. gjaldskrá.
Skoðunarskylda kaupanda:
Í lögum um fasteignakaup nr. 40/2002 er kveðið á um ríka skoðunarskyldu kaupenda á fasteignum. Betri Stofan fasteignasala bendir væntanlegum kaupendum á að kynna sér vel ástand fasteigna við skoðun og fyrir tilboðsgerð og ef þurfa þykir að leita til sérfræðinga um nánari ástandsskoðun.