Upplýsingar
Byggt 1925
123,3 m²
5 herb.
2 baðherb.
4 svefnh.
Sérinngangur
Lýsing
Fasteignasalan Hvammur – 466-1600 – [email protected]
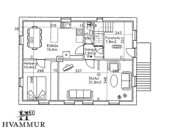
Strandgata 25B – efri hæð í tvíbýli miðsvæðis á Akureyri – stærð 123,3 m²
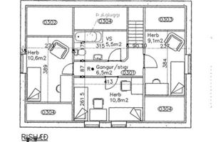
Eignin skiptist í forstofu, stofu, eldhús, baðherbergi, salerni, fjögur svefnherbergi, geymslu og sameiginlegt þvottahús.
Nánari lýsing:
Forstofan er með harðparketi á gólfi.
Stofan er rúmgóð með harðparketi á gólfi.
Eldhúsið er rúmgott með borðkrók, harðparketi á gólfi og L-innréttingu með stæði fyrir þvottavél.
Svefnherbergin eru fjögur, eitt herbergi er á neðri hæð og þar er harðparket á gólfi. Þrjú herbergi eru á efri hæð, eitt með harðparketi á gólfi en hin tvö með gólfþjölum.
Baðherbergið er með gólffjölum á gólfi, lítilli L-laga innréttingu, wc, baðkari með sturtutækjum og þakglugga.
Sér geymsla er á jarðhæð, 5,2m² að stærð.
Sameiginlegt þvottahús er á jarðhæð, 8,1m² að stærð.
Annað:
- Húsð þarfnast viðhalds að utan, einnig þarf að láta skoða glugga og meta þakið
- Byggingarár 1925
- Íbúðin er á efri hæð í tvíbýli
- Góð staðsetning miðsvæðis á Akureyri
- Geymsla er undir súð í risi í tveimur herbergjum
- Lóðin er eignarlóð
Nánari upplýsingar veitir:
Gunnar Aðalgeir Arason í síma 618-7325 eða á [email protected]
Um skoðunar- og aðgæsluskyldu:
Í lögum um fasteignakaup nr. 40/2002 er kveðið á um ríka skoðunarskyldu kaupenda á fasteignum. Fasteignasalan Hvammur skorar því á væntanlega kaupendur að kynna sér vel ástand fasteigna fyrir kauptilboðsgerð og leita til þar til bærra sérfræðinga um nánari skoðun ef með þarf.
Forsendur söluyfirlits:
Söluyfirlit er samið af fasteignasala í samræmi við ákvæði laga nr. 70/2015. Þær upplýsingar sem fram koma í söluyfirliti þessu eru sóttar í opinberar skrár, til seljanda sjálfs og eftir atvikum til húsfélags. Seljandi veitir upplýsingar um eign í samræmi við upplýsingaskyldu laga um fasteignakaup nr. 40/2002. Fasteignasali sannreynir að þær upplýsingar séu réttar með sjónskoðun á eigninni.
Fasteignasali getur ekki fullyrt um ástand og eiginleika þeirra hluta fasteigna sem ekki eru aðgengilegir og sjást ekki berum augum, t.d. lagnir, dren, skólp og þak.
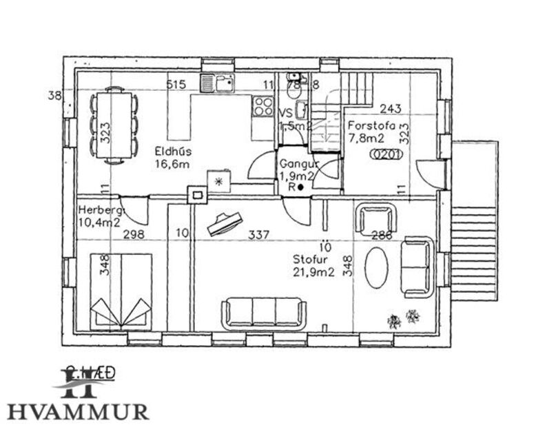
Strandgata 25B – efri hæð í tvíbýli miðsvæðis á Akureyri – stærð 123,3 m²
Eignin skiptist í forstofu, stofu, eldhús, baðherbergi, salerni, fjögur svefnherbergi, geymslu og sameiginlegt þvottahús.
Nánari lýsing:
Forstofan er með harðparketi á gólfi.
Stofan er rúmgóð með harðparketi á gólfi.
Eldhúsið er rúmgott með borðkrók, harðparketi á gólfi og L-innréttingu með stæði fyrir þvottavél.
Svefnherbergin eru fjögur, eitt herbergi er á neðri hæð og þar er harðparket á gólfi. Þrjú herbergi eru á efri hæð, eitt með harðparketi á gólfi en hin tvö með gólfþjölum.
Baðherbergið er með gólffjölum á gólfi, lítilli L-laga innréttingu, wc, baðkari með sturtutækjum og þakglugga.
Sér geymsla er á jarðhæð, 5,2m² að stærð.
Sameiginlegt þvottahús er á jarðhæð, 8,1m² að stærð.
Annað:
- Húsð þarfnast viðhalds að utan, einnig þarf að láta skoða glugga og meta þakið
- Byggingarár 1925
- Íbúðin er á efri hæð í tvíbýli
- Góð staðsetning miðsvæðis á Akureyri
- Geymsla er undir súð í risi í tveimur herbergjum
- Lóðin er eignarlóð
Nánari upplýsingar veitir:
Gunnar Aðalgeir Arason í síma 618-7325 eða á [email protected]
Um skoðunar- og aðgæsluskyldu:
Í lögum um fasteignakaup nr. 40/2002 er kveðið á um ríka skoðunarskyldu kaupenda á fasteignum. Fasteignasalan Hvammur skorar því á væntanlega kaupendur að kynna sér vel ástand fasteigna fyrir kauptilboðsgerð og leita til þar til bærra sérfræðinga um nánari skoðun ef með þarf.
Forsendur söluyfirlits:
Söluyfirlit er samið af fasteignasala í samræmi við ákvæði laga nr. 70/2015. Þær upplýsingar sem fram koma í söluyfirliti þessu eru sóttar í opinberar skrár, til seljanda sjálfs og eftir atvikum til húsfélags. Seljandi veitir upplýsingar um eign í samræmi við upplýsingaskyldu laga um fasteignakaup nr. 40/2002. Fasteignasali sannreynir að þær upplýsingar séu réttar með sjónskoðun á eigninni.
Fasteignasali getur ekki fullyrt um ástand og eiginleika þeirra hluta fasteigna sem ekki eru aðgengilegir og sjást ekki berum augum, t.d. lagnir, dren, skólp og þak.