Löggiltir fasteignasalar innan Félags fasteignasala:
Sigurður Maack Gunnarsson
Svanþór Einarsson
Theodór Emil Karlsson
Steingrímur Benediktsson
Upplýsingar
Verðsaga
svg
Byggt 1960
svg
253,1 m²
svg
6 herb.
svg
3 baðherb.
svg
5 svefnh.
svg
Þvottahús
svg
Bílskúr

Lýsing

** Hafðu samband og bókaðu skoðun - Svanþór Einarsson, löggiltur fasteignasali - [email protected] eða 698-8555 - Theodór Emil Karlsson, löggiltur fasteignasali - [email protected] eða 690-8040 - Steingrímur Benediktsson, löggiltur fasteignasali - [email protected] eða 862-9416 **

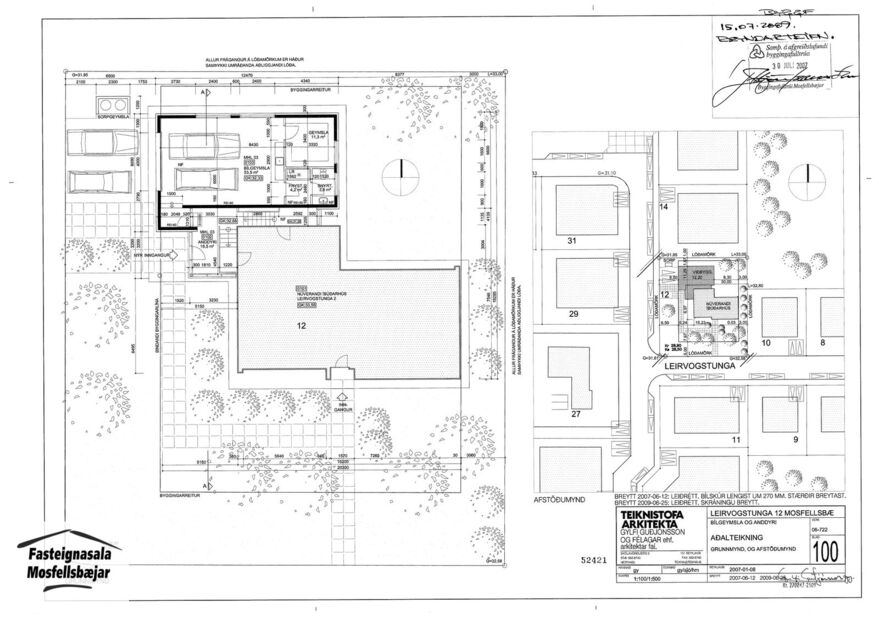
Fasteignasala Mosfellsbæjar kynnir: 253,1 m2 einbýlishús á einni hæð með tvöföldum bílskúr á stórri lóð í Leirvogstungu í Mosfellsbæ. Eignin er í skemmtilegu sérbýlishverfi þar sem mjög stutt er í fallega náttúru. Eignin er skráð 253,1 m2, þar af íbúðarrými 169,5 m2 og bílskúr 83,6 m2. Eignin skiptist í forstofu, baðherbergi með þvottaaðstöðu, 3 svefnherbergi, eldhús, stofu,  borðstofu og bílskúr. Inn af bílskúr svefnherbergi, gestasnyrting og eldhúsaðstaða sem var áður nýtt sem auka íbúð. Einnig er svefnherbergi með baðherbergi í kjallara. Eignin stendur á 1.014 m2 eignarlóð með timburverönd til suðurs og hellulagða verönd fyrir framan hús, fallegum garði og stórri baklóð. Bílaplan er hellulagt og með hitalögn. Bílskúrinn og forstofan voru byggð árið 2007 og því nýrri en restin af húsinu. 

Smelltu hér til að fá söluyfirlit sent strax.


Nánari lýsing: 
Forstofan tengir saman önnur rými hússins. Rýmið er sérlega bjart og flísalagt. Hægt er að ganga upp í aðalhæð, niður í herbergi neðri hæðar og inn í bílskúr. Öll rýmin eru lokanleg með hurð. Forstofan og bílskúrinn var byggt árið 2007.


Aðalhæð:
Forstofan er flísalögð
Forstofuherbergi með gluggum sem gæti t.d. verið notað sem skrifstofa eða svefnherbergi. Flísar á gólfi
Stofan er rúmgóð og björt með glugga á tvo vegu.
Borðstofan er rúmgóð í rými með eldhúsi.
Eldhús með fallegri innréttingu frá Kvik, innbyggðri uppþvottavél og ísskáp. Spanhelluborð og bakaraofn í vinnuhæð.
Út frá eldhúsi er gangur sem leiðir að svefnherbergjum og baðherbergi en einnig að hurð út í garð.
Svefnherbergi með glugga.
Hjónaherbergið er rúmgott og með fataskápum.
Baðherbergið er með flísum á gólfi og hluta veggja. Inn á baði er sturta, vegghengt salerni og innrétting með skolvask. Góð þvottaaðstaða með innréttingu og efri skápum. Tveir opnanlegir gluggar.
Bílskúr er rúmgóður og með rafdrifinni hurð. Innaf bílskúr er herbergi, gestasnyrting og eldhúsaðstaða. Auðvelt að gera að auka íbúð.
Neðri hæð er með svefnherbergi og sérbaðherbergi með sturtu og salerni. Herbergið er aðskilið frá aðalhæðinni og hentar vel í útleigu eða sem unglingaherbergi. 

Verð kr. 144.900.000,-



Um skoðunar- og aðgæsluskyldu:
Í lögum um fasteignakaup nr. 40/2002 er kveðið á um ríka skoðunarskyldu kaupenda á fasteignum. Fasteignasala Mosfellsbæjar skorar því á væntanlega kaupendur að kynna sér vel ástand fasteigna fyrir kauptilboðsgerð og leita til þar til bærra sérfræðinga um nánari skoðun ef með þarf.

Forsendur söluyfirlits:
Söluyfirlit er samið af fasteignasala í samræmi við ákvæði laga nr. 70/2015. Þær upplýsingar sem fram koma í söluyfirliti þessu eru sóttar í opinberar skrár, til seljanda sjálfs og eftir atvikum til húsfélags. Seljandi veitir upplýsingar um eign í samræmi við upplýsingaskyldu laga um fasteignakaup nr. 40/2002. Fasteignasali sannreynir að þær upplýsingar séu réttar með sjónskoðun á eigninni.
Fasteignasali getur ekki fullyrt um ástand og eiginleika þeirra hluta fasteigna sem ekki eru aðgengilegir og sjást ekki berum augum, t.d. lagnir, dren, skólp og þak.

Gjöld sem kaupandi þarf að greiða vegna kaupa:
1. Stimpilgjald af kaupsamningi sem er hlutfall af fasteignamati. Stimpilgjald er 0,8% fyrir einstaklinga (0,4% við fyrstu kaup) og 1,6% fyrir lögaðila.
2. Þinglýsingargjald af kaupsamningi, veðskuldabréfum, veðleyfum o.fl. Þinglýsingargjald er kr. 3.800,- fyrir hvert skjal.
3. Lántökugjald lánastofnunar - er skv. gjaldskrá viðkomandi lánastofnunar.
4. Umsýslugjald til fasteignasölu skv. kauptilboði.
5. Þegar um nýbyggingu er að ræða greiðir kaupandi skipulagsgjald, 0,3% af endanlegu brunabótamáti, þegar það er lagt á af viðkomandi sveitarfélagi.

img
Svanþór Einarsson
Lögg.fasteignasali innan félags fasteignasala
Fasteignasala Mosfellsbæjar
Þverholti 2, 270 Mosfellsbæ
Fasteignasala Mosfellsbæjar

Fasteignasala Mosfellsbæjar

Þverholti 2, 270 Mosfellsbæ
phone
img

Svanþór Einarsson

Þverholti 2, 270 Mosfellsbæ
Ár
Fasteignamat
Kaupverð
Stærð
Fermetraverð
12. jan. 2022
86.350.000 kr.
112.500.000 kr.
253.1 m²
444.488 kr.
15. apr. 2019
67.150.000 kr.
85.000.000 kr.
253.1 m²
335.836 kr.
5. apr. 2017
52.100.000 kr.
50.000.000 kr.
253.1 m²
197.550 kr.
Byggt á upplýsingum úr Þjóðskrá Íslands frá 2006-2026
Fasteignasala Mosfellsbæjar

Fasteignasala Mosfellsbæjar

Þverholti 2, 270 Mosfellsbæ
phone

Svanþór Einarsson

Þverholti 2, 270 Mosfellsbæ