Upplýsingar
Verðsaga
Byggt 2006
76,4 m²
3 herb.
1 baðherb.
2 svefnh.
Útsýni
Sameiginl. inngangur
Lyfta
Laus strax
Lýsing
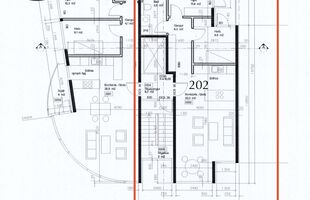
Betri Stofan og Jason Kr. Ólafsson sími 7751515 og [email protected] kynna: Klapparstígur 14, fallega og vel skipulagða 3ja herbergja, 76,4 fm íbúð á 2. hæð í lyftuhúsi.
Laus við kaupsamning
Íbúðin skiptist í eldhús og stofu með útsýni, baðherbergi með baðkari og tengi fyrir þvottavél, tvö svefnherbergi og hægt er að ganga úr þeim út á svalir sem snúa til vesturs og eru með seinniparts sólinni. Íbúðin er með gólfhita.
Klapparstígur 14 er lítið fjölbýli byggt árið 2006 með snyrtilegri sameign með lyftu.
Nánari lýsing.
Eldhús er með snyrtilegri innréttingu.
Stofa er opin við eldhús, með fallegu útsýni til sjávar og fjalla og parket á gólfi.
Baðherbergi er með snyrtilegri innréttingu, baðkar með sturtuhaus, tengi fyrir þvottavél, flísar á gólfi og veggjum.
Svefnherbergi I er með fataskáp og parket á gólfi, útgengi á svalir til vesturs.
Svefnherbergi II er með fataskáp og parket á gólfi, útgengi á svalir til vesturs inní garð/port.
Sérgeymsla er í kjallara sem er að stærðinni 7 fm birtir, eða 6 fm nettó.
Sameiginlegt þvottahús er í kjallara.
Sameiginleg hjóla- og vagnageymsla er í kjallara.
Lyftuhús og mánaðargjald fyrir húsfélag er kr. 40.989-
Íbúðin er vel staðsett í miðborg Reykjavíkur þar sem stutt er í alla helstu þjónustu. Íbúðin er skemmtileg og tilvalin fjárfesting fyrir áramót.
Nánari upplýsingar veitir Jason Kristinn Ólafsson, löggiltur fasteignasali í síma 7751515 og netfang [email protected]
Laus við kaupsamning
Íbúðin skiptist í eldhús og stofu með útsýni, baðherbergi með baðkari og tengi fyrir þvottavél, tvö svefnherbergi og hægt er að ganga úr þeim út á svalir sem snúa til vesturs og eru með seinniparts sólinni. Íbúðin er með gólfhita.
Klapparstígur 14 er lítið fjölbýli byggt árið 2006 með snyrtilegri sameign með lyftu.
Nánari lýsing.
Eldhús er með snyrtilegri innréttingu.
Stofa er opin við eldhús, með fallegu útsýni til sjávar og fjalla og parket á gólfi.
Baðherbergi er með snyrtilegri innréttingu, baðkar með sturtuhaus, tengi fyrir þvottavél, flísar á gólfi og veggjum.
Svefnherbergi I er með fataskáp og parket á gólfi, útgengi á svalir til vesturs.
Svefnherbergi II er með fataskáp og parket á gólfi, útgengi á svalir til vesturs inní garð/port.
Sérgeymsla er í kjallara sem er að stærðinni 7 fm birtir, eða 6 fm nettó.
Sameiginlegt þvottahús er í kjallara.
Sameiginleg hjóla- og vagnageymsla er í kjallara.
Lyftuhús og mánaðargjald fyrir húsfélag er kr. 40.989-
Íbúðin er vel staðsett í miðborg Reykjavíkur þar sem stutt er í alla helstu þjónustu. Íbúðin er skemmtileg og tilvalin fjárfesting fyrir áramót.
Nánari upplýsingar veitir Jason Kristinn Ólafsson, löggiltur fasteignasali í síma 7751515 og netfang [email protected]
Gjöld sem kaupandi þarf að standa straum af ef að kaupum verður:
1. Stimpilgjald af fasteignamati fasteignar er 0.8%, en 0,4% fyrir fyrstu kaup og 1,6% fyrir lögaðila.
2. Þinglýsingargjald: kaupsamningi, skuldabréfi, veðleyfi, afsali o.s.frv. er kr. 3.800 af hverju skjali.
3. Lántökukostnaður samkvæmt verðskrá viðkomandi lánastofnunar.
4. Umsýslugjald til fasteignasölu skv. gjaldskrá.
Skoðunarskylda kaupanda:
Í lögum um fasteignakaup nr. 40/2002 er kveðið á um ríka skoðunarskyldu kaupenda á fasteignum. Betri Stofan fasteignasala bendir væntanlegum kaupendum á að kynna sér vel ástand fasteigna við skoðun og fyrir tilboðsgerð og ef þurfa þykir að leita til sérfræðinga um nánari ástandsskoðun.
Ár
Fasteignamat
Kaupverð
Stærð
Fermetraverð
17. sep. 2020
44.100.000 kr.
46.000.000 kr.
76.4 m²
602.094 kr.
7. mar. 2017
37.600.000 kr.
43.000.000 kr.
76.4 m²
562.827 kr.
21. jan. 2008
20.900.000 kr.
28.800.000 kr.
76.4 m²
376.963 kr.
21. sep. 2007
18.840.000 kr.
28.800.000 kr.
76.4 m²
376.963 kr.
5. sep. 2006
12.355.000 kr.
25.500.000 kr.
76.4 m²
333.770 kr.
Byggt á upplýsingum úr Þjóðskrá Íslands frá 2006-2026