Upplýsingar
Byggt 2023
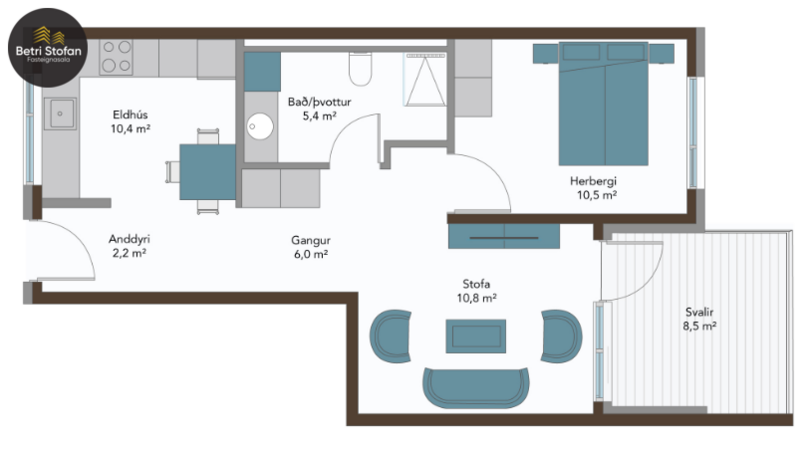
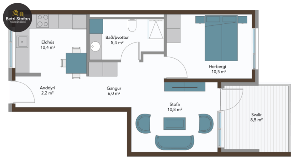
53,3 m²
2 herb.
1 baðherb.
1 svefnh.
Sérinngangur
Lýsing
Betri Stofan Fasteignasala, Dagrún Davíðsdóttir og Jason Kristinn Ólafsson löggiltir fasteignasalar kynna nýja 2 herbergja 53,3 fm íbúð á 2 hæð með sérinngangi. 8,5 fm svalir.
Íbúðirnar afhendast fullbúnar við kaupsamning, með gólfefnum, innbyggðri uppþvottavél, ísskáp með frysti og lýsing er í loftum. Ljós eru innbyggð að hluta. Baðherbergi eru flísalögð með sturtugleri, vaski, upphengdu salerni og handklæðaofn.
** Bókið einkaskoður hjá Dagrúnu Davíðsdóttir löggiltum fasteignasala í síma 866-1763 / [email protected] **
**Möguleiki á hlutdeildarláni**
Heimasíða verkefnis: Asparskógar 18
Nánari lýsing:
Forstofa: Skápur, flísalagt.
Eldhús: Hvít innrétting frá GKS. Ofn í vinnuhæð, vifta. Span helluborð, innbyggður kælir og frystir og uppþvottavél. Tæki frá AEG. Innbyggð lýsing undir efri skápum. Parket á gólfi.
Stofa , borðstofa og eldhús mynda opið rými. Parket á gólfi. Útgengt út á hellulagðan sérafnotareit.
Hjónaherbergi: Fataskápar. Parket á gólfi
Baðherbergi: Innrétting með handlaug. Speglaskápur. Upphengt salerni. Sturta með sturtugleri.Handklæðaofn. Ljósar flísar á gólfi og veggjum.
Sameiginleg hjóla- og vagnageymsla á jarðhæð.
Eignin er laus til afhendingar við kaupsamning.
Eignin Asparskógar 18 er skráð sem hér segir hjá FMR: Eign 2519866, birt stærð 53,3 fm. Íbúðin er 53,3 og geymsla 3,7 fm.
Nánari upplýsingar veita:
Dagrún Davíðsdóttir löggiltur fasteignasali í síma 866-1763 eða á netfangið: [email protected]
Jason Kristinn Ólafsson löggiltur fasteignasali í síma 775-1515 eða á netfangið: [email protected]
Íbúðirnar afhendast fullbúnar við kaupsamning, með gólfefnum, innbyggðri uppþvottavél, ísskáp með frysti og lýsing er í loftum. Ljós eru innbyggð að hluta. Baðherbergi eru flísalögð með sturtugleri, vaski, upphengdu salerni og handklæðaofn.
** Bókið einkaskoður hjá Dagrúnu Davíðsdóttir löggiltum fasteignasala í síma 866-1763 / [email protected] **
**Möguleiki á hlutdeildarláni**
Heimasíða verkefnis: Asparskógar 18
Nánari lýsing:
Forstofa: Skápur, flísalagt.
Eldhús: Hvít innrétting frá GKS. Ofn í vinnuhæð, vifta. Span helluborð, innbyggður kælir og frystir og uppþvottavél. Tæki frá AEG. Innbyggð lýsing undir efri skápum. Parket á gólfi.
Stofa , borðstofa og eldhús mynda opið rými. Parket á gólfi. Útgengt út á hellulagðan sérafnotareit.
Hjónaherbergi: Fataskápar. Parket á gólfi
Baðherbergi: Innrétting með handlaug. Speglaskápur. Upphengt salerni. Sturta með sturtugleri.Handklæðaofn. Ljósar flísar á gólfi og veggjum.
Sameiginleg hjóla- og vagnageymsla á jarðhæð.
Eignin er laus til afhendingar við kaupsamning.
Eignin Asparskógar 18 er skráð sem hér segir hjá FMR: Eign 2519866, birt stærð 53,3 fm. Íbúðin er 53,3 og geymsla 3,7 fm.
Nánari upplýsingar veita:
Dagrún Davíðsdóttir löggiltur fasteignasali í síma 866-1763 eða á netfangið: [email protected]
Jason Kristinn Ólafsson löggiltur fasteignasali í síma 775-1515 eða á netfangið: [email protected]
Gjöld sem kaupandi þarf að standa straum af ef að kaupum verður:
1. Stimpilgjald af fasteignamati fasteignar er 0.8%, en 0,4% fyrir fyrstu kaup og 1,6% fyrir lögaðila.
2. Þinglýsingargjald: kaupsamningi, skuldabréfi, veðleyfi, afsali o.s.frv. er kr. 3.800 af hverju skjali.
3. Lántökukostnaður samkvæmt verðskrá viðkomandi lánastofnunar.
4. Umsýslugjald til fasteignasölu skv. gjaldskrá.
Skoðunarskylda kaupanda:
Í lögum um fasteignakaup nr. 40/2002 er kveðið á um ríka skoðunarskyldu kaupenda á fasteignum. Betri Stofan fasteignasala bendir væntanlegum kaupendum á að kynna sér vel ástand fasteigna við skoðun og fyrir tilboðsgerð og ef þurfa þykir að leita til sérfræðinga um nánari ástandsskoðun.