Upplýsingar
Verðsaga
Byggt 2002
116,5 m²
4 herb.
1 baðherb.
3 svefnh.
Þvottahús
Sérinngangur
Lýsing
Fasteignasalan Hvammur 466 1600
Klettaborg 38 - Snyrtileg 4ra herbergja raðhúsaíbúð á tveimur hæðum - Stærð 116,5 m²
Upplýsingar veitir Sigurður H. Þrastarson, 888-6661, [email protected]
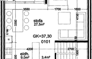
Eignin skiptist með eftirfarandi hætti:
Neðri hæð: Forstofa, eldhús, stofa/borðstofa, þvottahús og geymsla
Efri hæð: Þrjú svefnherbergi og baðherbergi.
Forstofa er með opnu fatahengi og flísum á gólfi.
Eldhús er með mjög rúmgóðri innréttingu, nýlegu keramik helluborði, ofni í vinnuhæð og stæði fyrir ísskáp. Flísar eru á gólfum.
Stofa/borðstofa eru samliggjandi og í hálfopnu rými með eldhúsi, þar eru flísar á gólfum. Gengið er úr stofu á góðan timburpall.
Svefnherbergin eru þrjú, öll með fataskápum. Eitt þeirra er með flísum á gólfi en hin tvö eru með korki. Útgengt er á suðursvalir úr hjónaherbergi.
Baðherbergi er með góðri innréttingu, baðkari með sturtutækjum, wc og handklæðaofni. Flísar á gólfi og hluta veggja.
Þvottahús er með stæði fyrir þvottavél og þurrkara. Flísar á gólfi.
Geymsla er til hliðar við stiganum og er hluti hennar undir stiganum. Flísar eru á gólfi.
Annað:
- Gólfhiti er á allir íbúðinni.
- Rafmagnspottur á lóð fylgir með við sölu.
- Geymslu"skúr" er á lóð og fylgir hann með við sölu.
- Allt innbú getur fylgt með við sölu.
Um skoðunar- og aðgæsluskyldu:
Í lögum um fasteignakaup nr. 40/2002 er kveðið á um ríka skoðunarskyldu kaupenda á fasteignum. Fasteignasalan Hvammur skorar því á væntanlega kaupendur að kynna sér vel ástand fasteigna fyrir kauptilboðsgerð og leita til þar til bærra sérfræðinga um nánari skoðun ef með þarf.
Forsendur söluyfirlits:
Söluyfirlit er samið af fasteignasala í samræmi við ákvæði laga nr. 70/2015. Þær upplýsingar sem fram koma í söluyfirliti þessu eru sóttar í opinberar skrár, til seljanda sjálfs og eftir atvikum til húsfélags. Seljandi veitir upplýsingar um eign í samræmi við upplýsingaskyldu laga um fasteignakaup nr. 40/2002. Fasteignasali sannreynir að þær upplýsingar séu réttar með sjónskoðun á eigninni.
Fasteignasali getur ekki fullyrt um ástand og eiginleika þeirra hluta fasteigna sem ekki eru aðgengilegir og sjást ekki berum augum, t.d. lagnir, dren, skólp og þak.
Klettaborg 38 - Snyrtileg 4ra herbergja raðhúsaíbúð á tveimur hæðum - Stærð 116,5 m²
Upplýsingar veitir Sigurður H. Þrastarson, 888-6661, [email protected]
Eignin skiptist með eftirfarandi hætti:
Neðri hæð: Forstofa, eldhús, stofa/borðstofa, þvottahús og geymsla
Efri hæð: Þrjú svefnherbergi og baðherbergi.
Forstofa er með opnu fatahengi og flísum á gólfi.
Eldhús er með mjög rúmgóðri innréttingu, nýlegu keramik helluborði, ofni í vinnuhæð og stæði fyrir ísskáp. Flísar eru á gólfum.
Stofa/borðstofa eru samliggjandi og í hálfopnu rými með eldhúsi, þar eru flísar á gólfum. Gengið er úr stofu á góðan timburpall.
Svefnherbergin eru þrjú, öll með fataskápum. Eitt þeirra er með flísum á gólfi en hin tvö eru með korki. Útgengt er á suðursvalir úr hjónaherbergi.
Baðherbergi er með góðri innréttingu, baðkari með sturtutækjum, wc og handklæðaofni. Flísar á gólfi og hluta veggja.
Þvottahús er með stæði fyrir þvottavél og þurrkara. Flísar á gólfi.
Geymsla er til hliðar við stiganum og er hluti hennar undir stiganum. Flísar eru á gólfi.
Annað:
- Gólfhiti er á allir íbúðinni.
- Rafmagnspottur á lóð fylgir með við sölu.
- Geymslu"skúr" er á lóð og fylgir hann með við sölu.
- Allt innbú getur fylgt með við sölu.
Um skoðunar- og aðgæsluskyldu:
Í lögum um fasteignakaup nr. 40/2002 er kveðið á um ríka skoðunarskyldu kaupenda á fasteignum. Fasteignasalan Hvammur skorar því á væntanlega kaupendur að kynna sér vel ástand fasteigna fyrir kauptilboðsgerð og leita til þar til bærra sérfræðinga um nánari skoðun ef með þarf.
Forsendur söluyfirlits:
Söluyfirlit er samið af fasteignasala í samræmi við ákvæði laga nr. 70/2015. Þær upplýsingar sem fram koma í söluyfirliti þessu eru sóttar í opinberar skrár, til seljanda sjálfs og eftir atvikum til húsfélags. Seljandi veitir upplýsingar um eign í samræmi við upplýsingaskyldu laga um fasteignakaup nr. 40/2002. Fasteignasali sannreynir að þær upplýsingar séu réttar með sjónskoðun á eigninni.
Fasteignasali getur ekki fullyrt um ástand og eiginleika þeirra hluta fasteigna sem ekki eru aðgengilegir og sjást ekki berum augum, t.d. lagnir, dren, skólp og þak.
Ár
Fasteignamat
Kaupverð
Stærð
Fermetraverð
18. maí. 2010
21.450.000 kr.
22.500.000 kr.
116.5 m²
193.133 kr.
Byggt á upplýsingum úr Þjóðskrá Íslands frá 2006-2026