Upplýsingar
Byggt 2021
147,1 m²
3 herb.
1 baðherb.
2 svefnh.
Þvottahús
Bílskúr
Sérinngangur
Lýsing
Steindór Guðmundsson löggiltur fasteignasali 862 1996 og HÚS fasteignasala kynna í einkasölu Móstekk 29, Selfossi. Glæsilegt, fullfrágengið, steinsteypt raðhús með bílskúr. Eignin er 147,1 fm þar af er bílskúr 32,5 fm. Mjög vandaðar innréttingar og gólfefni. Hellulögð innkeyrsla með hitalögnum. Um 80 fm afgirt verönd með heitum potti. Tvö rúmgóð svefnherbergi og mjög stórt eldhús og stofa.
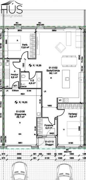
Nánari lýsing:
Forstofa flísalögð þar er stór skápur.
Herbergi með skáp.
Mjög rúmgott eldhús og stofa sem er alls 56,1 fm Vandaðar innréttingar í svörtum lit og hnotu frá IWA. Eyja með vaski. Innbyggður ísskápur og uppþvottavél frá AEG. Hefðbundinn bakaraofn, sambyggður ofn/örbylgjuofn og spanhelluborð frá SMEG. Úr stofu er rennihurð út á verönd.
Hjónaherbergi með stórum skáp.
Baðherbergi er flísalagt þar er walk in sturta með svörtum innfeldum blöndunartækjum, góð innrétting og upphengt salerni.
Þvottahús er flísalagt þar er stór innrétting. Innangengt er í bílskúr.
Bílskúrinn er flísalagður. Gönguhurð er undir þakskyggni.
Ál/tré gluggar. Gólfefni harðparket og flísar frá Harðviðarval. Innihurðar frá Birgisson ljósar með viðaráferð. Hreinlætistæki á baði frá Ísleifi Jónssyni. Hljóðdúkar í loftum með innfeldri lýsingu. Innfeld lýsing við alla glugga. Hiti í gólfum með stýringum. Neysluvatnslagnir með forhitara.
Stór hellulögð innkeyrsla með hitalögnum. Steypt ruslatunnuskýli með lokum. Lýsing á bílaplani.
Um 80 fm verönd afgirt með skjólveggjum. Þar er heitur pottur frá Borgarplast. Lýsing er á verönd.
Nánari upplýsingar veitir Steindór Guðmundsson löggiltur fasteignasali s. 862 1996 [email protected]
,,Okkar fagmennska eru þínir hagsmunir"
Gjöld sem kaupandi þarf að standa straum að vegna kaupanna.
1. Stimpilgjöld af kaupsamningi - 0,8 % af heildarfasteignamati. (0,4% fyrstu kaup, 1,6% lögaðilar)
2. Þinglýsingargjald af kaupsamningi, veðskuldabréfi, mögulegu veðleyfi o.fl. kr. 3.800 af hverju skjali.
3. Lántökugjald lánastofnunnar, breytilegt. Nánari upplýsingar t.d. á heimasíðum lánastofnanna.
4. Umsýslugjald til fasteignasölu sbr. kauptilboð.
Gjöld sem kaupandi þarf að standa straum að vegna kaupanna.
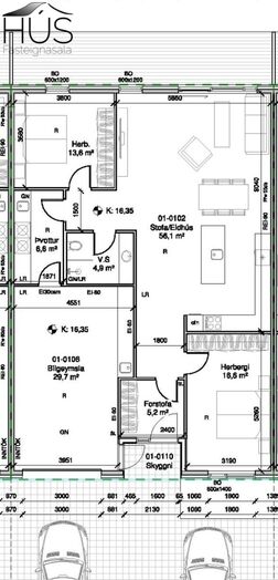
Nánari lýsing:
Forstofa flísalögð þar er stór skápur.
Herbergi með skáp.
Mjög rúmgott eldhús og stofa sem er alls 56,1 fm Vandaðar innréttingar í svörtum lit og hnotu frá IWA. Eyja með vaski. Innbyggður ísskápur og uppþvottavél frá AEG. Hefðbundinn bakaraofn, sambyggður ofn/örbylgjuofn og spanhelluborð frá SMEG. Úr stofu er rennihurð út á verönd.
Hjónaherbergi með stórum skáp.
Baðherbergi er flísalagt þar er walk in sturta með svörtum innfeldum blöndunartækjum, góð innrétting og upphengt salerni.
Þvottahús er flísalagt þar er stór innrétting. Innangengt er í bílskúr.
Bílskúrinn er flísalagður. Gönguhurð er undir þakskyggni.
Ál/tré gluggar. Gólfefni harðparket og flísar frá Harðviðarval. Innihurðar frá Birgisson ljósar með viðaráferð. Hreinlætistæki á baði frá Ísleifi Jónssyni. Hljóðdúkar í loftum með innfeldri lýsingu. Innfeld lýsing við alla glugga. Hiti í gólfum með stýringum. Neysluvatnslagnir með forhitara.
Stór hellulögð innkeyrsla með hitalögnum. Steypt ruslatunnuskýli með lokum. Lýsing á bílaplani.
Um 80 fm verönd afgirt með skjólveggjum. Þar er heitur pottur frá Borgarplast. Lýsing er á verönd.
Nánari upplýsingar veitir Steindór Guðmundsson löggiltur fasteignasali s. 862 1996 [email protected]
,,Okkar fagmennska eru þínir hagsmunir"
Gjöld sem kaupandi þarf að standa straum að vegna kaupanna.
1. Stimpilgjöld af kaupsamningi - 0,8 % af heildarfasteignamati. (0,4% fyrstu kaup, 1,6% lögaðilar)
2. Þinglýsingargjald af kaupsamningi, veðskuldabréfi, mögulegu veðleyfi o.fl. kr. 3.800 af hverju skjali.
3. Lántökugjald lánastofnunnar, breytilegt. Nánari upplýsingar t.d. á heimasíðum lánastofnanna.
4. Umsýslugjald til fasteignasölu sbr. kauptilboð.
Gjöld sem kaupandi þarf að standa straum að vegna kaupanna.