Upplýsingar
Verðsaga
Byggt 2018
93,4 m²
4 herb.
1 baðherb.
3 svefnh.
Lyfta
Lýsing
Kasa fasteignir 461-2010.
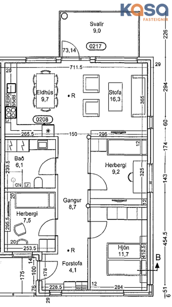
Davíðshagi 12, íbúð 208 - Mjög falleg og vel skipulögð 4 herbergja, 92,4 fm íbúð á 2. hæð í fjölbýlishúsi með lyftu.
Íbúðin skiptist í forstofu, hol, stofu og eldhús í opnu rými, baðherbergi með þvottaaðstöðu og 3 svefnherbergi. Einnig fylgir eigninni sér-geymsla í kjallara.
Forstofa er með flísum á gólfi og góðum fataskáp.
Eldhús og stofa eru í opnu og björtu rými með parket á gólfi. Eldhúsinnrétting er falleg með góðu skápa- og skúffuplássi og flísum á milli skápa. Pláss er fyrir uppþvottavél og bakaraofn í vinnuhæð. Úr stofu er gengið út á 9 fm svalir til suðurs með góðu útsýni.
Hol er með parketi á gólfi.
Svefnherbergin eru 3, öll með parketi á gólfum og vönduðum fataskápum.
Baðherbergi er með ljósum flísum á gólfi og hluta veggja, upphengt salerni og sturtu með glerskilrúmi. Góð innrétting er í kringum vask og pláss er í henni fyrir þvottavél og þurrkara.
Sér geymsla er í kjallaranum, skráð 6,4 fm.
- Lyfta er í húsinu
- Snyrtileg sameign
- Góð staðsetning í Hagahverfi
Nánari upplýsingar í síma 461-2010 eða [email protected]
------------
Skoðunarskylda:
Í lögum um fasteignakaup nr. 40/2002 er kveðið á um ríka skoðunarskyldu kaupenda á fasteignum. Kasa fasteignir benda væntanlegum kaupendum á að kynna sér vel ástand fasteigna fyrir kauptilboðsgerð og leita til þar til bærra sérfræðinga um nánari skoðun ef þurfa þykir.
Forsendur söluyfirlits:
Söluyfirlit er samið af fasteignasala í samræmi við ákvæði laga nr. 70/2015. Þær upplýsingar sem fram koma í söluyfirliti þessu eru sóttar í opinberar skrár, til seljanda sjálfs og eftir atvikum til húsfélags. Seljandi veitir upplýsingar um eign í samræmi við upplýsingaskyldu laga um fasteignakaup nr. 40/2002. Fasteignasali sannreynir að þær upplýsingar séu réttar með sjónskoðun á eigninni. Fasteignasali getur ekki fullyrt um ástand og eiginleika þeirra hluta fasteigna sem ekki eru aðgengilegir og sjást ekki berum augum, t.d. lagnir, dren, skólp og þak.
Gjöld sem kaupandi þarf að standa straum af vegna kaupanna:
1. Stimpilgjald sýslumanns af kaupsamningi, fyrstu kaup (0,4%), almenn kaup (0,8%), lögaðilar (1,6%) af heildarfasteignamati eignar.
2. Þinglýsingargjald af kaupsamningi, veðskuldabréfi, mögulegu veðleyfi o.fl. - kr. 2.700 af hverju skjali.
3. Lántökugjald lánastofnunar er skv. verðskrá viðkomandi lánastofnunar. Nánari upplýsingar á t.d. heimasíðu lánastofnana.
4. Umsýslugjald til fasteignasölu skv. kauptilboði.
Davíðshagi 12, íbúð 208 - Mjög falleg og vel skipulögð 4 herbergja, 92,4 fm íbúð á 2. hæð í fjölbýlishúsi með lyftu.
Íbúðin skiptist í forstofu, hol, stofu og eldhús í opnu rými, baðherbergi með þvottaaðstöðu og 3 svefnherbergi. Einnig fylgir eigninni sér-geymsla í kjallara.
Forstofa er með flísum á gólfi og góðum fataskáp.
Eldhús og stofa eru í opnu og björtu rými með parket á gólfi. Eldhúsinnrétting er falleg með góðu skápa- og skúffuplássi og flísum á milli skápa. Pláss er fyrir uppþvottavél og bakaraofn í vinnuhæð. Úr stofu er gengið út á 9 fm svalir til suðurs með góðu útsýni.
Hol er með parketi á gólfi.
Svefnherbergin eru 3, öll með parketi á gólfum og vönduðum fataskápum.
Baðherbergi er með ljósum flísum á gólfi og hluta veggja, upphengt salerni og sturtu með glerskilrúmi. Góð innrétting er í kringum vask og pláss er í henni fyrir þvottavél og þurrkara.
Sér geymsla er í kjallaranum, skráð 6,4 fm.
- Lyfta er í húsinu
- Snyrtileg sameign
- Góð staðsetning í Hagahverfi
Nánari upplýsingar í síma 461-2010 eða [email protected]
------------
Skoðunarskylda:
Í lögum um fasteignakaup nr. 40/2002 er kveðið á um ríka skoðunarskyldu kaupenda á fasteignum. Kasa fasteignir benda væntanlegum kaupendum á að kynna sér vel ástand fasteigna fyrir kauptilboðsgerð og leita til þar til bærra sérfræðinga um nánari skoðun ef þurfa þykir.
Forsendur söluyfirlits:
Söluyfirlit er samið af fasteignasala í samræmi við ákvæði laga nr. 70/2015. Þær upplýsingar sem fram koma í söluyfirliti þessu eru sóttar í opinberar skrár, til seljanda sjálfs og eftir atvikum til húsfélags. Seljandi veitir upplýsingar um eign í samræmi við upplýsingaskyldu laga um fasteignakaup nr. 40/2002. Fasteignasali sannreynir að þær upplýsingar séu réttar með sjónskoðun á eigninni. Fasteignasali getur ekki fullyrt um ástand og eiginleika þeirra hluta fasteigna sem ekki eru aðgengilegir og sjást ekki berum augum, t.d. lagnir, dren, skólp og þak.
Gjöld sem kaupandi þarf að standa straum af vegna kaupanna:
1. Stimpilgjald sýslumanns af kaupsamningi, fyrstu kaup (0,4%), almenn kaup (0,8%), lögaðilar (1,6%) af heildarfasteignamati eignar.
2. Þinglýsingargjald af kaupsamningi, veðskuldabréfi, mögulegu veðleyfi o.fl. - kr. 2.700 af hverju skjali.
3. Lántökugjald lánastofnunar er skv. verðskrá viðkomandi lánastofnunar. Nánari upplýsingar á t.d. heimasíðu lánastofnana.
4. Umsýslugjald til fasteignasölu skv. kauptilboði.
Ár
Fasteignamat
Kaupverð
Stærð
Fermetraverð
8. des. 2017
2.470.000 kr.
34.900.000 kr.
93.4 m²
373.662 kr.
Byggt á upplýsingum úr Þjóðskrá Íslands frá 2006-2026