Upplýsingar
Verðsaga
Byggt 2015
104 m²
4 herb.
1 baðherb.
3 svefnh.
Þvottahús
Lyfta
Lýsing
Bókið skoðun - Glódís Helgadóttir löggiltur fasteignasali s. 659-0510 / [email protected]
Hraunhamar fasteignasala kynnir bjarta og fallega fjögurra herbergja íbúð á 3.hæð í lyftuhúsnæði vel staðsettu á þessum fjölskylduvæna stað við Klukkuvelli 5. Skóli og leikskóli í göngufæri. Öll helsta þjónusta er í næsta umhverfi þ.e.a.s. verslanir, sundlaug, líkamsrækt og íþróttamiðstöðin við Ásvelli.
- Róleg staðsetning
- Þrjú góð herbergi
- Sér þvottahús
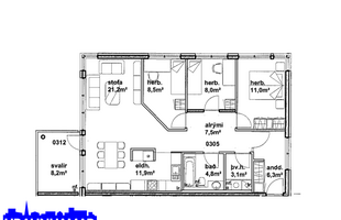
Eignin er skráð 104 fm skv. HMS en þar af er 7,8 fm geymsla.
Smelltu hér til að fá söluyfirlit sent strax.
Nánari lýsing:
Rúmgóð forstofa með góðum fataskápum, flísar á gólfi.
Rúmgott hol.
Hvít eldhúsinnrétting, gott skápaplass, ofn í vinnuhæð, helluborð með háf yfir, innbyggð uppþvottavél. Flísar á milli efri og neðri skápa. Eyja í eldhúsi.
Björt stofa og borðstofa þar sem útgengt er á rúmgóðar suðvestur svalir.
Hjónaherbergi er rúmgott með góðu skápaplássi. Nýtist sem barnaherbergi í dag.
Tvö barnaherbergi bæði með skáp.
Baðherbergi með innréttingu, vegghengdu salerni, baðkari með sturtuaðstöðu, handklæðaofn, flísar á gólfi og veggjum.
Þvottahús innan íbúðarinnar með innréttingu, flísar á gólfi.
Sér geymsla í kjallara ásamt sameiginlegri hjóla- og vagnageymslu.
Falleg og fjölskylduvæn eign á vinsælum stað þar sem stutt er í alla helstu þjónustu, verslanir, grunnskóla, leikskóla, góð útivistarsvæði o.fl.
Nánari upplýsingar veitir:
Glódís Helgadóttir löggiltur fasteignasali í s. 659-0510 eða [email protected]
Skoðunarskylda:
Í lögum um fasteignakaup nr. 40/2002 er kveðið á um ríka skoðunarskyldu kaupenda á fasteignum. Hraunhamar fasteignasala vill benda væntanlegum kaupendum á að kynna sér vel ástand fasteigna fyrir kauptilboðsgerð og ef þurfa þykir að leita til sérfræðinga fyrir nánari ástandsskoðun.
Gjöld sem kaupandi þarf að standa straum af vegna kaupanna:
1. Stimpilgjald af kaupsamningi, fyrstu kaup (0,4%), almenn kaup (0,8%), lögaðilar (1,6%) af heildarfasteignamati.
2. Þinglýsingargjald af kaupsamningi, veðskuldabréfi, mögulegu veðleyfi o.fl. – kr. 3.800 kr. af hverju skjali.
3. Lántökugjald lánastofnunar er skv. verðskrá viðkomandi lánastofnunar.
4. Umsýslugjald til fasteignasölu skv. þjónustusamningi
Hraunhamar er elsta fasteignasala Hafnarfjarðar, stofnuð 1983.
Hraunhamar, í fararbroddi í rúm 40 ár. – Hraunhamar.is
Smelltu hér til að fá frítt söluverðmat.
Hraunhamar fasteignasala kynnir bjarta og fallega fjögurra herbergja íbúð á 3.hæð í lyftuhúsnæði vel staðsettu á þessum fjölskylduvæna stað við Klukkuvelli 5. Skóli og leikskóli í göngufæri. Öll helsta þjónusta er í næsta umhverfi þ.e.a.s. verslanir, sundlaug, líkamsrækt og íþróttamiðstöðin við Ásvelli.
- Róleg staðsetning
- Þrjú góð herbergi
- Sér þvottahús
Eignin er skráð 104 fm skv. HMS en þar af er 7,8 fm geymsla.
Smelltu hér til að fá söluyfirlit sent strax.
Nánari lýsing:
Rúmgóð forstofa með góðum fataskápum, flísar á gólfi.
Rúmgott hol.
Hvít eldhúsinnrétting, gott skápaplass, ofn í vinnuhæð, helluborð með háf yfir, innbyggð uppþvottavél. Flísar á milli efri og neðri skápa. Eyja í eldhúsi.
Björt stofa og borðstofa þar sem útgengt er á rúmgóðar suðvestur svalir.
Hjónaherbergi er rúmgott með góðu skápaplássi. Nýtist sem barnaherbergi í dag.
Tvö barnaherbergi bæði með skáp.
Baðherbergi með innréttingu, vegghengdu salerni, baðkari með sturtuaðstöðu, handklæðaofn, flísar á gólfi og veggjum.
Þvottahús innan íbúðarinnar með innréttingu, flísar á gólfi.
Sér geymsla í kjallara ásamt sameiginlegri hjóla- og vagnageymslu.
Falleg og fjölskylduvæn eign á vinsælum stað þar sem stutt er í alla helstu þjónustu, verslanir, grunnskóla, leikskóla, góð útivistarsvæði o.fl.
Nánari upplýsingar veitir:
Glódís Helgadóttir löggiltur fasteignasali í s. 659-0510 eða [email protected]
Skoðunarskylda:
Í lögum um fasteignakaup nr. 40/2002 er kveðið á um ríka skoðunarskyldu kaupenda á fasteignum. Hraunhamar fasteignasala vill benda væntanlegum kaupendum á að kynna sér vel ástand fasteigna fyrir kauptilboðsgerð og ef þurfa þykir að leita til sérfræðinga fyrir nánari ástandsskoðun.
Gjöld sem kaupandi þarf að standa straum af vegna kaupanna:
1. Stimpilgjald af kaupsamningi, fyrstu kaup (0,4%), almenn kaup (0,8%), lögaðilar (1,6%) af heildarfasteignamati.
2. Þinglýsingargjald af kaupsamningi, veðskuldabréfi, mögulegu veðleyfi o.fl. – kr. 3.800 kr. af hverju skjali.
3. Lántökugjald lánastofnunar er skv. verðskrá viðkomandi lánastofnunar.
4. Umsýslugjald til fasteignasölu skv. þjónustusamningi
Hraunhamar er elsta fasteignasala Hafnarfjarðar, stofnuð 1983.
Hraunhamar, í fararbroddi í rúm 40 ár. – Hraunhamar.is
Smelltu hér til að fá frítt söluverðmat.
Ár
Fasteignamat
Kaupverð
Stærð
Fermetraverð
14. maí. 2020
43.500.000 kr.
45.500.000 kr.
104 m²
437.500 kr.
29. sep. 2016
28.050.000 kr.
27.500.000 kr.
104 m²
264.423 kr.
25. feb. 2016
20.400.000 kr.
31.800.000 kr.
104 m²
305.769 kr.
Byggt á upplýsingum úr Þjóðskrá Íslands frá 2006-2026