Upplýsingar
Verðsaga
Byggt 1952
84,6 m²
3 herb.
1 baðherb.
2 svefnh.
Þvottahús
Sameiginl. inngangur
Lýsing
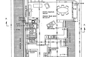
Betri Stofan og Jason Kristinn Ólafsson, sími 7751515 [email protected] kynna: 84,6 fm risíbúð við Miðtún 90. Íbúðin er ósamþykkt en björt og vel skipulögð þriggja herbergja risíbúð í þríbýli á vinsælum stað í 105 Reykjavík.
Íbúðin telur hol, stofu, eldhús, tvö svefnherbergi, baðherbergi, kalda geymslu í stigagangi, sameiginlegt þvottahús í kjallara og útigeymslu undir útitröppum.
Nánari lýsing:
Inngangur: Sameiginlegur og teppalagður stigi upp í íbúðina. Köld geymsla: Á vinstri hönd í stiganum.
Stofa og borðstofa: Undir súð að mestu, gluggi til suð-austurs og kvistur og gengt út á litlar svalir til suð-vesturs, parket á gólfi.
Eldhús: Helluborð í frístandandi eyju með skúffum og skápum og háfur yfir, gert ráð fyrir ísskáp við hliðina. Við vegginn er bakarofn í þægilegri hæð og gott skápa- og borðpláss, gluggi í kvisti og geymsluskápur út undir súðinni, flísar á gólfi, að herbergjum og við inngang.
Svefnherbergi: Bæði vel rúmgóð, góðir fataskápar í öðru, lágir geymsluskápar undir súð í báðum og harðparket á gólfum.
Baðherbergi: Undir súð með þakglugga. Nýlegt upphengt klósett, baðkar og handlaug á skáp, flísar á gólfi.
Þvottahús: Sameiginlegt í kjallara, hver með sína vél og ágætt snúrupláss.
Útigeymsla: Undir útitröppum, skráð 8,3 fm.
Lóðin er 459 fm og er sameign húseiganda.
Þakjárn upprunalegt að mestu og farið að láta á sjá. Einhverjir gluggar þarfnast athygli innan tíðar.
Nánari upplýsingar veitir Jason Kristinn Ólafsson, sími 7751515 [email protected] löggiltur fasteignasali.
Íbúðin telur hol, stofu, eldhús, tvö svefnherbergi, baðherbergi, kalda geymslu í stigagangi, sameiginlegt þvottahús í kjallara og útigeymslu undir útitröppum.
Nánari lýsing:
Inngangur: Sameiginlegur og teppalagður stigi upp í íbúðina. Köld geymsla: Á vinstri hönd í stiganum.
Stofa og borðstofa: Undir súð að mestu, gluggi til suð-austurs og kvistur og gengt út á litlar svalir til suð-vesturs, parket á gólfi.
Eldhús: Helluborð í frístandandi eyju með skúffum og skápum og háfur yfir, gert ráð fyrir ísskáp við hliðina. Við vegginn er bakarofn í þægilegri hæð og gott skápa- og borðpláss, gluggi í kvisti og geymsluskápur út undir súðinni, flísar á gólfi, að herbergjum og við inngang.
Svefnherbergi: Bæði vel rúmgóð, góðir fataskápar í öðru, lágir geymsluskápar undir súð í báðum og harðparket á gólfum.
Baðherbergi: Undir súð með þakglugga. Nýlegt upphengt klósett, baðkar og handlaug á skáp, flísar á gólfi.
Þvottahús: Sameiginlegt í kjallara, hver með sína vél og ágætt snúrupláss.
Útigeymsla: Undir útitröppum, skráð 8,3 fm.
Lóðin er 459 fm og er sameign húseiganda.
Þakjárn upprunalegt að mestu og farið að láta á sjá. Einhverjir gluggar þarfnast athygli innan tíðar.
Nánari upplýsingar veitir Jason Kristinn Ólafsson, sími 7751515 [email protected] löggiltur fasteignasali.
Gjöld sem kaupandi þarf að standa straum af ef að kaupum verður:
1. Stimpilgjald af fasteignamati fasteignar er 0.8%, en 0,4% fyrir fyrstu kaup og 1,6% fyrir lögaðila.
2. Þinglýsingargjald: kaupsamningi, skuldabréfi, veðleyfi, afsali o.s.frv. er kr. 3.800 af hverju skjali.
3. Lántökukostnaður samkvæmt verðskrá viðkomandi lánastofnunar.
4. Umsýslugjald til fasteignasölu skv. gjaldskrá.
Skoðunarskylda kaupanda:
Í lögum um fasteignakaup nr. 40/2002 er kveðið á um ríka skoðunarskyldu kaupenda á fasteignum. Betri Stofan fasteignasala bendir væntanlegum kaupendum á að kynna sér vel ástand fasteigna við skoðun og fyrir tilboðsgerð og ef þurfa þykir að leita til sérfræðinga um nánari ástandsskoðun.
Ár
Fasteignamat
Kaupverð
Stærð
Fermetraverð
4. mar. 2021
41.650.000 kr.
33.000.000 kr.
84.6 m²
390.071 kr.
11. sep. 2012
20.050.000 kr.
22.000.000 kr.
84.6 m²
260.047 kr.
29. sep. 2009
19.400.000 kr.
12.914.000 kr.
84.6 m²
152.648 kr.
8. maí. 2006
14.560.000 kr.
15.300.000 kr.
72.3 m²
211.618 kr.
Byggt á upplýsingum úr Þjóðskrá Íslands frá 2006-2026