Löggiltir fasteignasalar innan Félags fasteignasala:
Hannes Steindórsson
Bogi Molby Pétursson
Guðrún Antonsdóttir
Heimir Hallgrímsson
Hrafnkell P. H. Pálmason
Viðar Marinósson
Elías Haraldsson
Kristján Þórir Hauksson
Albert Bjarni Úlfarsson
Ragnar Þorsteinsson
Þórey Ólafsdóttir
Andri Freyr Halldórsson
Upplýsingar
102,3 m²
3 herb.
1 baðherb.
2 svefnh.
Þvottahús
Sameiginl. inngangur
Bílastæði
Lyfta
Lýsing
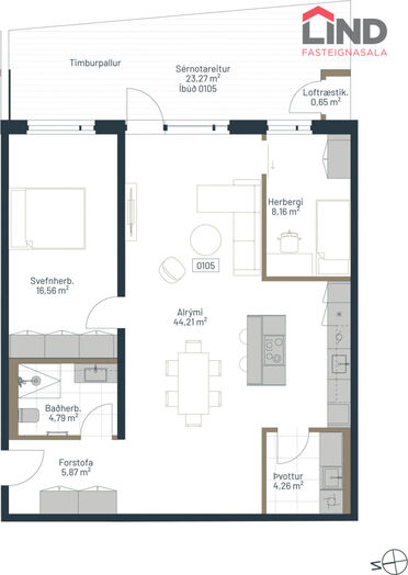
Hannes Steindórsson og Gunnar Valsson kynna: 102,3 fm, þriggja herbergja jarðhæð með 23,27fm sérafnotarétti og 44 fm alrými. Sérmerkt bílastæði í bílakjallara.
Loftskiptabúnaður - Sérsmíðaðar innréttingar Brúnás - QUARTZ borðplötur S. Helgason
-Hljóðdúkur - Álklætt með áltré gluggum - Bambus viður á sérafnotarétti.
Nýtt og einstaklega vandað fjölbýlishús við sjávarsíðuna á vestanverðu Kársnesi, nálægt fyrirhugaðri Fossvogsbrú. Margar af íbúðunum eru með stórkostlegu útsýni til sjávar og fjalla, samfelldur útivistastígur meðfram strandlengjunni. Hér má skoða íbúðina og verkefnið.
Húsið er 5.hæða lyftuhús með 52 íbúðum. Áhersla lögð á gott skipulag, björt og vistleg rými.
Sérsmíðaðar innréttingar frá Brúnás, flísar 60x60 Stone Italiana, aukin lofthæð og
hlaðnir milliveggir.
Húsið er klætt að utan með sérhannaðri þýskri álklæðningu. Áltré gluggar,
þykkar ítalskar QUARTZ borðplötur í ljósum lit, Stone Italiana frá S.Helgasyni.
Fullkomið loftskiptakerfi, sjálfstætt fyrir hverja íbúð. Hljóðdúkur í sameign, innfelld tæki, ísskápur og uppþvottavél fylgja. Svört tæki í eldhúsi. Gert er ráð fyrir hleðslustöðvum fyrir rafbíla í bílakjallara. Innfelld lýsing á 5.hæð. Svört tæki í eldhúsi. Eignirnar eru afhendar fullbúnar án gólfefna að undanskyldu baðherbergi og þvottahúsi, þar eru flísar. Á sérafnotareitum og völdum svölum er möguleiki á að koma fyrir rafmagnspotti. Aðgangsstýrð bílageymsla er í kjallara og flestum íbúðum fylgir sérmerkt einkastæði, ýmist eitt eða tvö.
Íbúð 105 er 102,3 fm íbúð á 1.hæð með 23,27fm sérafnotarétti og sérmerkt bílastæði í bílakjallara merkt B07. Forstofa, tvö svefnherbergi, baðherbergi, sér þvottahús, 44 fm alrými, stofa, eldhús og borðstofa. Sérgeymsla er í kjallara.
Afhending: Apríl 2026
Allar upplýsingar veita: Gunnar Valsson s.699-3702 [email protected] og Hannes Steindórsson s.699-5008 [email protected]
Loftskiptabúnaður - Sérsmíðaðar innréttingar Brúnás - QUARTZ borðplötur S. Helgason
-Hljóðdúkur - Álklætt með áltré gluggum - Bambus viður á sérafnotarétti.
Nýtt og einstaklega vandað fjölbýlishús við sjávarsíðuna á vestanverðu Kársnesi, nálægt fyrirhugaðri Fossvogsbrú. Margar af íbúðunum eru með stórkostlegu útsýni til sjávar og fjalla, samfelldur útivistastígur meðfram strandlengjunni. Hér má skoða íbúðina og verkefnið.
Húsið er 5.hæða lyftuhús með 52 íbúðum. Áhersla lögð á gott skipulag, björt og vistleg rými.
Sérsmíðaðar innréttingar frá Brúnás, flísar 60x60 Stone Italiana, aukin lofthæð og
hlaðnir milliveggir.
Húsið er klætt að utan með sérhannaðri þýskri álklæðningu. Áltré gluggar,
þykkar ítalskar QUARTZ borðplötur í ljósum lit, Stone Italiana frá S.Helgasyni.
Fullkomið loftskiptakerfi, sjálfstætt fyrir hverja íbúð. Hljóðdúkur í sameign, innfelld tæki, ísskápur og uppþvottavél fylgja. Svört tæki í eldhúsi. Gert er ráð fyrir hleðslustöðvum fyrir rafbíla í bílakjallara. Innfelld lýsing á 5.hæð. Svört tæki í eldhúsi. Eignirnar eru afhendar fullbúnar án gólfefna að undanskyldu baðherbergi og þvottahúsi, þar eru flísar. Á sérafnotareitum og völdum svölum er möguleiki á að koma fyrir rafmagnspotti. Aðgangsstýrð bílageymsla er í kjallara og flestum íbúðum fylgir sérmerkt einkastæði, ýmist eitt eða tvö.
Íbúð 105 er 102,3 fm íbúð á 1.hæð með 23,27fm sérafnotarétti og sérmerkt bílastæði í bílakjallara merkt B07. Forstofa, tvö svefnherbergi, baðherbergi, sér þvottahús, 44 fm alrými, stofa, eldhús og borðstofa. Sérgeymsla er í kjallara.
Afhending: Apríl 2026
Allar upplýsingar veita: Gunnar Valsson s.699-3702 [email protected] og Hannes Steindórsson s.699-5008 [email protected]