Löggiltir fasteignasalar innan Félags fasteignasala:
Sigurður Maack Gunnarsson
Svanþór Einarsson
Theodór Emil Karlsson
Steingrímur Benediktsson
Vista
fjölbýlishús

Úugata 8 (204)

270 Mosfellsbær

86.800.000 kr.

864.542 þ.kr./m2
Fasteignanúmer

F2539435

Fasteignamat

6.540.000 kr.

Brunabótamat

0 kr.

Áhvílandi

0 kr.

Arion banki – Reikna lán
Upplýsingar
svg
100,4 m²
svg
3 herb.
svg
1 baðherb.
svg
2 svefnh.
svg
Þvottahús
svg
Útsýni
svg
Sérinngangur
svg
Bílastæði
svg
Lyfta

Lýsing

** Hafðu samband og bókaðu skoðun - Sýnum samdægurs - Svanþór Einarsson, löggiltur fasteignasali - [email protected] eða 698-8555 - Theodór Emil Karlsson, löggiltur fasteignasali - [email protected] eða 690-8040 - Steingrímur Benediktsson, löggiltur fasteignasali - [email protected] eða 862-9416 **

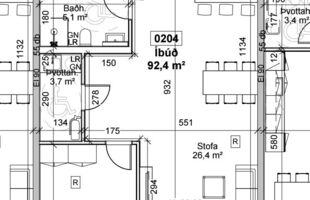
Fasteignasala Mosfellsbæjar kynnir: Ný og glæsileg 3ja herbergja íbúð á 2.hæð (efstu hæð) ásamt bílastæði í bílageymsla í nýju lyftuhúsi við Úugötu 8 í Mosfellsbæ. Eignin er skráð 100,4 m2 en þar af íbúð 92,5 m2 og geymsla 8,0 m2. Eignin skiptist í forstofu, stofu, eldhús, 2 svefnherbergi, þvottahús, baðherbergi og geymslu. Svalir í suðurátt með fallegu útsýni. Eignin afhendist í júlí 2026 fullbúin en án gólfefna á alrými og herbergjum en flísar eru á forstofu, baðherbergi og þvottahúsi.

Smelltu hér til að fá söluyfirlit sent strax.

Nánari lýsing:
Forstofa er með flísum á gólfi og fataskáp.
Stofa er rúmgóð og í opnu rými með eldhúsi. Úr stofu er gengið út á svalir í suðurátt með fallegu útsýni.
Eldhús er með fallegri innréttingu frá GKS. Í innréttingu er ofn, spanhelluborð, háfur, innbyggð uppþvottavél og innbyggður ísskápur.
Svefnherbergin eru 2 og er hjónaherbergið með fataskápum.
Baðherbergi er flísalagt og með sturtu, handklæðaofni, vegghengdu salerni og innréttingu með skolvaski.
Þvottahús er með flísum á gólfi og innréttingu með vaski. Í innréttingu er gert ráð fyrir þvottavél og þurrkara
Sérgeymsla er í sameign. Er skráð 8,0 m2

Íbúðinni fylgir bílstæði í bílageymslu. Einnig fylgir hlutdeild að sameiginlegri vagna- og hjólageymslu.
 
Annað: Úugata 6-8 eru tvö 2ja hæða fjölbýlishús með 10 íbúðum hvor ásamt bílakjallara. Húsbyggjandi og aðalverktaki er Gerð ehf. Húsin eru staðsteypt og klædd að utan með mismunandi klæðningarefni í mismunandi litum til þess að tryggja uppbrot og fjölbreytileika. Lóð verður fullfrágengin eigi síðar en við afsal. Með hverri íbúð fylgir bílastæði í bílageymslu en heildarfjöldi bílstæða á lóð og bílakjallara eru 48 stæði, þar af 4 stæði fyrir hreyfihamlaða. Gönguleið að húsi verður hellulögð með snjóbræðslu. Íbúðirnar afhendast fullbúnar en án gólfefna í alrými og herbergjum. Flísar frá Álfaborg á baðherbergjum, forstofum og þvottahúsum. Heimilistæki eru frá Siemens. Sjá nánari upplýsingar í skilalýsingu seljanda.

Ath. Innimyndir eru teknar úr 3ja herbergja íbúð á jarðhæð.

Verð kr. 86.800.000,-



Um skoðunar- og aðgæsluskyldu:
Í lögum um fasteignakaup nr. 40/2002 er kveðið á um ríka skoðunarskyldu kaupenda á fasteignum. Fasteignasala Mosfellsbæjar skorar því á væntanlega kaupendur að kynna sér vel ástand fasteigna fyrir kauptilboðsgerð og leita til þar til bærra sérfræðinga um nánari skoðun ef með þarf.

Forsendur söluyfirlits:
Söluyfirlit er samið af fasteignasala í samræmi við ákvæði laga nr. 70/2015. Þær upplýsingar sem fram koma í söluyfirliti þessu eru sóttar í opinberar skrár, til seljanda sjálfs og eftir atvikum til húsfélags. Seljandi veitir upplýsingar um eign í samræmi við upplýsingaskyldu laga um fasteignakaup nr. 40/2002. Fasteignasali sannreynir að þær upplýsingar séu réttar með sjónskoðun á eigninni.
Fasteignasali getur ekki fullyrt um ástand og eiginleika þeirra hluta fasteigna sem ekki eru aðgengilegir og sjást ekki berum augum, t.d. lagnir, dren, skólp og þak.

Gjöld sem kaupandi þarf að greiða vegna kaupa:
1. Stimpilgjald af kaupsamningi sem er hlutfall af fasteignamati. Stimpilgjald er 0,8% fyrir einstaklinga (0,4% við fyrstu kaup) og 1,6% fyrir lögaðila.
2. Þinglýsingargjald af kaupsamningi, veðskuldabréfum, veðleyfum o.fl. Þinglýsingargjald er kr. 3.800,- fyrir hvert skjal.
3. Lántökugjald lánastofnunar - er skv. gjaldskrá viðkomandi lánastofnunar.
4. Umsýslugjald til fasteignasölu skv. kauptilboði.
5. Þegar um nýbyggingu er að ræða greiðir kaupandi skipulagsgjald, 0,3% af endanlegu brunabótamáti, þegar það er lagt á af viðkomandi sveitarfélagi.

img
Svanþór Einarsson
Lögg.fasteignasali innan félags fasteignasala
Fasteignasala Mosfellsbæjar
Þverholti 2, 270 Mosfellsbæ
Fasteignasala Mosfellsbæjar

Fasteignasala Mosfellsbæjar

Þverholti 2, 270 Mosfellsbæ
phone
img

Svanþór Einarsson

Þverholti 2, 270 Mosfellsbæ
Fasteignasala Mosfellsbæjar

Fasteignasala Mosfellsbæjar

Þverholti 2, 270 Mosfellsbæ
phone

Svanþór Einarsson

Þverholti 2, 270 Mosfellsbæ