Upplýsingar
Byggt 2025
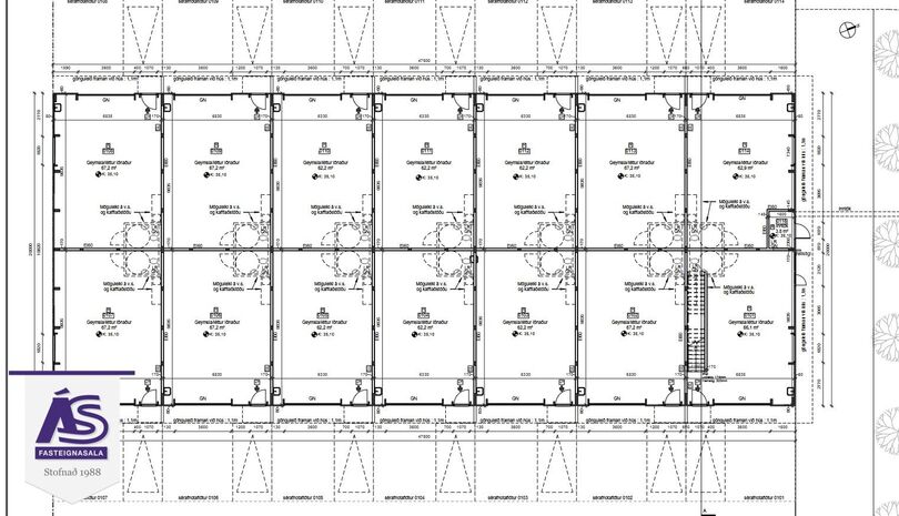
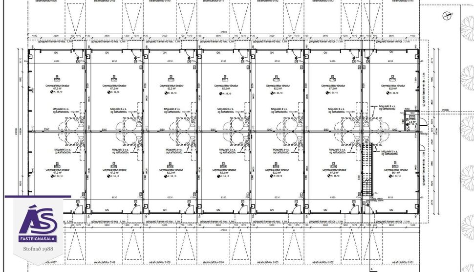
70 m²
2 herb.
1 baðherb.
Lýsing
Nýlegt geymslubil við Straumhellu 5, Hafnarfirði.
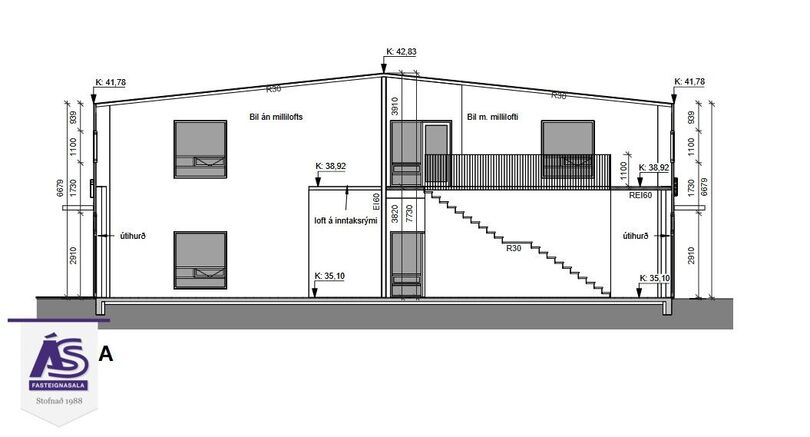
Eignin er skráð 70 fm en búið er að setja upp c.a. 70 fm óskráð milliloft svo bilið er í raun c.a. 140 fm, einnig er búið að setja upp salerni á neðri hæð og mála gólf.
Lofthæð: c.a. 6,5m við útvegg til ca. 7,5m við mæni.
Verktaki: KB Verk ehf.
Engin vsk-kvöð er á húsnæðinu.
Tilbúið til afhendingar í Apríl 2026.
- Innkeyrsluhurðir frá Hörmann með rafmagnsopnun, stærð: 325x360(BxH).
- Gluggar fyrir ofan innkeyrsluhurð.
- Hitun húsnæðisins verður með gólfhita.
- Sameiginlegur hitavatnsmælir í inntaksklefa.
- Rafmagn (utanáliggjandi) fullfrágengið skv. teikningum og skilast með góðum iðnaðarlömpum í lofti og útikastara fyrir ofan iðnaðarhurð.
- Sér rafmagnsmælir og rafmagnstafla fyrir hvert bil.
- Þriggja fasa tengil og 16A tengil undir töflu.
- Ræstivaskur
- Lóð verður fullfrágengin með malbikuðu bílaplani, sjá afstöðumynd.
- Burðargrind hússins er úr límtré, klædd með PIR Quad Core samlokueiningum frá Kingspan.
- Byggt á staðsteyptum sökklum og plötu.
- Veggeiningar eru 80mm á þykkt með microrib áferð. Málningarhúð á veggeiningum er valin sérstaklega til að verjast betur gegn UV-geislun (upplitun) og veðrun.
- Húsið skilast með vönduðum ál og/eða ál-timbur gluggum og hurðum.
- Þak er byggt upp með 100mm þykkum PIR Quad Core samlokueiningum frá Kingspan.
- Innveggir eru gerðir úr OSB krossvið/spónaplötum í innralagi klætt með gifsi, með steinullareinangrun á milli. Tilbúnir til spörslunar og málningu.
- Gólf 1.hæðar eru járnbent, staðsteypt og vélslípuð.
Allar nánari upplýsingar veitir Arnór Daði Eiríksson löggiltur fasteignasali s. 777-0939 / [email protected]
Ás fasteignasala er rótgróið fyrirtæki sem hefur veitt alla almenna þjónustu í fasteignaviðskiptum frá árinu 1988.
www.facebook.com/asfasteignasala
www.instagram.com/as_fasteignasala
www.as.is
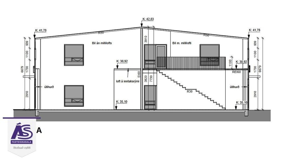
Eignin er skráð 70 fm en búið er að setja upp c.a. 70 fm óskráð milliloft svo bilið er í raun c.a. 140 fm, einnig er búið að setja upp salerni á neðri hæð og mála gólf.
Lofthæð: c.a. 6,5m við útvegg til ca. 7,5m við mæni.
Verktaki: KB Verk ehf.
Engin vsk-kvöð er á húsnæðinu.
Tilbúið til afhendingar í Apríl 2026.
- Innkeyrsluhurðir frá Hörmann með rafmagnsopnun, stærð: 325x360(BxH).
- Gluggar fyrir ofan innkeyrsluhurð.
- Hitun húsnæðisins verður með gólfhita.
- Sameiginlegur hitavatnsmælir í inntaksklefa.
- Rafmagn (utanáliggjandi) fullfrágengið skv. teikningum og skilast með góðum iðnaðarlömpum í lofti og útikastara fyrir ofan iðnaðarhurð.
- Sér rafmagnsmælir og rafmagnstafla fyrir hvert bil.
- Þriggja fasa tengil og 16A tengil undir töflu.
- Ræstivaskur
- Lóð verður fullfrágengin með malbikuðu bílaplani, sjá afstöðumynd.
- Burðargrind hússins er úr límtré, klædd með PIR Quad Core samlokueiningum frá Kingspan.
- Byggt á staðsteyptum sökklum og plötu.
- Veggeiningar eru 80mm á þykkt með microrib áferð. Málningarhúð á veggeiningum er valin sérstaklega til að verjast betur gegn UV-geislun (upplitun) og veðrun.
- Húsið skilast með vönduðum ál og/eða ál-timbur gluggum og hurðum.
- Þak er byggt upp með 100mm þykkum PIR Quad Core samlokueiningum frá Kingspan.
- Innveggir eru gerðir úr OSB krossvið/spónaplötum í innralagi klætt með gifsi, með steinullareinangrun á milli. Tilbúnir til spörslunar og málningu.
- Gólf 1.hæðar eru járnbent, staðsteypt og vélslípuð.
Allar nánari upplýsingar veitir Arnór Daði Eiríksson löggiltur fasteignasali s. 777-0939 / [email protected]
Ás fasteignasala er rótgróið fyrirtæki sem hefur veitt alla almenna þjónustu í fasteignaviðskiptum frá árinu 1988.
www.facebook.com/asfasteignasala
www.instagram.com/as_fasteignasala
www.as.is