Upplýsingar
Byggt 2025
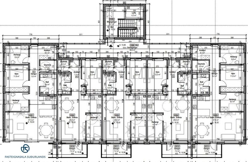
74,4 m²
3 herb.
1 baðherb.
2 svefnh.
Þvottahús
Lyfta
Lýsing
Fasteignasala Suðurlands (s 483 3424) kynnir: Sambyggð 20, íbúð 0304, Þorlákshöfn. Ný, falleg, 74,4m2 miðjuíbúð á 2.hæð með 2 stórum svefnherbergjum og góðri geymslu innan eignar. Íbúðin er með sér inngang af svalagang með gleri. Úr stofunni er utangengt á góðar svalir með gleri sem snúa í vestur.
HLUTDEILDARLÁN Í BOÐI.
Húsinu fylgir stór, lokuð hjóla- og vagnageymsla.
26, malbikuð, bílastæði eru við húsið, þar af 2 fyrir hreyfihamlaða, og reiðhjólaskýli.
2 rafhleðslustöðvar verða við húsið.
Fyrir framan húsið eru hellulagðar stéttar með snjóbræðslukerfi.
** Hægt er að bóka skoðun og fá allar nánari upplýsingar í síma 483 3424 og á [email protected] **
Eignin telur:
* Rúmgóða forstofu með stórum skáp.
* Glæsilega stofu og eldhús í opnu rými. Úr stofunni er utangengt á svalir með gleri sem snúa í vestur.
Í eldhúsi er falleg, sérsmíðuð innrétting frá Selós, vönduð AEG heimilistæki með sjálfhreinsandi ofni, spanhelluborði, viftu, innbyggðri uppþvottavél og kæli-/frystiskáp.
* 2 stór svefnherbergi. Góðir fataskápar eru í öllum herbergjum.
* Glæsilegt baðherbergi með sérsmíðaðri innréttingu frá Selós, upphengdu wc og sturta með sturtugleri og flísalögðum botn. Á gólfi og 2 veggjum eru vandaðar 60x60 flísar gráar að lit.
* Gert er ráð fyrir þvottavél og þurrkara (barkalausum) á baðherberginu á snyrtilegan hátt.
* Á öllum gólfum, nema baðherbergi, er eikar vínyl parket af vandaðri gerð. Innihurðar eru hvítar, yfirfelldar, með svörtum hurðarhúnum.
* Við húsið er stór, sameiginleg, lokuð hjóla- og vagnageymsla.
* Gangstéttar næst húsi og gangstígar á lóð verða steypt eða hellulagt, snjóbræðslulögn í gangstíg framan við húsið og að sorpgeymslu.
Að öðru leyti verður lóð frágengin með þökum.
FASTEIGNASALA SUÐURLANDS HEFUR VEITT VANDAÐA OG GÓÐA ÞJÓNUSTU SÍÐAN 2003 !
Fasteignasala Suðurlands, Unubakka 3b, Þorlákshöfn.
Heimasíða fasteignasölunnar: https://www.eignin.is/
Í Þorlákshöfn er þjónustustig mjög gott - hagnýtar upplýsingar:
Fasteignasala Suðurlands (s 483 3424) kynnir: Sambyggð 20, íbúð 0302, Þorlákshöfn. Ný, falleg, 74,4m2 miðjuíbúð á 2.hæð með 2 stórum svefnherbergjum og góðri geymslu innan eignar. Íbúðin er með sér inngang af svalagang með gleri. Úr stofunni er utangengt á góðar svalir með gleri sem snúa í vestur.
HLUTDEILDARLÁN Í BOÐI.
Húsinu fylgir stór, lokuð hjóla- og vagnageymsla.
26, malbikuð, bílastæði eru við húsið, þar af 2 fyrir hreyfihamlaða, og reiðhjólaskýli.
2 rafhleðslustöðvar verða við húsið.
Fyrir framan húsið eru hellulagðar stéttar með snjóbræðslukerfi.
** Hægt er að bóka skoðun og fá allar nánari upplýsingar í síma 483 3424 og á [email protected] **
Eignin telur:
* Rúmgóða forstofu með stórum skáp.
* Glæsilega stofu og eldhús í opnu rými. Úr stofunni er utangengt á svalir með gleri sem snúa í vestur.
Í eldhúsi er falleg, sérsmíðuð innrétting frá Selós, vönduð AEG heimilistæki með sjálfhreinsandi ofni, spanhelluborði, viftu, innbyggðri uppþvottavél og kæli-/frystiskáp.
* 2 stór svefnherbergi. Góðir fataskápar eru í öllum herbergjum.
* Glæsilegt baðherbergi með sérsmíðaðri innréttingu frá Selós, upphengdu wc og sturta með sturtugleri og flísalögðum botn. Á gólfi og 2 veggjum eru vandaðar 60x60 flísar gráar að lit.
* Gert er ráð fyrir þvottavél og þurrkara (barkalausum) á baðherberginu á snyrtilegan hátt.
* Á öllum gólfum, nema baðherbergi, er eikar vínyl parket af vandaðri gerð. Innihurðar eru hvítar, yfirfelldar, með svörtum hurðarhúnum.
* Við húsið er stór, sameiginleg, lokuð hjóla- og vagnageymsla.
* Gangstéttar næst húsi og gangstígar á lóð verða steypt eða hellulagt, snjóbræðslulögn í gangstíg framan við húsið og að sorpgeymslu.
Að öðru leyti verður lóð frágengin með þökum.
FASTEIGNASALA SUÐURLANDS HEFUR VEITT VANDAÐA OG GÓÐA ÞJÓNUSTU SÍÐAN 2003 !
Fasteignasala Suðurlands, Unubakka 3b, Þorlákshöfn.
Heimasíða fasteignasölunnar: https://www.eignin.is/
Í Þorlákshöfn er þjónustustig mjög gott - hagnýtar upplýsingar:
HLUTDEILDARLÁN Í BOÐI.
Húsinu fylgir stór, lokuð hjóla- og vagnageymsla.
26, malbikuð, bílastæði eru við húsið, þar af 2 fyrir hreyfihamlaða, og reiðhjólaskýli.
2 rafhleðslustöðvar verða við húsið.
Fyrir framan húsið eru hellulagðar stéttar með snjóbræðslukerfi.
** Hægt er að bóka skoðun og fá allar nánari upplýsingar í síma 483 3424 og á [email protected] **
Eignin telur:
* Rúmgóða forstofu með stórum skáp.
* Glæsilega stofu og eldhús í opnu rými. Úr stofunni er utangengt á svalir með gleri sem snúa í vestur.
Í eldhúsi er falleg, sérsmíðuð innrétting frá Selós, vönduð AEG heimilistæki með sjálfhreinsandi ofni, spanhelluborði, viftu, innbyggðri uppþvottavél og kæli-/frystiskáp.
* 2 stór svefnherbergi. Góðir fataskápar eru í öllum herbergjum.
* Glæsilegt baðherbergi með sérsmíðaðri innréttingu frá Selós, upphengdu wc og sturta með sturtugleri og flísalögðum botn. Á gólfi og 2 veggjum eru vandaðar 60x60 flísar gráar að lit.
* Gert er ráð fyrir þvottavél og þurrkara (barkalausum) á baðherberginu á snyrtilegan hátt.
* Á öllum gólfum, nema baðherbergi, er eikar vínyl parket af vandaðri gerð. Innihurðar eru hvítar, yfirfelldar, með svörtum hurðarhúnum.
* Við húsið er stór, sameiginleg, lokuð hjóla- og vagnageymsla.
* Gangstéttar næst húsi og gangstígar á lóð verða steypt eða hellulagt, snjóbræðslulögn í gangstíg framan við húsið og að sorpgeymslu.
Að öðru leyti verður lóð frágengin með þökum.
FASTEIGNASALA SUÐURLANDS HEFUR VEITT VANDAÐA OG GÓÐA ÞJÓNUSTU SÍÐAN 2003 !
Fasteignasala Suðurlands, Unubakka 3b, Þorlákshöfn.
Heimasíða fasteignasölunnar: https://www.eignin.is/
Í Þorlákshöfn er þjónustustig mjög gott - hagnýtar upplýsingar:
Fasteignasala Suðurlands (s 483 3424) kynnir: Sambyggð 20, íbúð 0302, Þorlákshöfn. Ný, falleg, 74,4m2 miðjuíbúð á 2.hæð með 2 stórum svefnherbergjum og góðri geymslu innan eignar. Íbúðin er með sér inngang af svalagang með gleri. Úr stofunni er utangengt á góðar svalir með gleri sem snúa í vestur.
HLUTDEILDARLÁN Í BOÐI.
Húsinu fylgir stór, lokuð hjóla- og vagnageymsla.
26, malbikuð, bílastæði eru við húsið, þar af 2 fyrir hreyfihamlaða, og reiðhjólaskýli.
2 rafhleðslustöðvar verða við húsið.
Fyrir framan húsið eru hellulagðar stéttar með snjóbræðslukerfi.
** Hægt er að bóka skoðun og fá allar nánari upplýsingar í síma 483 3424 og á [email protected] **
Eignin telur:
* Rúmgóða forstofu með stórum skáp.
* Glæsilega stofu og eldhús í opnu rými. Úr stofunni er utangengt á svalir með gleri sem snúa í vestur.
Í eldhúsi er falleg, sérsmíðuð innrétting frá Selós, vönduð AEG heimilistæki með sjálfhreinsandi ofni, spanhelluborði, viftu, innbyggðri uppþvottavél og kæli-/frystiskáp.
* 2 stór svefnherbergi. Góðir fataskápar eru í öllum herbergjum.
* Glæsilegt baðherbergi með sérsmíðaðri innréttingu frá Selós, upphengdu wc og sturta með sturtugleri og flísalögðum botn. Á gólfi og 2 veggjum eru vandaðar 60x60 flísar gráar að lit.
* Gert er ráð fyrir þvottavél og þurrkara (barkalausum) á baðherberginu á snyrtilegan hátt.
* Á öllum gólfum, nema baðherbergi, er eikar vínyl parket af vandaðri gerð. Innihurðar eru hvítar, yfirfelldar, með svörtum hurðarhúnum.
* Við húsið er stór, sameiginleg, lokuð hjóla- og vagnageymsla.
* Gangstéttar næst húsi og gangstígar á lóð verða steypt eða hellulagt, snjóbræðslulögn í gangstíg framan við húsið og að sorpgeymslu.
Að öðru leyti verður lóð frágengin með þökum.
FASTEIGNASALA SUÐURLANDS HEFUR VEITT VANDAÐA OG GÓÐA ÞJÓNUSTU SÍÐAN 2003 !
Fasteignasala Suðurlands, Unubakka 3b, Þorlákshöfn.
Heimasíða fasteignasölunnar: https://www.eignin.is/
Í Þorlákshöfn er þjónustustig mjög gott - hagnýtar upplýsingar: