Upplýsingar
Verðsaga
Byggt 2005
87 m²
4 herb.
1 baðherb.
3 svefnh.
Þvottahús
Lýsing
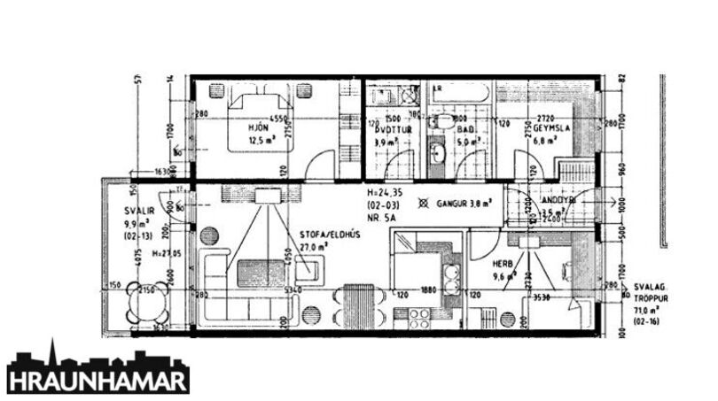
Hraunhamar fasteignasala kynnir: Fallega og vel skipulagða 4ra herbergja íbúð á 2. hæð í góðu fjölbýli á þessum rólega stað á Völlunum í göngufæri við leik- og grunnskóla. Sérinngangur af svölum. Rúmgóðar suðursvalir. Næg bílastæði.
Eignin er skráð 87 fm en þar af er 4,8 fm geymsla.
Nánari lýsing eignar:
Sérinngangur af svölum.
Flísalögð forstofa með fataskáp.
Vinnuherbergi/geymsla á teikningu.
Hol/gangur.
Góð innrétting í eldhúsi með nýjum hvítum frontum, nýir efriskápar og nýjar skúffur í neðriskápum. Gott vinnupláss. Nýr bakaraofn og helluborð. Háfur yfir helluborði. Tengi fyrir uppþvottavél.
Björt borðstofa og stofa þar sem útgengt er á rúmgóðar suður svalir.
Hjónaherbergi með nýlegum fataskáp.
Rúmgott barnaherbergi með nýlegum fatakáp.
Gott þvottaherbergi með innréttingu og nýjum skolvask.
Flísalagt baðherbergi með fínni innréttingu og baðkari með sturtuaðstöðu.
Harðparket á gólfum.
Nýjar gardínubrautir ásamt gardínukörmum frá Álnabæ í stofu, hjónaherbergi og barnaherbergi. Búið er að þræða netsnúrur í stofu og vinnuherbergi.
Sér geymsla í sameign auk snyrtileg hefðbundin sameign.
Sameiginlegur garður með leiktækjum.
Góð aðkoma og næg bílastæði.
Þetta er áhugaverð eign sem vert er að skoða.
Nánari upplýsingar veitir Glódís Helgadóttir löggiltur fasteignasali í s. 659-0510 eða netfangið [email protected]
Skoðunarskylda:
Í lögum um fasteignakaup nr. 40/2002 er kveðið á um ríka skoðunarskyldu kaupenda á fasteignum. Hraunhamar fasteignasala vill benda væntanlegum kaupendum á að kynna sér vel ástand fasteigna fyrir kauptilboðsgerð og ef þurfa þykir að leita til sérfræðinga fyrir nánari ástandsskoðun.
Gjöld sem kaupandi þarf að standa straum af vegna kaupanna:
1. Stimpilgjald af kaupsamningi, fyrstu kaup (0,4%), almenn kaup (0,8%), lögaðilar (1,6%) af heildarfasteignamati.
2. Þinglýsingargjald af kaupsamningi, veðskuldabréfi, mögulegu veðleyfi o.fl. – 3.800 kr. af hverju skjali.
3. Lántökugjald lánastofnunar er skv. verðskrá viðkomandi lánastofnunar.
4. Umsýslugjald til fasteignasölu skv. þjónustusamningi
Hraunhamar er elsta fasteignasala Hafnarfjarðar, stofnuð 1983.
Hraunhamar, í fararbroddi í rúm 40 ár. – Hraunhamar.is
Smelltu hér til að fá frítt söluverðmat.
Smelltu hér til að fá söluyfirlit sent strax.
Eignin er skráð 87 fm en þar af er 4,8 fm geymsla.
Nánari lýsing eignar:
Sérinngangur af svölum.
Flísalögð forstofa með fataskáp.
Vinnuherbergi/geymsla á teikningu.
Hol/gangur.
Góð innrétting í eldhúsi með nýjum hvítum frontum, nýir efriskápar og nýjar skúffur í neðriskápum. Gott vinnupláss. Nýr bakaraofn og helluborð. Háfur yfir helluborði. Tengi fyrir uppþvottavél.
Björt borðstofa og stofa þar sem útgengt er á rúmgóðar suður svalir.
Hjónaherbergi með nýlegum fataskáp.
Rúmgott barnaherbergi með nýlegum fatakáp.
Gott þvottaherbergi með innréttingu og nýjum skolvask.
Flísalagt baðherbergi með fínni innréttingu og baðkari með sturtuaðstöðu.
Harðparket á gólfum.
Nýjar gardínubrautir ásamt gardínukörmum frá Álnabæ í stofu, hjónaherbergi og barnaherbergi. Búið er að þræða netsnúrur í stofu og vinnuherbergi.
Sér geymsla í sameign auk snyrtileg hefðbundin sameign.
Sameiginlegur garður með leiktækjum.
Góð aðkoma og næg bílastæði.
Þetta er áhugaverð eign sem vert er að skoða.
Nánari upplýsingar veitir Glódís Helgadóttir löggiltur fasteignasali í s. 659-0510 eða netfangið [email protected]
Skoðunarskylda:
Í lögum um fasteignakaup nr. 40/2002 er kveðið á um ríka skoðunarskyldu kaupenda á fasteignum. Hraunhamar fasteignasala vill benda væntanlegum kaupendum á að kynna sér vel ástand fasteigna fyrir kauptilboðsgerð og ef þurfa þykir að leita til sérfræðinga fyrir nánari ástandsskoðun.
Gjöld sem kaupandi þarf að standa straum af vegna kaupanna:
1. Stimpilgjald af kaupsamningi, fyrstu kaup (0,4%), almenn kaup (0,8%), lögaðilar (1,6%) af heildarfasteignamati.
2. Þinglýsingargjald af kaupsamningi, veðskuldabréfi, mögulegu veðleyfi o.fl. – 3.800 kr. af hverju skjali.
3. Lántökugjald lánastofnunar er skv. verðskrá viðkomandi lánastofnunar.
4. Umsýslugjald til fasteignasölu skv. þjónustusamningi
Hraunhamar er elsta fasteignasala Hafnarfjarðar, stofnuð 1983.
Hraunhamar, í fararbroddi í rúm 40 ár. – Hraunhamar.is
Smelltu hér til að fá frítt söluverðmat.
Smelltu hér til að fá söluyfirlit sent strax.
Ár
Fasteignamat
Kaupverð
Stærð
Fermetraverð
21. jún. 2024
58.450.000 kr.
62.000.000 kr.
10203 m²
6.077 kr.
4. maí. 2018
29.950.000 kr.
37.500.000 kr.
87 m²
431.034 kr.
15. júl. 2013
19.100.000 kr.
20.719.000 kr.
87 m²
238.149 kr.
Byggt á upplýsingum úr Þjóðskrá Íslands frá 2006-2026