Upplýsingar
Verðsaga
Byggt 2005
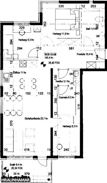
105,4 m²
4 herb.
1 baðherb.
3 svefnh.
Þvottahús
Sameiginl. inngangur
Lýsing
Hraunhamar fasteignasala kynnir: Fallega fjögurra herbergja endaíbúð á þriðju hæð (efsta hæð) í góðu litlu fjólbýli, vel staðsett í Vallarhverfinu í göngufjarlægð við skóla og leikskóla.
Íbúðin er 105,4 fm með geymslu.
Eignin er öll nýlega uppgerð bæði innréttingar og gólfefni.
Nánari lýsing:
Flísalögð forstofa með góðum skápum.
Gott opið alrými með eldhúsi, borðstofu og stofu.
Eldhús með fallegri hvítri, innrétttingu og stórri eyja með helluborði.
Rúmgóð stofa með glugga á tvo vegu. Þaðan er útgengt á rúmgóðar svalir sem snúa í suð-austur.
Rúmgott hjónaherbergi með fataskápum.
Tvö svefnherbergi með skápum.
Baðherbergi með sturtuklefa, baðkari og fallegri innnréttingu.
Þvottahús með innréttingu og geymsla inn af þvottahúsi.
Gólfefni eru parket og flísar.
Innbyggður ísskápur, uppþvottavél og vínkælir fylgja.
Einstaklega falleg nýlega uppgerð 4ra herbergja endaíbúð á góðum stað á Völlunum. Stutt í skóla og leikskóla. Snyrtileg sameign, húsið er klætt að utan.
Falleg eign sem vert er að skoða.
Nánari upplýsingar veitir Hlynur Halldórsson löggiltur fasteignasali s.698-2603, [email protected]
Skoðunarskylda:
Í lögum um fasteignakaup nr. 40/2002 er kveðið á um ríka skoðunarskyldu kaupenda á fasteignum. Hraunhamar fasteignasala vill benda væntanlegum kaupendum á að kynna sér vel ástand fasteigna fyrir kauptilboðsgerð og ef þurfa þykir að leita til sérfræðinga fyrir nánari ástandsskoðun.
Gjöld sem kaupandi þarf að standa straum af vegna kaupanna:
1. Stimpilgjald af kaupsamningi, fyrstu kaup (0,4%), almenn kaup (0,8%), lögaðilar (1,6%) af heildarfasteignamati.
2. Þinglýsingargjald af kaupsamningi, veðskuldabréfi, mögulegu veðleyfi o.fl. – 3.800 kr. af hverju skjali.
3. Lántökugjald lánastofnunar er skv. verðskrá viðkomandi lánastofnunar.
4. Umsýslugjald til fasteignasölu skv. þjónustusamningi
Hraunhamar er elsta fasteignasala Hafnarfjarðar, stofnuð 1983.
Hraunhamar, í fararbroddi í rúm 40 ár. – Hraunhamar.is
Smelltu hér til að fá frítt söluverðmat.
Íbúðin er 105,4 fm með geymslu.
Eignin er öll nýlega uppgerð bæði innréttingar og gólfefni.
Nánari lýsing:
Flísalögð forstofa með góðum skápum.
Gott opið alrými með eldhúsi, borðstofu og stofu.
Eldhús með fallegri hvítri, innrétttingu og stórri eyja með helluborði.
Rúmgóð stofa með glugga á tvo vegu. Þaðan er útgengt á rúmgóðar svalir sem snúa í suð-austur.
Rúmgott hjónaherbergi með fataskápum.
Tvö svefnherbergi með skápum.
Baðherbergi með sturtuklefa, baðkari og fallegri innnréttingu.
Þvottahús með innréttingu og geymsla inn af þvottahúsi.
Gólfefni eru parket og flísar.
Innbyggður ísskápur, uppþvottavél og vínkælir fylgja.
Einstaklega falleg nýlega uppgerð 4ra herbergja endaíbúð á góðum stað á Völlunum. Stutt í skóla og leikskóla. Snyrtileg sameign, húsið er klætt að utan.
Falleg eign sem vert er að skoða.
Nánari upplýsingar veitir Hlynur Halldórsson löggiltur fasteignasali s.698-2603, [email protected]
Skoðunarskylda:
Í lögum um fasteignakaup nr. 40/2002 er kveðið á um ríka skoðunarskyldu kaupenda á fasteignum. Hraunhamar fasteignasala vill benda væntanlegum kaupendum á að kynna sér vel ástand fasteigna fyrir kauptilboðsgerð og ef þurfa þykir að leita til sérfræðinga fyrir nánari ástandsskoðun.
Gjöld sem kaupandi þarf að standa straum af vegna kaupanna:
1. Stimpilgjald af kaupsamningi, fyrstu kaup (0,4%), almenn kaup (0,8%), lögaðilar (1,6%) af heildarfasteignamati.
2. Þinglýsingargjald af kaupsamningi, veðskuldabréfi, mögulegu veðleyfi o.fl. – 3.800 kr. af hverju skjali.
3. Lántökugjald lánastofnunar er skv. verðskrá viðkomandi lánastofnunar.
4. Umsýslugjald til fasteignasölu skv. þjónustusamningi
Hraunhamar er elsta fasteignasala Hafnarfjarðar, stofnuð 1983.
Hraunhamar, í fararbroddi í rúm 40 ár. – Hraunhamar.is
Smelltu hér til að fá frítt söluverðmat.
Ár
Fasteignamat
Kaupverð
Stærð
Fermetraverð
28. ágú. 2024
67.600.000 kr.
75.500.000 kr.
10306 m²
7.326 kr.
12. maí. 2017
29.900.000 kr.
41.600.000 kr.
105.4 m²
394.687 kr.
27. ágú. 2014
23.900.000 kr.
27.700.000 kr.
105.4 m²
262.808 kr.
22. jún. 2007
22.290.000 kr.
24.200.000 kr.
105.4 m²
229.602 kr.
Byggt á upplýsingum úr Þjóðskrá Íslands frá 2006-2026