Löggiltir fasteignasalar innan Félags fasteignasala:
Sverrir Kristinsson
Kjartan Hallgeirsson
Guðlaugur Ingi Guðlaugsson
Daði Hafþórsson
Gunnar Helgi Einarsson
Gunnar Bergmann Jónsson
Jenný Sandra Gunnarsdóttir
Upplýsingar
Verðsaga
svg
Byggt 1999
svg
179,4 m²
svg
6 herb.
svg
2 baðherb.
svg
4 svefnh.
svg
Bílskúr
svg
Sérinngangur
Opið hús: 2. apríl 2026 kl. 13:00 til 13:45

Opið hús: Eiðismýri 23, 170 Seltjarnarnes. Eignin verður sýnd fimmtudaginn 2. apríl 2026 milli kl. 13:00 og kl. 13:45.

Lýsing

Eignamiðlun kynnir:

Glæsilegt 179,4 fm parhús á tveimur hæðum með bílskúr á eftirsóttum stað á Seltjarnarnesi. Sérsmíðaðar innréttingar og vönduð tæki. Stórir gluggar og mikil lofthæð. Vel viðhaldið og töluvert endurnýjað hús sem vert er að skoða. Sér bílastæði beggja megin við húsið með snjóbræðslu. Suðvestur verönd og norðaustur svalir.

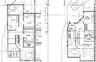
Samkvæmt fasteignaskrá er húsið skráð 179,4 fm, þar af er íbúðarrými skráð 152,1 fm og bílskúr 27,3 fm. Neðri hæð skiptist í anddyri, herbergi, gestasalerni, gang, eldhús, stofu og borðstofu. Á efri hæð eru þrjú svefnherbergi, baðherbergi og sjónvarpsstofa. Svefnherbergi neðri hæðar er þvottahús á teikningu og mögulegt að breyta til baka.

Nánari lýsing eignar: 
Komið er inn í flísalagt anddyri með vönduðum skápum sem ná upp í loft. Aukainngangur er í flísalagt herbergi neðri hæðar með fataskáp. Gestasalerni er flísalagt. Rúmgott og opið eldhús í björtu alrými með stórri eyju sem var endurnýjað árið 2020, steinn er á borðum. Vandaðar sérsmíðaðar innréttingar og vönduð tæki. Í stofu eru stórir glergluggar sem ná frá gólfi neðri hæðar upp í loft efri hæðar. Lofthæð er mikil. Frá borðstofu er tvöföld hurð út á snyrtilega timburverönd með skjólveggjum. Fallegt parket er á gólfum í alrýminu og á gangi. Upp á efri hæðina er vandaður parketlagður hringstigi. Á efri hæðinni er einnig mikil lofthæðin þar hún er mest um 3,8 m. Komið er upp í parketlagða sjónvarpsstofu. Þrjú svefnherbergi eru á hæðinni og eru þau öll parketlögð og með fataskápum. Útgengt er úr hjónaherberginu á stórar svalir. Baðherbergið er flísalagt og var endurnýjað árið 2024. Góð innrétting, mikil lofthæð og þakgluggi. Stór sturta með innbyggðum blöndunartækjum og hertu gleri. Innrétting er á baðherbergi fyrir þvottavél og þurrkara. Opið rými/sjónvarpsstofa á hæðinni væri hægt að stúka af og útbúa þannig aukaherbergi, en þannig er það á teikningu.
Bílskúr sem er sérstæður á lóð er snyrtilegur og með opnanlegum glugga. Fjarstýrð rafknúin bílskúrshurð og gönguhurð eru inn í skúrinn. Að utan er húsið að hluta klætt viðhaldsléttri álklæðningu og að hluta steinað. Skilpulag er aðeins beytt frá samþykktum teikningum.
 
Glæsileg eign sem vert er að skoða.
Nánari upplýsingar veitir Hilmar Þór Hafsteinsson Lögg. fasteignasali/leigumiðlari, í síma 824-9098, tölvupóstur [email protected] eða skrifstofa Eignamiðlunar í síma 588-9090

***
Ábyrg þjónusta í áratugi. Eignamiðlun var stofnuð 1957 og er elsta starfandi fasteignasala á Íslandi. Reynsla, heiðarleiki og þekking á fasteignamarkaðnum eru grunnur að farsælum viðskiptum. 

Eignamiðlun Grensásvegi 11, 108 Reykjavík - Opið frá kl. 9-17 mánudaga til fimmtudaga og 9-16 á föstudögum.

Heimasíða Eignamiðlunar

Eignamiðlun á Facebook

Eignamiðlun

Eignamiðlun

Grensásvegi 11, 108 Reykjavík
Ár
Fasteignamat
Kaupverð
Stærð
Fermetraverð
9. ágú. 2011
41.750.000 kr.
52.000.000 kr.
179.4 m²
289.855 kr.
29. jan. 2008
47.050.000 kr.
67.500.000 kr.
179.4 m²
376.254 kr.
Byggt á upplýsingum úr Þjóðskrá Íslands frá 2006-2026
Eignamiðlun

Eignamiðlun

Grensásvegi 11, 108 Reykjavík