Löggiltir fasteignasalar innan Félags fasteignasala:
Sigurður Maack Gunnarsson
Svanþór Einarsson
Theodór Emil Karlsson
Steingrímur Benediktsson
Vista
fjölbýlishús

Klapparhlíð 13

270 Mosfellsbær

76.900.000 kr.

878.857 þ.kr./m2
Fasteignanúmer

F2266706

Fasteignamat

70.400.000 kr.

Brunabótamat

44.450.000 kr.

Áhvílandi

0 kr.

Arion banki – Reikna lán
Upplýsingar
Verðsaga
svg
Byggt 2003
svg
87,5 m²
svg
3 herb.
svg
1 baðherb.
svg
2 svefnh.
svg
Þvottahús
svg
Sérinngangur
Opið hús: 8. apríl 2026 kl. 16:30 til 17:00

Lýsing

** Opið hús miðvikudaginn 8. apríl frá kl. 16:30 til 17:00 Klapparhlíð 13, íbúð 301 - Svanþór Einarsson, löggiltur fasteignasali - [email protected] eða 698-8555 -  Theodór Emil Karlsson, löggiltur fasteignasali - [email protected] eða 690-8040 - Steingrímur Benediktsson, löggiltur fasteignasali - [email protected] eða 862-9416 **
   
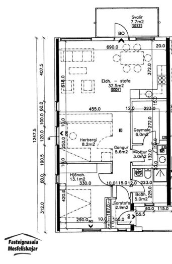
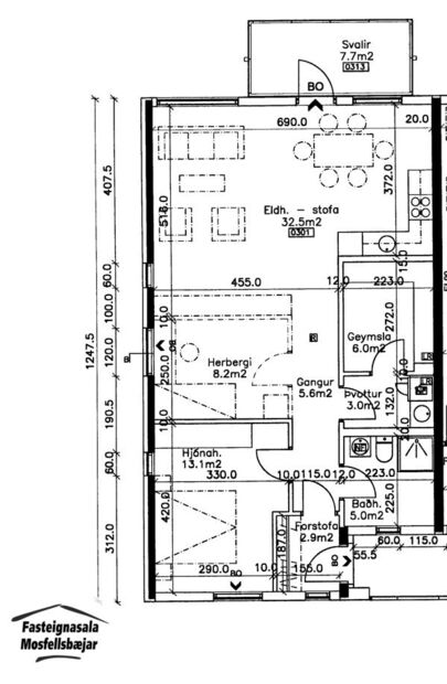
Fasteignasala Mosfellsbæjar kynnir: Falleg og björt 87,5 m2, 3ja herbergja endaíbúð með fallegu útsýni á efstu hæð með sérinngangi af svalagangi við Klapparhlíð 13 í Mosfellsbæ. Eignin skiptist í forstofu, gang, stofu, eldhús, tvö svefnherbergi, baðherbergi, þvottahús og geymslu innan íbúðar. Falleg og björt íbúð á vinsælum stað í Mosfellsbæ. Stutt er í skóla, leikskóla, sundlaug, líkamsræktarstöð, golfvöll og vinsæl útivistarsvæði.
Endurbætur á eigninni samkvæmt seljanda, nýlega var baðherbergið endurnýjað, sett ný innrétting í þvottahús og sett nýjar flísar á forstofu og þvottahús.

Smelltu hér til að fá söluyfirlit sent


Nánari lýsing eignar:
Forstofa er með flísum á gólfi.
Gangur er með parket á gólfi.
Stofa og eldhús er í opnu, björtu alrými með fallegu útsýni, parket á gólfi og útgengt út á rúmgóðar svalir í suðvesturátt með fallegu útsýni. Í eldhúsi er L-laga innrétting með búrskáp. Í innréttingu er ofn og helluborð. Gert er ráð fyrir uppþvottavél og ísskáp í innréttingu.
Svefnherbergi nr. 1 (hjónaherbergi) er með með fataskápum og parket á gólfi. Gluggar eru á tvo vegu.
Svefnerbergi nr. 2 er með fataskáp og parket á gólfi.
Baðherbergi er flísalagt í hólf og gólf, með vegghengdu salerni, innréttingu, sturtu og handklæðaofni. Opnanlegur gluggi er á baðherbergi.
Þvottahús með geymslu innaf, flísar á gólfi, innrétting og tengi fyrir þvottavél og þurrkara.
Geymsla innaf þvottahúsi með parket á gólfi, er í dag nýtt sem gluggalaust herbergi.

Hjóla- og vagnageymsla er í sameign á jarðhæð

Verð kr. 76.900.000



Um skoðunar- og aðgæsluskyldu:
Í lögum um fasteignakaup nr. 40/2002 er kveðið á um ríka skoðunarskyldu kaupenda á fasteignum. Fasteignasala Mosfellsbæjar skorar því á væntanlega kaupendur að kynna sér vel ástand fasteigna fyrir kauptilboðsgerð og leita til þar til bærra sérfræðinga um nánari skoðun ef með þarf.

Forsendur söluyfirlits:
Söluyfirlit er samið af fasteignasala í samræmi við ákvæði laga nr. 70/2015. Þær upplýsingar sem fram koma í söluyfirliti þessu eru sóttar í opinberar skrár, til seljanda sjálfs og eftir atvikum til húsfélags. Seljandi veitir upplýsingar um eign í samræmi við upplýsingaskyldu laga um fasteignakaup nr. 40/2002. Fasteignasali sannreynir að þær upplýsingar séu réttar með sjónskoðun á eigninni.
Fasteignasali getur ekki fullyrt um ástand og eiginleika þeirra hluta fasteigna sem ekki eru aðgengilegir og sjást ekki berum augum, t.d. lagnir, dren, skólp og þak.

Gjöld sem kaupandi þarf að greiða vegna kaupa:
1. Stimpilgjald af kaupsamningi sem er hlutfall af fasteignamati. Stimpilgjald er 0,8% fyrir einstaklinga (0,4% við fyrstu kaup) og 1,6% fyrir lögaðila.
2. Þinglýsingargjald af kaupsamningi, veðskuldabréfum, veðleyfum o.fl. Þinglýsingargjald er kr. 3.800,- fyrir hvert skjal.
3. Lántökugjald lánastofnunar - er skv. gjaldskrá viðkomandi lánastofnunar.
4. Umsýslugjald til fasteignasölu skv. kauptilboði.
5. Þegar um nýbyggingu er að ræða greiðir kaupandi skipulagsgjald, 0,3% af endanlegu brunabótamáti, þegar það er lagt á af viðkomandi sveitarfélagi.

img
Svanþór Einarsson
Lögg.fasteignasali innan félags fasteignasala
Fasteignasala Mosfellsbæjar
Þverholti 2, 270 Mosfellsbæ
Fasteignasala Mosfellsbæjar

Fasteignasala Mosfellsbæjar

Þverholti 2, 270 Mosfellsbæ
phone
img

Svanþór Einarsson

Þverholti 2, 270 Mosfellsbæ
Ár
Fasteignamat
Kaupverð
Stærð
Fermetraverð
18. des. 2023
57.700.000 kr.
66.900.000 kr.
87.5 m²
764.571 kr.
21. jan. 2022
46.850.000 kr.
59.000.000 kr.
87.5 m²
674.286 kr.
5. ágú. 2020
41.200.000 kr.
45.000.000 kr.
87.5 m²
514.286 kr.
Byggt á upplýsingum úr Þjóðskrá Íslands frá 2006-2026
Fasteignasala Mosfellsbæjar

Fasteignasala Mosfellsbæjar

Þverholti 2, 270 Mosfellsbæ
phone

Svanþór Einarsson

Þverholti 2, 270 Mosfellsbæ