Löggiltir fasteignasalar innan Félags fasteignasala:
Sigurður Maack Gunnarsson
Svanþór Einarsson
Theodór Emil Karlsson
Steingrímur Benediktsson
Vista
fjölbýlishús

Klapparhlíð 30

270 Mosfellsbær

89.900.000 kr.

798.401 þ.kr./m2
Fasteignanúmer

F2261177

Fasteignamat

81.450.000 kr.

Brunabótamat

55.250.000 kr.

Áhvílandi

0 kr.

Arion banki – Reikna lán
Upplýsingar
Verðsaga
svg
Byggt 2002
svg
112,6 m²
svg
5 herb.
svg
1 baðherb.
svg
4 svefnh.
svg
Þvottahús
svg
Sérinngangur
Opið hús: 9. apríl 2026 kl. 16:30 til 17:00

Lýsing

** Opið hús fimmtudaginn 9. apríl frá kl. 16:30 til 17:00 - Klapparhlíð 30, íbúð 201 - Svanþór Einarsson, löggiltur fasteignasali - [email protected] eða 698-8555 - Theodór Emil Karlsson, löggiltur fasteignasali - [email protected] eða 690-8040 - Steingrímur Benediktsson, löggiltur fasteignasali - [email protected] eða 862-9416 **  

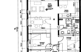
Fasteignasala Mosfellsbæjar kynnir: Mjög falleg og vel staðsett 5 herbergja endaíbúð með sérinngangi af svalagangi á 2. hæð við Klapparhlíð 30 í Mosfellsbæ. Fallegt útsýni er frá íbúðinni. Eignin skráð 112,6 m2, þar af íbúð 105,9 m2 og geymsla 6,7 m2.
Íbúðin skiptist í forstofu, gang, stofu, eldhús, fjögur svefnherbergi, baðherbergi og þvottahús. Sérgeymsla er í sameign. Um er að ræða fallega og bjarta íbúð á vinsælum stað í Mosfellsbæ. Stutt í skóla, leikskóla, sundlaug, líkamsræktarstöð, golfvöll og vinsæl útivistarsvæði.
Sameiginlegar hleðslustöðvar fyrir rafbíla eru á bílaplani


Smelltu hér til að fá söluyfirlit sent strax
 
Nánari lýsing:
Forstofa er með fatahengi og parketi á gólfi.
Gangur er með parketi á gólfi.
Stofa er með parketi í gólfi. Úr stofu er útgengt á svalir í suðvesturátt með fallegu útsýni.
Eldhús er með L-laga innréttingu og borðkrók, Í innréttingu er blástursofn, helluborð og Amerískur ísskápur. Gert er ráð fyrir uppþvottavél í innréttingu.  Parket á gólfi.
Svefnherbergi 1 (hjónaherbergi) er með parketi á gólfi og fataskápum.
Svefnherbergi 2 er með fataskáp og parketi á gólfi.
Svefnherbergi 3 er með parketi á gólfi.
Svefnherbergi 4 er inn af forstofu með parketi á gólfi og fataskáp.
Baðherbergi er flísalagt með innréttingu, handlaug, salerni og baðkari með sturtuaðstöðu. Innaf baðherbergi er þvottahús.
Þvottahús er með hillum og innréttingu fyrir þvottavél og þurkara. Flísar á gólfi.
Sérgeymsla með hillum er í sameign á hæðinni. Skráð 6,7 m2.
Sameiginleg hjóla- og vagnageymsla er á jarðhæð.

Verð kr. 89.900.000,-



Um skoðunar- og aðgæsluskyldu:
Í lögum um fasteignakaup nr. 40/2002 er kveðið á um ríka skoðunarskyldu kaupenda á fasteignum. Fasteignasala Mosfellsbæjar skorar því á væntanlega kaupendur að kynna sér vel ástand fasteigna fyrir kauptilboðsgerð og leita til þar til bærra sérfræðinga um nánari skoðun ef með þarf.

Forsendur söluyfirlits:
Söluyfirlit er samið af fasteignasala í samræmi við ákvæði laga nr. 70/2015. Þær upplýsingar sem fram koma í söluyfirliti þessu eru sóttar í opinberar skrár, til seljanda sjálfs og eftir atvikum til húsfélags. Seljandi veitir upplýsingar um eign í samræmi við upplýsingaskyldu laga um fasteignakaup nr. 40/2002. Fasteignasali sannreynir að þær upplýsingar séu réttar með sjónskoðun á eigninni.
Fasteignasali getur ekki fullyrt um ástand og eiginleika þeirra hluta fasteigna sem ekki eru aðgengilegir og sjást ekki berum augum, t.d. lagnir, dren, skólp og þak.

Gjöld sem kaupandi þarf að greiða vegna kaupa:
1. Stimpilgjald af kaupsamningi sem er hlutfall af fasteignamati. Stimpilgjald er 0,8% fyrir einstaklinga (0,4% við fyrstu kaup) og 1,6% fyrir lögaðila.
2. Þinglýsingargjald af kaupsamningi, veðskuldabréfum, veðleyfum o.fl. Þinglýsingargjald er kr. 3.800,- fyrir hvert skjal.
3. Lántökugjald lánastofnunar - er skv. gjaldskrá viðkomandi lánastofnunar.
4. Umsýslugjald til fasteignasölu skv. kauptilboði.
5. Þegar um nýbyggingu er að ræða greiðir kaupandi skipulagsgjald, 0,3% af endanlegu brunabótamáti, þegar það er lagt á af viðkomandi sveitarfélagi.

img
Svanþór Einarsson
Lögg.fasteignasali innan félags fasteignasala
Fasteignasala Mosfellsbæjar
Þverholti 2, 270 Mosfellsbæ
Fasteignasala Mosfellsbæjar

Fasteignasala Mosfellsbæjar

Þverholti 2, 270 Mosfellsbæ
phone
img

Svanþór Einarsson

Þverholti 2, 270 Mosfellsbæ
Ár
Fasteignamat
Kaupverð
Stærð
Fermetraverð
4. maí. 2022
54.000.000 kr.
77.000.000 kr.
112.6 m²
683.837 kr.
31. ágú. 2018
40.350.000 kr.
48.500.000 kr.
112.6 m²
430.728 kr.
28. sep. 2010
21.800.000 kr.
24.500.000 kr.
112.6 m²
217.584 kr.
Byggt á upplýsingum úr Þjóðskrá Íslands frá 2006-2026
Fasteignasala Mosfellsbæjar

Fasteignasala Mosfellsbæjar

Þverholti 2, 270 Mosfellsbæ
phone

Svanþór Einarsson

Þverholti 2, 270 Mosfellsbæ