Löggiltir fasteignasalar innan Félags fasteignasala:
Daníel Rúnar Elíasson
Upplýsingar
Verðsaga
svg
Byggt 2010
svg
139 m²
svg
5 herb.
svg
1 baðherb.
svg
3 svefnh.
svg
Þvottahús
svg
Sérinngangur

Lýsing

HÁKOT fasteignasala sími: 431-4045 / 899-4045 auglýsir 

* HÚSAFELL *  HVÍTÁRSKÓGUR 6 (115 m²) ásamt geymslu (24 m²) = 139 m² á  EIGNARLÓÐ (2.017 m²) í landi Húsafells, Borgarbyggð.

Heilsárs sumarhús í fallegu rjóðri í Húsafellsskógi til sölu


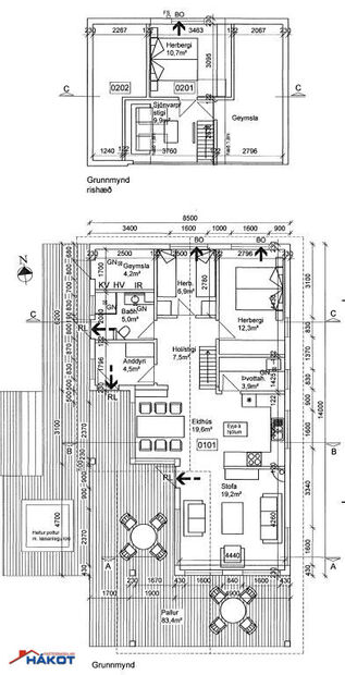
Forstofa (flísar).
Hol (flísar).
Eldhús (flísar, ljós viðarinnrétting, helluborð, ofn, uppþvottavél, ísskápur, opið að stofu).
Þvottahús (flísar, hvít/ljós viður innrétting, þvottavél og þurrkari, útgangur í norður).
Stofa/borðstofa (flísar, hátt til lofts, útgangur út á verönd).
Baðherbergi (flísar, ljósviðarinnrétting, sturta í gólf, útgangur út á verönd).
Svefnherbergi (flísar, fataskápur).
Herbergi (flísar).
Efri hæð:
Stigi upp frá holi.
Sjónvarpshol (parket, undir súð, rúmgott).
Herbergi (parket, undir súð).

Geymsla (málað gólf, inngönguhurð á hlið, flekahurð, vatn, rafmagn, gólfhiti, steypt plata):

ANNAÐ: Heitur pottur á stórri verönd (yfirbyggð að hluta). Gólfhiti en ofnar á efri hæð. Geymsla nýtt fyrir fjórhjól o.fl, möguleiki að breyta í gestahús. Allt innbú nema persónmulegir hlutir fylgja með.

Lóðarleiga kr. 0 (eignarlóð)
Fasteignagjöld kr. 193.720 (2023)
Hitaveita ca. kr. 12.300 pr. mán (2023)
Ljósleiðari kr. 8.500 pr. mán (2023)


Húsafell er meðal fjölsóttustu ferðamannastaða hér á landi, enda einstök náttúruperla í stórkostlegu landslagi. Veðursældin, skógurinn, heitar laugar og sú aðstaða og þjónusta fyrir ferðamenn, sem þar hefur verið komið upp á undanförnum árum, laðar til sín fjölda ferðamanna og dvalargesta á hverju ári.
Hótel, golfvöllur, sundlaug (tekin í gegn 2022/2023) og bistró í göngufæri. Nýtt og glæsilegt gönguleiðakort með merktum gönguleiðum.
 
Fjarlægð frá Reykjavík er 130 kílómetrar. Öll helsta þjónusta er á staðnum, hótel, veitingastaður, strandblakvöllur, sundlaug og þjónustumiðstöð. Á svæðinu eru sérlega fallegar gönguleiðir og stutt í náttúruperlur eins og Langjökul, Arnarvatnsheiði, Barnafossa og einnig er á staðnum 9 holu glæsilegur golfvöllur. Á sumrin er kvöldskemmtun með varðeld og lifandi tónlist á laugardagskvöldum. Á svæðinu er glæsilegt tjaldstæði með aðgangi að sturtum, salerni, þvottahúsi og rafmagni. Húsafell er paradís fyrir sumarbústaðaeigendur jafn á sumrin og veturnar. Stutt upp á jökul, góðar gönguleiðir, sundlaug, golfvöllur, veitingarstaður, verslun o.fl. 

Hægt er að skoða vefsíðu Húsafells á http://www.husafell.is, þar eru upplýsingar um svæðið. 

Allar upplýsingar í söluyfirlitinu eru fengnar hjá seljendum og úr opinberum gögnum.

Smelltu hér til að fylgja okkur á Facebook
Smelltu hér til að fylgja okkur á Instagram

************
Um skoðunar- og aðgæsluskyldu:
Í lögum um fasteignakaup nr. 40/2002 er kveðið á um ríka skoðunarskyldu kaupenda á fasteignum. Fasteignasalan Hákot bendir væntanlegum kaupendum á að kynna sér vel ástand fasteigna við skoðun og fyrir tilboðsgerð og ef þurfa þykir að leita til sérfræðinga um nánari ástandsskoðun.

Forsendur söluyfirlits: 
Söluyfirlit er samið af fasteignasala í samræmi við ákvæði laga nr. 70/2015. Þær upplýsingar sem fram koma í söluyfirliti þessu eru sóttar í opinberar skrár, til seljanda sjálfs og eftir atvikum til húsfélags. Seljandi veitir upplýsingar um eign í samræmi við upplýsingaskyldu laga um fasteignakaup nr. 40/2002. Fasteignasali metur eignina með sjónskoðun.
Fasteignasali getur ekki fullyrt um ástand og eiginleika þeirra hluta fasteigna sem ekki eru aðgengilegir og sjást ekki berum augum, t.d. lagnir, dren, skólp og þak.

Gjöld sem kaupandi þarf að standa straum af vegna kaupanna:  
1. Stimpilgjald af kaupsamningi - 0.8% af heildar fasteignamati / 1.6% fyrir lögaðila, (0.4% við fyrstu kaup einstaklinga).
2. Þinglýsingagjald af kaupsamningi, afsali, veðskuldabréfi, umboði, veðleyfi o.fl.- kr. 2.700 af hverju skjali.
3. Umsýslugjald kr. 49.600 (m/vsk).
4. Lántökugjald veðskuldabréfa samkvæmt gjaldskrá lánveitenda.
5. Ef um nýbyggingu er að ræða greiðir kaupandi skipulagsgjald, 0,3% af brunabótamáti, þegar það er lagt á

Fasteignasalan Hákot

Fasteignasalan Hákot

Kirkjubraut 12 (jarðhæð)300 Akranesi
phone
Ár
Fasteignamat
Kaupverð
Stærð
Fermetraverð
12. mar. 2014
21.600.000 kr.
29.900.000 kr.
115 m²
260.000 kr.
30. des. 2011
9.740.000 kr.
148.000.000 kr.
11047.7 m²
13.396 kr.
Byggt á upplýsingum úr Þjóðskrá Íslands frá 2006-2026
Fasteignasalan Hákot

Fasteignasalan Hákot

Kirkjubraut 12 (jarðhæð)300 Akranesi
phone