Upplýsingar
Verðsaga
Byggt 2020
86,9 m²
3 herb.
1 baðherb.
2 svefnh.
Þvottahús
Sameiginl. inngangur
Hjólastólaaðgengi
Lyfta
Opið hús: 14. apríl 2026
kl. 17:45
til 18:15
Opið hús: Hallgerðargata 9A, 105 Reykjavík, Íbúð merkt: 01 01 15. Eignin verður sýnd þriðjudaginn 14. apríl 2026 milli kl. 17:45 og kl. 18:15.
Lýsing
GLÆSILEG ÍBÚÐ Í NÝLEGU LYFTUHÚSNÆÐI MEÐ STÓRRI AFGIRTRI SVALAR VERÖND TIL SUÐ-VESTURS OG VÖNDUÐUM INNRÉTTINGUM.
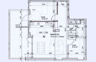
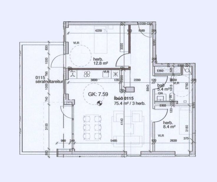
Samkvæmt skráningu Þjóðskrár Íslands er birt flatarmál eignarinnar 86,9 fm.
Um er að ræða fallega og rúmgóða íbúð á 1. hæð í steinsteyptu lyftuhúsnæði byggðu árið 2020 með vönduðum innréttingum.
Gengið er inn í anddyri og gang, strax til hægri er hjónaherbergið, en beint inn af ganginum er alrými með stofunni sem er opin í eldhúsið. Baðherbergið er til vinstri í ganginum og er barnaherbergið lengra inn af vinstra megin við hlið stofunnar. Mjög góð 11,5 fm. geymsla fylgir í kjallara sem og sameiginleg hjóla- og vagnageymsla.
Anddyri/gangur: Innbyggður fataskápur og parket á gólfi.
Stofa/borðstofa: Bjartar með parketi á gólfi, opið í eldhúsið, útgangur út á sér afgirta sólarverönd til suð-vesturs.
Eldhús: Falleg innrétting, gott skápa- og borðpláss, span helluborð, gufugleypir og parket á gólfi.
Baðherbergi: Flísalagt, rúmgott með walk-in sturtu, upphengt salerni, handklæðaofn, gott skápapláss og tengi fyrir þvottavél.
Svefnherbergin: Hjónaherbergið er rúmgott með góðum fataskápum og parketi á gólfi með útgangi út á veröndina, minna herbergið er einnig parketlagt með innbyggðum skápum.
Verönd: Um 25 fm. verönd fylgir eigninni og er útgangur bæði úr borðstofunni og einnig úr hjónaherberginu.
Geymsla: Sér 11,5 fm. geymsla fylgir í kjallara með mjög góðri lofthæð.
Sameign: Snyrtileg sameign og stigagangur, sameiginleg vagna- og hjólageymsla. Stórt bílastæðahús er í kjallara.
Hin heimsþekkta arkitektastofa Schmidt/Hammer/Larssen hafði umsjón með allri hönnun hússins og var hvergi til sparað í þeim efnum. Eignin er byggð úr afar vönduðum byggingarefnum og eru m.a. allir gluggar úr áli og klæðning hússins úr lituðu áli og sementstrefjaplötum. Hljóðvist var verulega aukin og var gengið mun lengra í þeim efnum en alla jafna tíðkast í íslenskum byggingum, m.a. með því að hafa loftræstikerfi í öllum rýmum íbúðanna í húsinu og með aukinni hljóðeinangrun utan frá og á milli rýma innan byggingarinnar.
- Bílastæði í vönduðu bílastæðahúsi fylgir til afnota gegn vægu rekstrargjaldi.
- Vandað og viðhaldslétt lyftuhús á vinsælum stað á Laugarnesinu.
- Gólfhiti er í íbúðinni.
- Ljósleiðari er komin inn í íbúðina.
- Myndavéladyrasími.
- Mjög góð eign fyrir vandláta á eftirsóttum stað, miðsvæðis í Reykjavík.
Um er að ræða fallega íbúð í snyrtilegu umhverfi, útivistargildi svæðisins er mikið og gott aðgengi er að strandlengjunni, Laugarnestanganum og Laugardal, göngu-, hjóla- og hlaupaleiðir, stutt er í leikvelli, leikskóla, skóla, sundlaug og ýmissa þjónustu. Hallgerðargata tengist gömlum og rótgrónum hverfum á Teigunum og Lækjunum.
Allar nánari uppl. og skoðun veitir: Jóhann Friðgeir, lgf GSM: 896-3038 e-mail: [email protected]
Samkvæmt skráningu Þjóðskrár Íslands er birt flatarmál eignarinnar 86,9 fm.
Um er að ræða fallega og rúmgóða íbúð á 1. hæð í steinsteyptu lyftuhúsnæði byggðu árið 2020 með vönduðum innréttingum.
Gengið er inn í anddyri og gang, strax til hægri er hjónaherbergið, en beint inn af ganginum er alrými með stofunni sem er opin í eldhúsið. Baðherbergið er til vinstri í ganginum og er barnaherbergið lengra inn af vinstra megin við hlið stofunnar. Mjög góð 11,5 fm. geymsla fylgir í kjallara sem og sameiginleg hjóla- og vagnageymsla.
Anddyri/gangur: Innbyggður fataskápur og parket á gólfi.
Stofa/borðstofa: Bjartar með parketi á gólfi, opið í eldhúsið, útgangur út á sér afgirta sólarverönd til suð-vesturs.
Eldhús: Falleg innrétting, gott skápa- og borðpláss, span helluborð, gufugleypir og parket á gólfi.
Baðherbergi: Flísalagt, rúmgott með walk-in sturtu, upphengt salerni, handklæðaofn, gott skápapláss og tengi fyrir þvottavél.
Svefnherbergin: Hjónaherbergið er rúmgott með góðum fataskápum og parketi á gólfi með útgangi út á veröndina, minna herbergið er einnig parketlagt með innbyggðum skápum.
Verönd: Um 25 fm. verönd fylgir eigninni og er útgangur bæði úr borðstofunni og einnig úr hjónaherberginu.
Geymsla: Sér 11,5 fm. geymsla fylgir í kjallara með mjög góðri lofthæð.
Sameign: Snyrtileg sameign og stigagangur, sameiginleg vagna- og hjólageymsla. Stórt bílastæðahús er í kjallara.
Hin heimsþekkta arkitektastofa Schmidt/Hammer/Larssen hafði umsjón með allri hönnun hússins og var hvergi til sparað í þeim efnum. Eignin er byggð úr afar vönduðum byggingarefnum og eru m.a. allir gluggar úr áli og klæðning hússins úr lituðu áli og sementstrefjaplötum. Hljóðvist var verulega aukin og var gengið mun lengra í þeim efnum en alla jafna tíðkast í íslenskum byggingum, m.a. með því að hafa loftræstikerfi í öllum rýmum íbúðanna í húsinu og með aukinni hljóðeinangrun utan frá og á milli rýma innan byggingarinnar.
- Bílastæði í vönduðu bílastæðahúsi fylgir til afnota gegn vægu rekstrargjaldi.
- Vandað og viðhaldslétt lyftuhús á vinsælum stað á Laugarnesinu.
- Gólfhiti er í íbúðinni.
- Ljósleiðari er komin inn í íbúðina.
- Myndavéladyrasími.
- Mjög góð eign fyrir vandláta á eftirsóttum stað, miðsvæðis í Reykjavík.
Um er að ræða fallega íbúð í snyrtilegu umhverfi, útivistargildi svæðisins er mikið og gott aðgengi er að strandlengjunni, Laugarnestanganum og Laugardal, göngu-, hjóla- og hlaupaleiðir, stutt er í leikvelli, leikskóla, skóla, sundlaug og ýmissa þjónustu. Hallgerðargata tengist gömlum og rótgrónum hverfum á Teigunum og Lækjunum.
Allar nánari uppl. og skoðun veitir: Jóhann Friðgeir, lgf GSM: 896-3038 e-mail: [email protected]
Ár
Fasteignamat
Kaupverð
Stærð
Fermetraverð
19. ágú. 2020
43.700.000 kr.
57.500.000 kr.
86.9 m²
661.680 kr.
Byggt á upplýsingum úr Þjóðskrá Íslands frá 2006-2026